查看完整案例


收藏

下载
在许多文化中,婚姻是社会生活方式的象征。它也是一种仪式,一个社区聚集在一起庆祝一个人生活中的一个变迁时刻。该建筑空间包含了生计的象征(食物、衣服和住所),并促进了新婚夫妇与客人之间的社会互动和参与。在韩国,人们可以感受到东方和西方文化影响共存,因为婚礼和新娘招待以及婚礼进行曲(在婚礼中使用了西服)与Pyebaek(韩国传统婚礼习俗)形成了鲜明对比,后者是夫妻和父母之间进行的传统仪式。婚礼的空间需求包括:休息区和聚会区、新娘专用房间、大堂、Pyebaek客房和婚宴空间。
因此,婚礼盒子本身就是一个小世界,协调婚礼中出现的每一个元素。它不仅仅是一个将不同的文化符号收集到内部的一个盒子,还是一个具有混合外部和内部的空间,它描绘了传统和生活本身随着时间的变化过程,在这里,参与其仪式的许多代人都可以找到他们的故事。
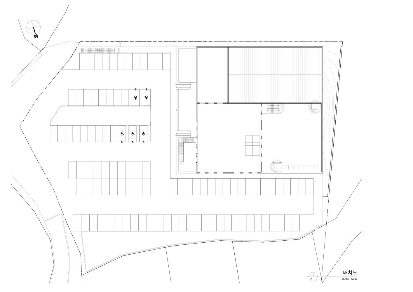
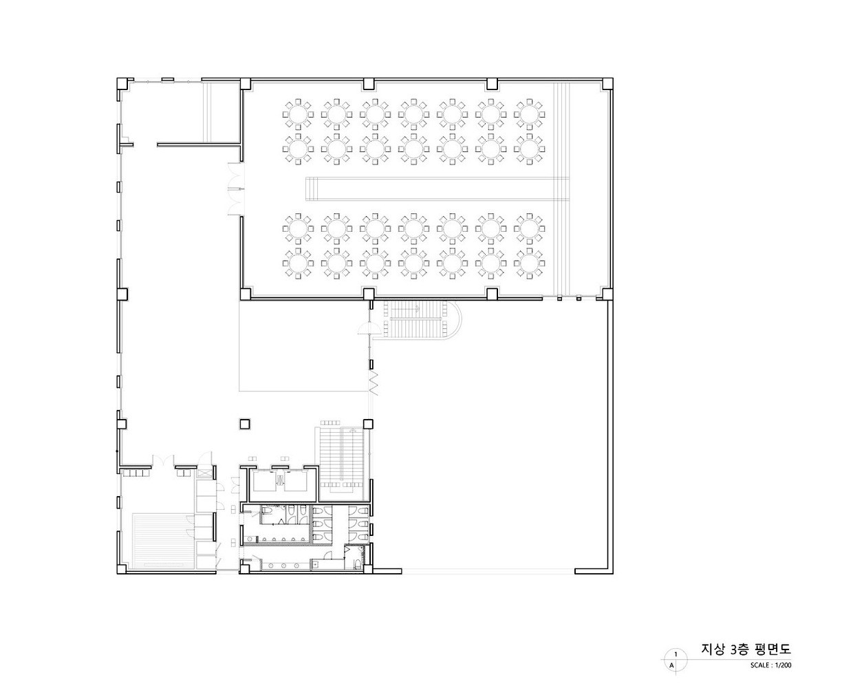
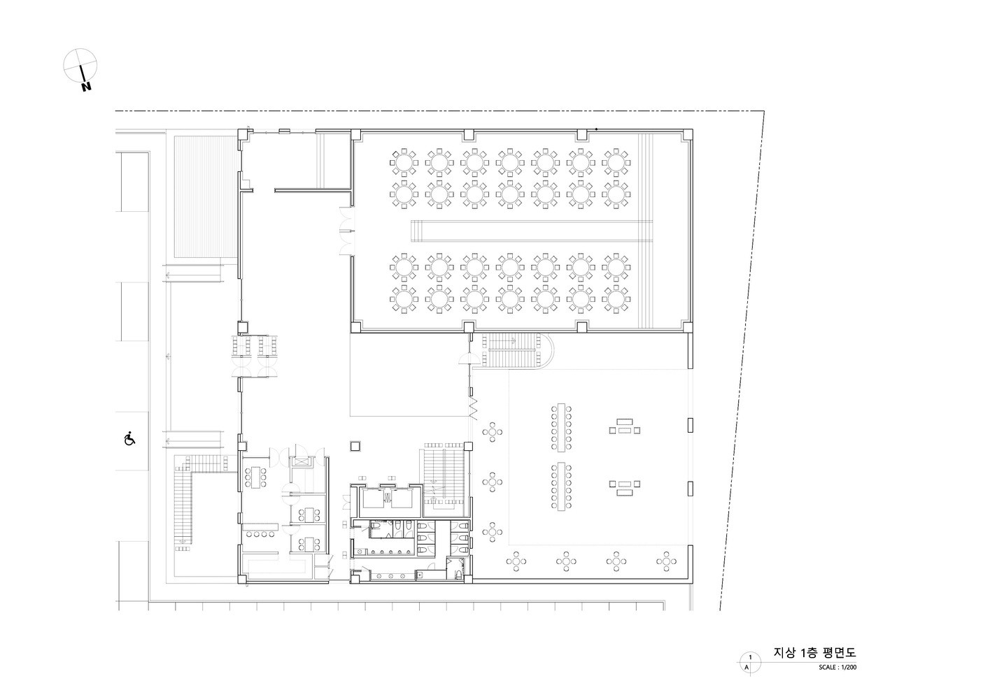
婚礼盒子以两个14米高的长方形婚礼大厅为中心,这些大厅周围有一个休息室,旨在促进宾客之间的社交活动,一个新娘专用房间,一个Pyebaek房间和其他为传统婚礼建造的服务设施。这些空间是按照时间顺序垂直和水平排列的,因此仪式下一部分的空间每过一小时都可以通过垂直流线进入,结束于婚礼宴会。作为一个专用的婚礼厅,每天可容纳10场婚礼,5000人的活动可安排为从接待、仪式、Pyebaek到宴会的一条连续的流线。
这两个婚礼厅被建造成多功能的黑盒,配备了灯光和声响系统,并且灵活可变,以适应一系列的配置和活动。这种多样性使得婚礼厅能够适应各种形式的宗教和社会仪式。虽然空间被划分为两个婚礼可以同时举行,但宴会厅是共享的,包括一个大厨房和足够的桌椅,最多可容纳2000人。宴会空间充满了光线,透过窗户,一直到露台的窗户垂直向下穿过整个建筑。使得宴会厅成为一个舒适的区域,有充足的自然采光。
地下室的设计灵感来自罗马广场,类似于一个休息区和一个社交空间,在那里可以举行户外婚礼。这个空间是一个露天的“城市广场”,位于建筑物内,中庭由可以由四面的窗户俯瞰看到,作为地下室宴会厅的“下沉花园”,空间的功能是灵活的。院子有直接的垂直流线,通过螺旋楼梯,到每一层,再到屋顶花园。
婚礼盒子位于光州市东北郊的一个住宅区,建筑北侧宴会厅的三个大拱门与城市绿地相连。场地周围是小型住宅建筑,建筑的立方体形状使其从周围环境的各个方面都能很容易地辨认出来。
对于全球化使婚礼文化日益西化的当代人来说,小广场和拱形开口提供了一个象征性的背景,唤起了一种浪漫的怀旧感。简单的几何立方体完全由混凝土构成,象征着婚姻的纯洁和稳定,婚礼盒子的各种传统细节创造了一种与现在的浪漫并列的过去的氛围。建筑结构时间上的特点与具有社会功能的社区的空间布局相结合,使建筑具有互相交织的功能。
建筑形式不仅需要遵守内部功能的要求,而且必须遵循建筑外部社会和文化随时间变化所要求的功能。此外,作为一个人一生中可能形成的最珍贵记忆的背景,婚礼盒子不仅是一个体现其功能的盒子,而且是一个记忆场所、社区成员的生活记录以及一个共同社会文化的过去、现在和未来。
客服
消息
收藏
下载
最近





























































