查看完整案例


收藏

下载
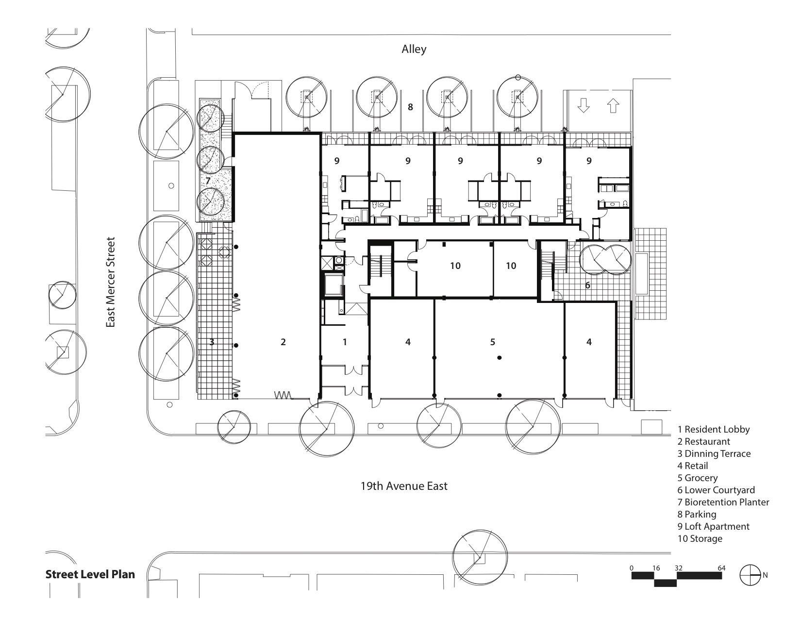
位于西雅图国会山街区的东侧,19号
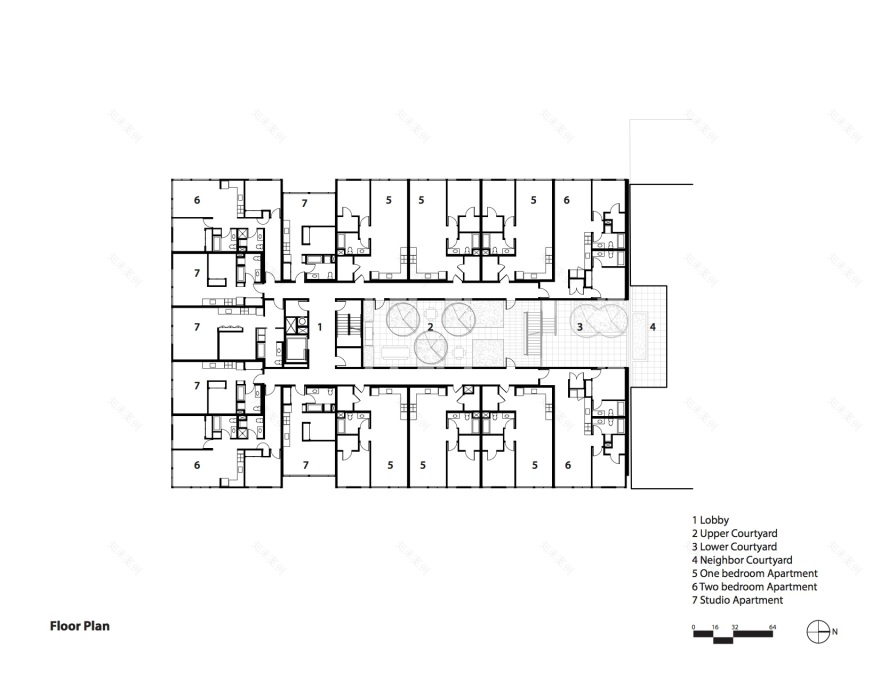
这座建筑的C形设计利用了街角的位置,在每一栋建筑的正面布置了住宅栅栏,并定义了一个中央庭院。光线充足的单重走廊提供庭院的景观。一个有约束的钢制调色板、木板和玻璃表示内部组织。大窗户提供了对叶栅的看法,并允许自然光和通风。
高度透明的街道水平是从上面的住宅水平,提供天气保护和慷慨的人行道。沿着建筑物北侧的挫折可以容纳一个靠近餐厅的餐厅平台,并将建筑朝向街道对面的现有餐馆。
温斯坦大学设计团队
埃德·温斯坦,设计原理
丹尼尔·戈达德,项目建筑师
Davila Parker-Garcia,设计人员
Jason Oliviera,设计人员
建筑:温斯坦大学
总承包商:MRJ建筑公司
Geotech:PanGEO公司
民事:Coughlin Porter Lundeen(CPL)
景观:凯伦·基斯特风景园林
结构:Michael Nousens结构顾问
机械:急忙
信封:Allana Buick
室内设计(大堂舒适室):维达设计
湖泊联盟伙伴
劳拉游泳者
Firm Weinstein AU Architects + Urban Designers LLC
Type Commercial › Retail Residential › Multi Unit Housing Transport + Infrastructure › Parking
STATUS Built
YEAR 2017
Photos Lara Swimmer
keywords:architecture, architecture news, interiors, interior design, portfolio, spec, brands, marketplace, products 19th + Mercer
关键词:建筑,建筑新闻,室内设计,产品组合,规格,品牌,市场,产品19
客服
消息
收藏
下载
最近

































