查看完整案例


收藏

下载
被历史建筑所环绕,这个800平米的空间为六个来自比利时的公司提供了一个在上海的家。Raams 建筑事务所被委托设计比利时之家(The Belgian House),一个集展厅和办公于一体的空间。通过室内设计为品牌Kreon Lighting, Decospan, PRLiving, Renson, Basalte 和Reynards更好的共同展示他们的产品。
Surrounding by architectural heritage buildings in the hectic French Concession neighborhood, 800m2 provides home for six Belgian companies in Shanghai. Raams Architecture Studio has brought together into a shared space called The Belgian House, the showroom and office of the brands Kreon Lighting, Decospan, PRLiving, Renson, Basalte and Reynaers utilizing the interior design to show-case their products.
▼室外空间,the exterior view © Wen Studio
设计之初,对材料的考量和产品的展示方式是创作过程的关键。建筑师解释道:设计的挑战在于如何创造一个公共空间来以一种和谐的方式展示商品,但又不要给人以商业化零售店的感觉。
▼轴测图,axonometric © Raams Architecture Studio
From the initial design stage, the consideration of materiality and products to be displayed have been key for the creative process. The challenge was to create a common space where to exhibit their products in a harmonious way without having the feeling of a commercial retail store, the architects explained.
▼看向展厅入口,view of the entrance © Wen Studio
▼位于中部的厨房空间,the kitchen area © Wen Studio
整个建筑分为两层。一层是展厅和起居空间,供建筑师、设计师及项目开发者使用,可用于会客及举办活动等功能。展厅再现了一个居住空间,营造出专注于客户体验的独特氛围。走进门厅,橡木材质的开放式橱柜在欢迎来访者的同时,分隔出了独立的休息空间,以供客户进行更多互动。
The functions are divided in two floors of the hauled building, focus on architects, designers and project developers, the ground floor is the showroom and living area where to receive and meet professionals as well as to host events. The showroom reproduces a house rooms, creating unique atmospheres that focus in the customer experience. At the foyer, an opened kitchen made of oak panels welcomes the visitors and separates the lounge room for more engaging conversations with clients.
▼透过橱柜看起居空间,view of the lounge living area from © Wen Studio
▼橱柜定义了功能分区,cabinets delimit and define the functional areas © Wen Studio
▼起居空间,the lounge living space © Wen Studio
区别于使用墙体或其他建造元素将房间永久分割,“置于空间中”的橱柜界定并定义了功能分区。地板、墙壁和家具展现了木饰面材质的多方面应用。
Alternately to walls and constructive elements, which divides the rooms in a permanent way, “dropped in the space” cabinets delimit and define the functional areas. The lining floors, wood walls and furniture present all facets of wood veneer and its applications.
▼从起居空间看餐厅,view of the dining room from the living area © Wen Studio
餐厅是一个有着横梁天花板的封闭空间,更是一个延伸,同时兼顾用于会议的功能。让人联想到典型的比利时式扩展性房屋。
The dining room, as extension-like, is an enclosed space with beam ceiling designed for meetings. It evokes the typical Belgian extension house.
▼会议空间,meeting room © Wen Studio
连接展厅各个区域的后走廊安装了Kreon的照明系统 。镜子的使用让人们与外界产生了视觉联系。在立面上,大型铝制窗不仅框出了室外的景观,还将内部空间与室外独特的隐蔽花园相连。
The back of the house corridor which connects each area of the showroom, features Kreon lighting fixtures. The use of mirrors creates visual connections with the exterior. On the façade, big aluminum windows frame the exterior views and connect the rooms with the outdoor unique hidden garden.
▼细部,details © Wen Studio
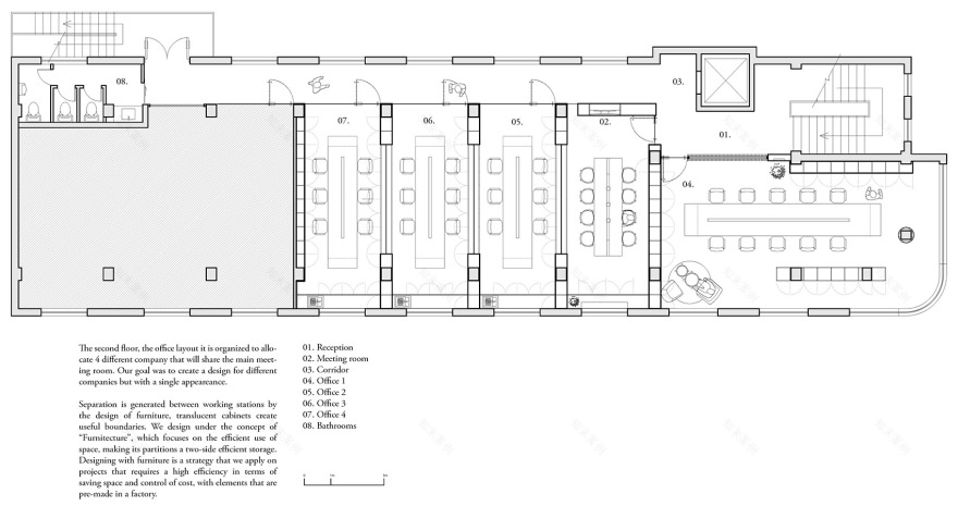
步入第二层,在不破坏宽敞感和连续性的前提下,该空间包括每家公司的私人办公室和一个共享会议室。
Upstairs on the second floor, without losing the sense of spaciousness and continuity, the space consist of private offices for each company and a communal meeting room.
▼二层空间概览,overview of the second floor © Wen Studio
▼宽敞感和连续性的办公空间,keeping the sense of spaciousness and continuity © Wen Studio
工作空间的分隔体现在家具的设计上,半透明的橱柜营造了明确的界限。创意总监Germán Roig 解释说:我们根据“Furnitecture”的概念设计了家具,注重空间的有效利用,并且把隔断制作成了两面均可使用的高效储物空间。
Separation is generated between working stations by the design of furniture, translucent cabinets create useful boundaries. We designed the furniture under the idea of “Furnitecture”, which focuses on the efficient use of space, making its partitions a two-side efficient storage, creative director Germán Roig explains.
▼工作空间的分隔体现在家具的设计上,separation is generated between working stations © Wen Studio
▼办公区域,the meeting area © Wen Studio
▼隔断作为高效储物空间,making its partitions a two-side efficient storage © Wen Studio
该层空间中使用的主要材料有:可适用于连续铺地的抛光混凝土;Decospan 品牌旗下多种橡木饰面漆面和橡木饰面板材橱柜,例如oak vintage 系列和oak brushed oiled 系列。“旨在保留现有建筑的本质,其原始的混凝土天花板与新的纯粹而简约的美学形成鲜明对比”,建筑师解释道。
The primary materials applied in this level are polished concrete as a continuous paving solution, lacquered and paneled cabinets in different oak finishes from Decospan’s catalogue like oak vintage, and oak brushed oiled. Aiming to preserve the nature of the existing building, its original concrete ceiling is exposed in contrast to the new pure and minimalist aesthetics, said the studio.
▼室内窗台,the windowsill © Wen Studio
▼半透明的橱柜营造了明确的界限,translucent cabinets create useful boundaries © Wen Studio
作为一项额外的声学考量,我们在每个工作空间都加入了Kreon天花系统方案,该解决方案可帮助控制声音并将照明功能纳入其中。高悬的高科技结构和未加工的混凝土表面形成了一种对比。
As an extra acoustic measure, we included within each work station a Kreon Ceiling system solution that helps to control the sounds and incorporates the lighting in them. The suspended high-tech structure contrasts on the raw concrete surface.
▼灯光效果,the lighting view © Wen Studio
▼细部,details © Wen Studio
连接走廊的通道可以通向每个办公室,为他们提供自然采光和通风。我们突破了住宅,零售和办公空间之间的界限,并朝着更具协作性的工作方式迈进。
A corridor for circulation connects and gives access to each office room allowing for natural light and ventilation. We push the boundaries between home, retail and office space and move forward to more collaborative ways of working.
▼夜景,night view © Wen Studio
▼首层平面图,the ground floor plan © Raams Architecture Studio
▼二层平面图,the second floor plan © Raams Architecture Studio
客服
消息
收藏
下载
最近















































