查看完整案例


收藏

下载
房子,巴塞罗那,西班牙
设计师:estudio CO-A
面积:112 m²
年份:2020
摄影:José Hevia
提供协助:Cocinas Santos, FARO Barcelona, Neocerámica
建筑师:Clara Ocaña
构造函数:Forneas Guida
城市:巴塞罗那
国家:西班牙
设计师描述 | Designer description:
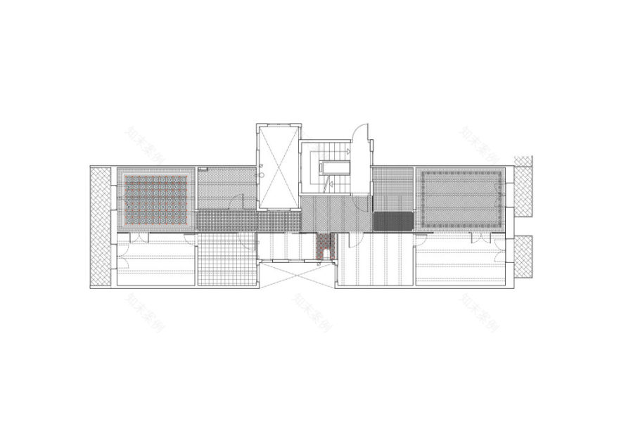
El encargo se ubica en un edificio del Eixample barcelonés, de 1930, en una vivienda que estaba prácticamente en su estado original. Era una vivienda con poca luz natural en toda la zona central, con largos pasillos dada la morfología alargada de la planta, típica en los pisos del Eixample, y un estado general deficiente. Una vez conocido y analizado el contenedor de la vivienda y sus características, nos encontramos con un segundo condicionante en el proceso de diseño:el requisito del cliente de que la distribución adoptada funcione tanto para el programa de una vivienda, como para el de vivienda y estudio independientes. Con estas premisas, se toma la decisión estratégica de ubicar la nueva cocina en una posición central de la vivienda, respondiendo a las características de este espacio (pues es de las zonas más oscuras y sin vistas) y al requerimiento del programa funcional dual.
Una segunda decisión estratégica para este caso particular de proyecto fue el diseño de los panelados con puertas integradas, que cuando se abren desaparecen y cuando se cierran pasan desapercibidas. Esto sucede en el revestimiento de las paredes de la “caja” que se ubica en el acceso al inmueble. Las puertas, de medidas idénticas a la de los huecos de paso que encontramos en el pasillo original, son los accesos a cada unidad funcional independiente (a la izquierda al estudio y a la derecha a la vivienda) y en caso de funcionar como una única unidad de uso residencial, las puertas desaparecen al dejarlas abiertas y queda libre un paso de iguales dimensiones a los existentes. Al ir definiendo el proyecto, otro paso fundamental fue seleccionar los elementos a conservar vistos, tales como pavimentos de mosaico Nolla, hidráulicos, techos de revoltón cerámico y vigas de madera, carpinterías de madera, techos con molduras, etc. Siempre con la premisa de mantener el máximo de elementos posibles. El mosaico Nolla, uno de las partes más protagonista, se tuvo que recolocar y completar en ciertas zonas, tanto por cuestiones de reparación como por adaptación a la nueva distribución.
Una vez escogidos éstos, seleccionamos los nuevos materiales. La idea era no competir con los elementos originales sinó al contrario, resaltar su valor estético. Y estos nuevos materiales tenían también que crear una atmósfera contemporánea. En este sentido, la estrategia fue introducir la madera de roble natural para los pavimentos, el mármol para las zonas húmedas, las mamparas de vidrio estriado y los panelados grises y la pintura blanca, que son colores neutros que unifican e inundan de luz natural la vivienda. El ejercicio durante el todo proceso creativo ha sido crear un diálogo entre lo nuevo y lo antiguo. Por último, en este caso introdujimos elementos de iluminación diseñados por nosotros. Tanto los apliques con espejo como la iluminación zenital de la cocina se diseñaron para este proyecto. Esto es algo significativo para nosotros pues nos gusta llegar a niveles de detalle, que creemos que es lo que aporta calidad al resultado.
项目完工照片 | Finished Photos
设计师:estudio CO-A
图片©estudio CO-A
语言:西班牙语
客服
消息
收藏
下载
最近






















