查看完整案例


收藏

下载
家宅容纳居者性格理想的同时 也需要满足当下,承载未来
在长沙建发松雅院下叠样板间中 我们希望通过内敛的色彩语言 简约的艺术形制打造宁静雅致的家 表现现代隐士归家自闲的生活诗篇
对东方清居的向往 成为设计内核
东方审美趣味不被流行所干扰
它有着现代风格难以复制的质感与神韵
自然安详的木色晕染至睡眠空间
由一副水墨山景图纳入仪式感
隐士居室追求气场和氛围
棉麻与木纹、竹编与树藤
多重材质带来丰富的感官
更重要的是功能及生活气息的注入
包含儿童活动区及陶艺创作室
设计不仅突出东方家居的审美与调性
也关照着每个家庭成员的精神世界
善赏山川名画 爱论诗词品茗
经典画作「听琴图」经由艺术演变
立体还原图中景致形成诗意的一幕
注入居者的茶闲时光 一人自恰 二人共乐 三人欢声笑语
留一处心灵休憩之所 收获安宁与平静
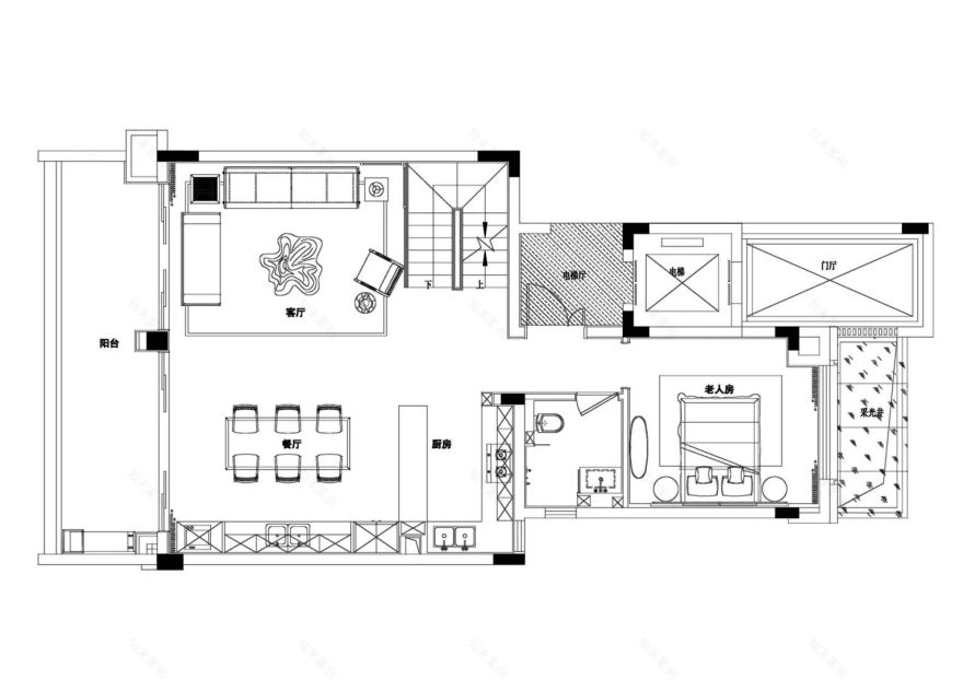
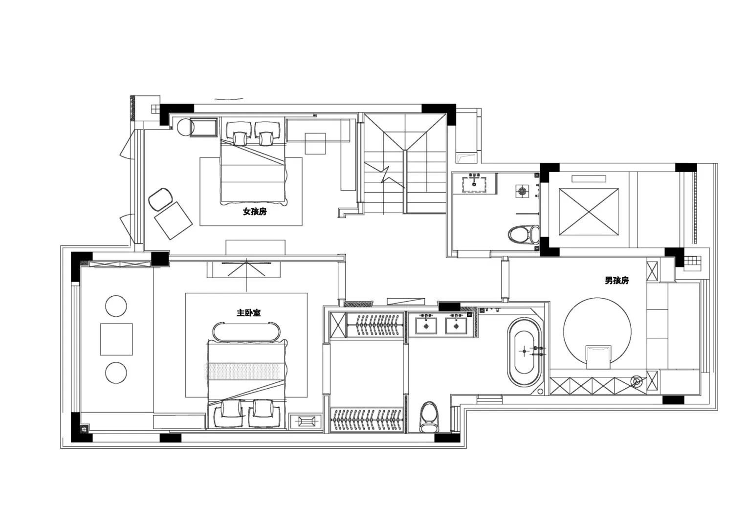
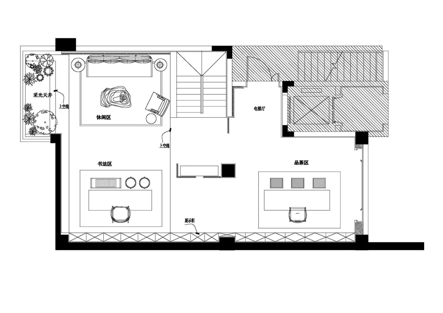
项目全名:中交建发松雅院下叠样板间
硬装设计:深圳盘石设计有限公司
设计时间:2020.09
完工时间:2021.02
客服
消息
收藏
下载
最近







































