查看完整案例


收藏

下载

翻译
An empty 400m2, former warehouse located in a residential area on the outskirts of the historic center of the city, was the basis for the creation of vaga – espaço de arte e conhecimento, consolidating the permanence of the Anda&Fala Association in the territory and in time.
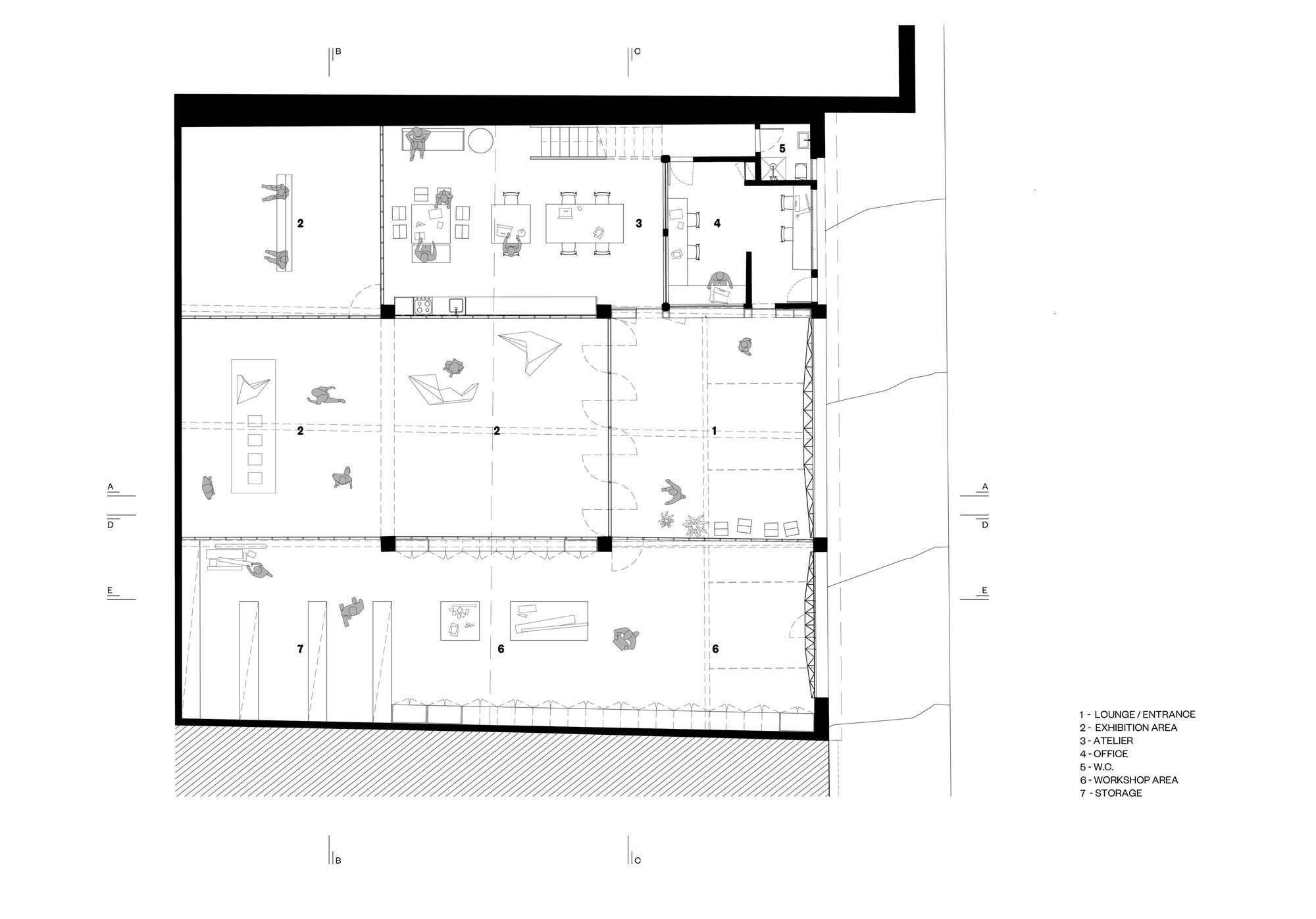
Space’s division in the programmatic areas (workshop – gallery – house) followed the pre-existing structure, as well as the openings in the single volume facade.
The main atrium, an extension of the street with service and store area inserted in a wooden exhibition wall, opens to the gallery – the presentation space, with a foyer and two exhibition rooms that can accommodate projects in various disciplines, such as a focus on visual arts, through 4 pivoting doors that leave space to draw different ways to circulate.
Laterally, the workshop and warehouse, with direct access to the street, give way to a space destined for creation and production, which gathers stations and areas with specialized equipment. The last slice of the volume gives way to the house, the domestic space of the vacancy. It includes the pre-existing office and expands to other multidisciplinary spaces that can be of work, meeting, or meals, and has two rooms to receive artists in residence.
Color has revealed to play a fundamental role in the project, giving it character and clarity. A grayish-blue tone was chosen to standardize the façade and all its elements, as well as the pre-existing internal volume. It was also with the purpose of standardizing the interior, that all the ceiling and structural elements in wood and steel were painted in matt black.
客服
消息
收藏
下载
最近

























