查看完整案例


收藏

下载

翻译
At the heart of a dynamic neighbourhood in the Porte de Valenciennes joint development zone (ZAC), the Partenord plot seeks to bring Lille into the third industrial revolution through a mixed project, including the headquarters of Partenord Habitat (Nord Department Public Housing Office), offices, housing and shops. The project is on a plot in a strategic location, at the entrance to the city of Lille, and at the corner of Rue de Cambrai and Boulevard de Belfort. The building emerges from the ground along both these two roads in three distinct sections: the offices, the headquarters and the housing, tied together with a shared foundation.
The Partenord headquarters are situated at the corner of the plot, shining like a beacon over the metropolitan area, ensuring it is visible throughout the Lille region. The project offers a duality between the bold urban façades and the centre of the block, which is sheltered from the city's hustle and bustle and the ideal place for users to relax. The multiple balanced outdoor spaces offer a pleasant setting for users, tenants, employees, and retailers, looking out onto a biodiverse environment.
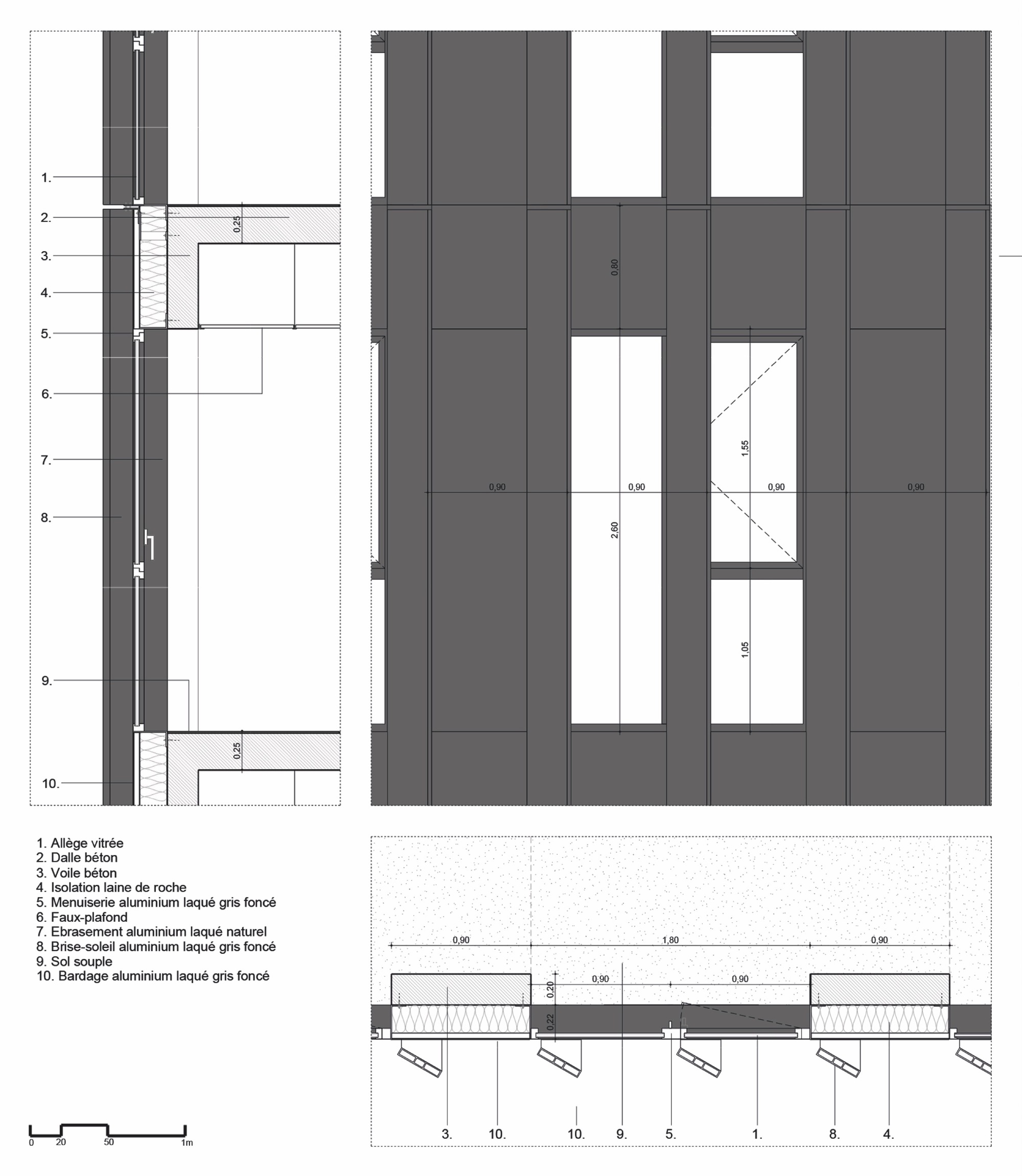
The building is adorned with various sizes and styles of terracotta cladding. A feature is created along with Boulevard de Belfort, like an urban window with three sides of reflective glass. This mirror onto the city amplifies the comings and goings of local residents.
More than just architectural touches, the systems put in place offer functional qualities tailored to each project. The simple urban façade establishes structural and functional integrity to meet project requirements in the clearest possible way.
客服
消息
收藏
下载
最近













































