查看完整案例


收藏

下载
RENESA ARCHITECTURE DESIGN是一家屡获殊荣的创意咨询公司,在印度从事建筑与室内设计咨询。位于新德里,由多位助理建筑师和数名建筑助理组成,由经验丰富且合格的执照建筑师Sanjay Arora先生及其儿子Sanchit Arora先生领导, RENESA的工作室主管建筑师。
Renesa Architecture
Elgin Cafe咖啡馆
这家位于印度的约为139m²的Fluted Emerald Elgin咖啡馆,由当地的设计工作室Renesa Architecture设计。Elgin Cafe餐厅、酒吧白天是小酒馆,晚上则是充满时尚氛围的酒吧。餐厅是极简主义风格的,创造了一个干净、柔软的空间,并带有诱人的色调。这个想法创造一种户外的氛围和感觉,在那里你会发现自己被绿色植物、天然木材、美食和谈话所包围。工作室试图参与一种能够创造国际化酒店体验的设计,从而吸引喜欢咖啡馆文化和精通社交媒体的客户。
RENESA ARCHITECTURE DESIGN INTERIORS STUDIO的最新产品展示了一种新的类型,并在东方设计设置中与现有的easyeasy定义有所不同。走在一个不可见的拱门上,而不是一个不可见的拱门上,穿过一个照亮的玻璃砖和镜子的窗帘,一个书房,一个双重梦想,一个洞穴。这种秘密的性质是该项目的起点,即如何实现带有亲密感和纯净质感的鸡尾酒吧,现代的说话便利。
Renesa Architecture
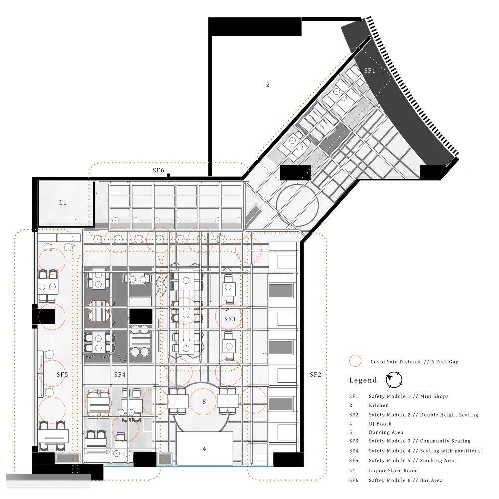
印度首家应对疫情的餐厅,印度“距离社交”餐厅和酒吧
RENESA 工作室的最新项目打造了印度第一家针对疫情条件而设计的餐饮空间,设计展现了我们最新的设计概念和应对安全社交距离的空间原型。在新冠病毒大流行的当下,公共场所不仅被认为危险,同时它的本质也受到质疑,餐饮业的未来正在面临复杂的挑战。
如何让我们的公共空间在后疫情时代被安全使用已经引起了全球范围的关注。认识到保持到持社交距离至关重要。因此,我们的日常生活空间将面临不可避免的变化。考虑到当前的情况,我们的工作室在新德里设计了印度第一家拥有安全社交距离的餐厅空间。
餐厅是后疫情时代下我们生活中不可或缺的一环,为了能够安全地返回餐厅,餐饮行业需要积极的重建安全的就餐环境。这就是我们的新作品:维持距离,保持“社交”的餐厅。
配戴口罩的服务员,相距十五厘米的桌位和带凹槽的玻璃隔板是印度新德里一家越南现代风格的餐饮空间。Renesa的新设计对疫情下的“新常态”做出了回应,重新定义了餐厅的共享桌位和独立卡座之间形态。随着人们渴望与家人和朋友再次在餐厅和酒吧相聚,我们将两种独特形态融为一体:来自越南喧嚣的街道和小巷商店以及Dwarka(新德里最大规模的住宅项目)的网格化空间布局。在保正要求的社交距离时却不有隔离感。
我们在当地疫情大流行之前就进行了设计,这样的转变和收益在当时看来似乎具有革命性的意义,而如今所有的餐饮行业都面临这样的改变。这样的空间在疫情前概念化,在疫情中成型,并且在后疫情具有强大的可持续性。遵循新常态的准则,餐厅设有座位分区,挑高的夹层,创造了含有本地特色并兼具安全性的就餐环境。
设计概念源于对越南街巷建筑遗产的线索,并尝试与“Social”(印度酒店品牌)的品牌形象创相匹配的空间质感。空间规划的概念源于Dwarka住宅:我们参考了在地的住宅形态并创建了网格一样的餐饮空间。座位以相距十五厘米的距离出现并分层排布,方便不同群组的人就餐。因此,通过设计,我们不仅创造出视觉上交错的空间,并为选择就餐的顾客提供了安全的就餐环境。
我们通过设计的技巧在商业空间中创造出了家庭聚会的氛围。进入餐厅,空间布局像口袋一样展开,每个区域都拥有间隔和隐私。从越南小药房,到手表和帽子商店,独特的功能布局丰富了餐厅的品牌属性。当您进一步进入该空间时,我们不仅满足了疫情下用餐的规范,我们还引入阳光,拜访绿植绿,创造出充满越南精神的交互性空间。
在主用餐区中我们继续遵循了网格化的空间布局,在该区域中,我们使用钢架和木制饰面搭建不同层次的网格来创造交错的就餐作为,既丰富了视觉元素,又确保用餐时的距离和隐私。中间,大型共享吧台配有折叠式隔断,可以分隔两个不同的顾客群体。我们在更高一层还设有DJ,可以看到整个餐厅的全景,并确保每个角落的顾客都能享有良好的体验。
Social的品牌标志和品牌元素都很具有辨识性:功能强大但又有趣且新鲜。多层次的空间方案也呼应了品牌的质感,并高效的利用了空间。自然的元素和软木的阴影,水泥砖和藤条营造出了自然的真实质感。色调和阴影,植被和糯米砂浆粘合的砖墙为空间增添了一种乡土气息和轻松的氛围。
对于隔板和家具,我们采用了相同的方法。隔板采用可滑动收缩的玻璃面板,以保持互动性。在地生产的竹制百叶窗规划出网格的布局。天然藤茎制成的家具和照明设备可以满足必要的功能并提供人体工程学的体验。所有的隔板和家具采用与其他空间元素相同的语言,每个元素都融为一体。
Renesa Architecture
印度Unlocked解构主义主题酒吧
Unlocked是一家游戏主题酒吧,其中包括自己的冒险主题逃生室和100多个棋盘游戏的选择。场地以大胆的色调和几何形式为特色,由当地的Renesa工作室设计,瞬间将游客带到了一个不确定的领域。
建筑以装饰性的楼梯和被拱形窗户打断的曲线美的墙壁为特色,有着纪念碑谷的影子。反过来,餐厅的特点是一系列茶色或桃色的隔断,中间点缀着拱形开口。它们通向餐厅,餐厅里有方形的黑色桌子和皮革座椅长椅。
有些墙壁有半圆形的切口,从这望去,可以看到有着木框椅子和凳子的小角落,客人可以坐在那里玩游戏。带有阶梯状轮廓的凸起模板被应用到墙壁上,背光看起来更立体。
在场地的中心,还创建了一排排有三角形或拱形壁龛的特色墙。虽然大部分地板都铺上了混凝土,但有些地方却镶嵌了倾斜的棕色、橙色和天蓝色瓷砖。
Renesa Architecture
印度的餐厅将粉红色设计与大胆的斑马条纹相结合!
客服
消息
收藏
下载
最近

























































































