查看完整案例


收藏

下载
© Niveditaa Gupta
(尼日利亚)a
建筑师提供的文字说明。紧靠喜马拉雅山脉的山麓,是一个在体积上建造的住宅,以展现提升这一概念的时刻。"主页".通过穿孔的体积提供无障碍的视图,以形成正面的立面,Casa形式是一个开放的基于陆地的结构,在向下的斜坡地形上,面向南立面的立面视图。
Text description provided by the architects. Set against the foothills of the Himalayas - Casa Forma is a residence deconstructed in volume to reveal moments that elevate the notion of 'home' . Providing unobstructed views through perforated volumes that layer up to form the front façade , Casa Forma is an open land based structure on the downward slope terrain with the south facing facade view.
Text description provided by the architects. Set against the foothills of the Himalayas - Casa Forma is a residence deconstructed in volume to reveal moments that elevate the notion of 'home' . Providing unobstructed views through perforated volumes that layer up to form the front façade , Casa Forma is an open land based structure on the downward slope terrain with the south facing facade view.
© Niveditaa Gupta
(尼日利亚)a
Concept 03
Concept 03
Casa Forma的名字来源于意大利语的“Forma”一词,意为现有环境的形式,在这种情况下,喜马拉雅山脉帮助建筑师通过其立面设计思想中的体积和广泛的水平线作用,复制了现有山体版式的层次性。浮动的电梯墙创造了一个即时的影响,它的纪念碑和孤立的主要体积的结构,以提供透明度和保护,以及增加这一住宅的美学价值。
Casa Forma derives its name from the Italian word "Forma" meaning the form of the existing surroundings , which in this case being the Himalayan range helped the architects replicate the layering of the existing mountain typography through its volume and extensive horizontal line play in its Facade design ideology. The Floating Elevational walls create an immediate impact through its monumentality and isolation from the main volume of the structure to provide transparency and protection as well as add to the aesthetical value of this reside
Casa Forma derives its name from the Italian word "Forma" meaning the form of the existing surroundings , which in this case being the Himalayan range helped the architects replicate the layering of the existing mountain typography through its volume and extensive horizontal line play in its Facade design ideology. The Floating Elevational walls create an immediate impact through its monumentality and isolation from the main volume of the structure to provide transparency and protection as well as add to the aesthetical value of this reside
© Niveditaa Gupta
(尼日利亚)a
房子是一个激进的练习水平的建筑线,发挥与自然垂直峰值范围设置为壁纸本网站。空旷之间的体积和板坯创造了一个美丽的设计节奏和改善照明和通风一整天。在布局下,这座房子由两个编程式箱组成,地面为公共接口区,有一个供业主使用的2间客房套房,顶楼板用于提供服务、健身房、电视、游戏室和位于房间末端的另外2套房,为房间提供自然光和空气方面的灵活性。(鼓掌)
The House is a radical exercise of horizontal architectural line play against the natural vertical peak ranges set as a wallpaper to this site. The emptiness between the volumes and the slabs creates a beautiful design rhythm and improved lighting and ventilation throughout the day. Under the layout , the house has been made with two programmatic boxes , the ground being the public interface zone with a 2 room suite for the owners and the top floor plate being for the services , gym , tv , playrooms and another 2 suites located at the extremities to provide flexibility in terms of natural light and air to the rooms.
The House is a radical exercise of horizontal architectural line play against the natural vertical peak ranges set as a wallpaper to this site. The emptiness between the volumes and the slabs creates a beautiful design rhythm and improved lighting and ventilation throughout the day. Under the layout , the house has been made with two programmatic boxes , the ground being the public interface zone with a 2 room suite for the owners and the top floor plate being for the services , gym , tv , playrooms and another 2 suites located at the extremities to provide flexibility in terms of natural light and air to the rooms.
© Niveditaa Gupta
(尼日利亚)a
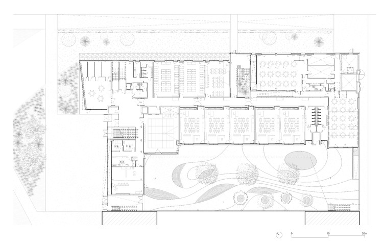
Ground floor plan
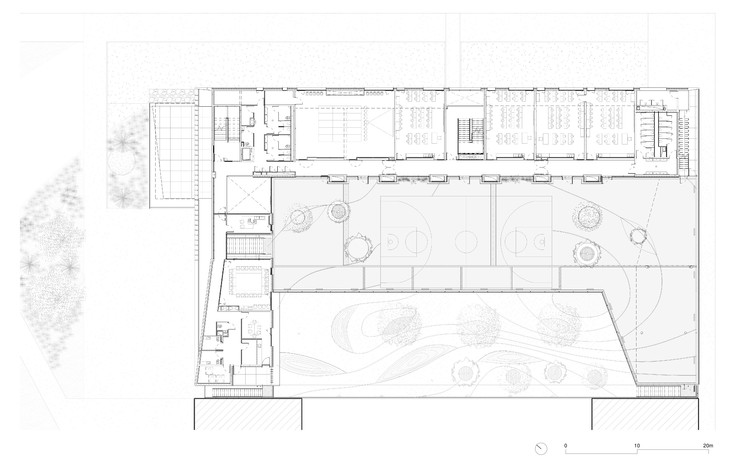
First floor plan
一楼平面图
室内由低矮实木家具制成,空间的布局为家具和面板之间的自由流通留出了足够的空间,并允许对空间及其碎片进行个性化阅读。
The Interiors are made of low and solid wood furniture and the layout of the spaces leaves enough space for free circulation between the furniture and the panels and allows for an individualized reading of the space along with its pieces.
The Interiors are made of low and solid wood furniture and the layout of the spaces leaves enough space for free circulation between the furniture and the panels and allows for an individualized reading of the space along with its pieces.
© Niveditaa Gupta
(尼日利亚)a
Concept 02
Concept 02
CasaForma的分层组装提供了一个建筑理解,为绿色口袋和空气走廊让路,利用现有山麓的丰富环境。通过一种新的住宅建筑类型学,CasaForma希望成为理解山麓地区日益增长的城市景观的典范。
Casa Forma's layered assembly provides an architectural understanding to make way for green pockets and air corridors that capitalize on the rich environment of the existing foothills. Through a new typology of residential architecture, Casa Forma hopes to become an example in the understanding of growing cityscapes in the foothills.
Casa Forma's layered assembly provides an architectural understanding to make way for green pockets and air corridors that capitalize on the rich environment of the existing foothills. Through a new typology of residential architecture, Casa Forma hopes to become an example in the understanding of growing cityscapes in the foothills.
© Niveditaa Gupta
(尼日利亚)a
Architects Manav Dang, Pranat Singh, Mayank Goyal, Akarsh Varma
Location Haldwani, Uttarakhand 263139, India
Founder| Principal Architect Sanjay Arora, Sanchit Arora
Architecture Interns Jagdish Bhandari, Aayush Misra, Sumit Singhania
Area 7200.0 ft2
Project Year 2018
Photographs Niveditaa Gupta
Category Apartments
Manufacturers Loading...
客服
消息
收藏
下载
最近










































