查看完整案例


收藏

下载
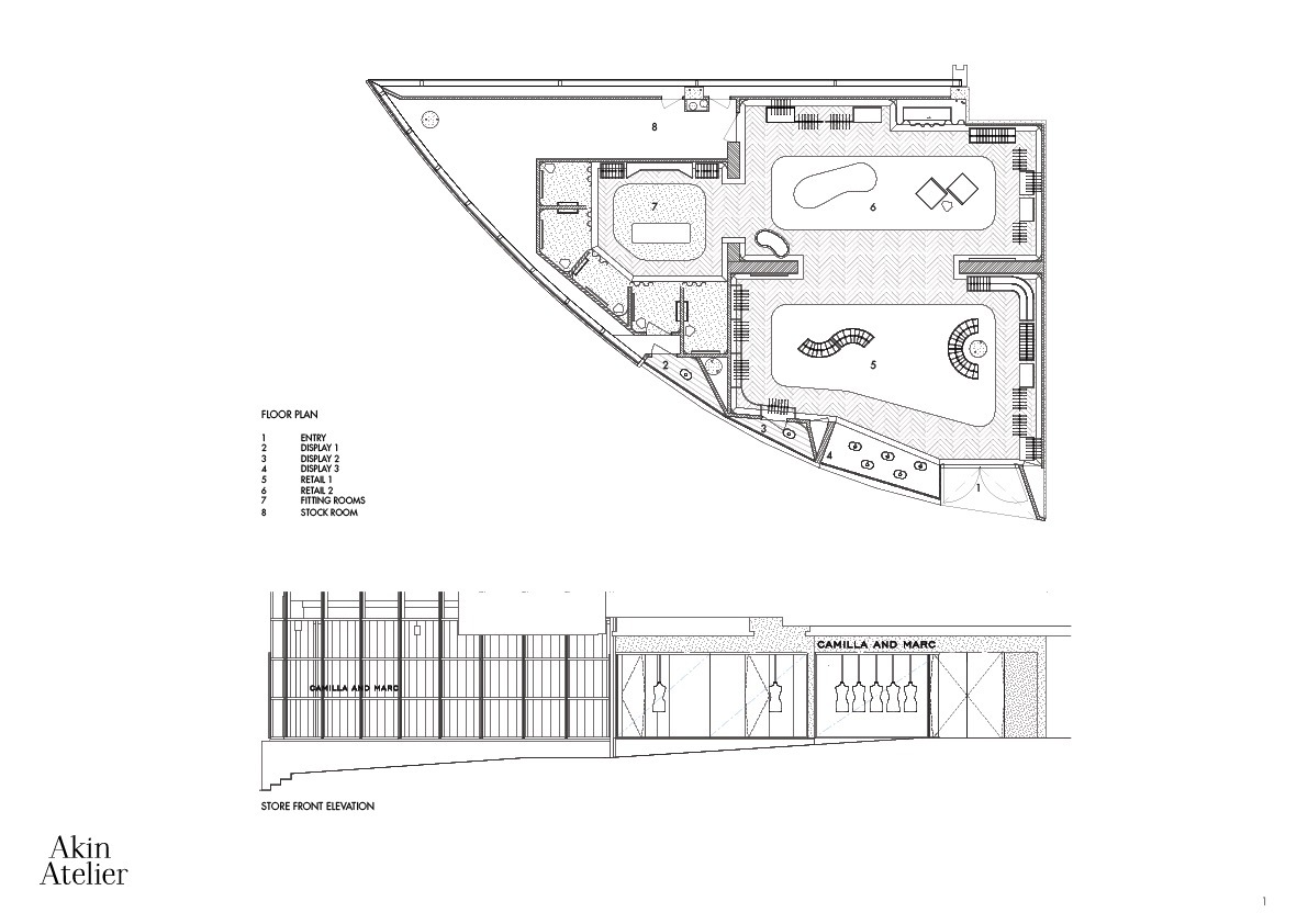
澳大利亚奢侈品牌卡米拉和马克(CAMILLA AND MARC)在悉尼韦斯特菲尔德邦迪路口(Westfield Bondi Junction)开设了新的旗舰店,由Akin Atelier设计。
室内遵循经典的布局,一系列的房间将客户从公共空间转移到私人空间。在物质性表现出巨大的结构多样性。瓷砖地板采用了定制的帕拉迪亚娜水磨石瓦,由沃拉卡斯,斯默拉尔多石英和经典石灰华组成,由定制的彩色人字形木地板环绕。定制的绿色Marmorino渲染通过内部使用,放大了卡米拉和马克品牌的现代,但经典的创意方向。黑色钢固定装置与新的意大利Nubuck皮革货架作为悬挂和展示使用。试衣间挂着由Maharam设计的豪华天鹅绒窗帘。Nicos Zographos皮革躺椅和长椅为零售室内增添了住宅的色调。
所有的设计元素都遵循卡米拉和马克品牌的原则,坚持永恒的风格、设计创新和贯穿每一个细节的纯粹方法。该项目的实现对卡米拉·弗里曼-托普(Camilla Freeman- topper)和马克·弗里曼(Marc Freeman)来说都是个人的,他们都在当地长大,一段时间以来都希望在该地区开一家店。在韦斯特菲尔德邦迪交汇处(Westfield Bondi junction)开设门店的机会令人心寒,也很及时,标志着该品牌成立15周年。
客服
消息
收藏
下载
最近














