查看完整案例


收藏

下载
NOMO STUDIO:该石屋住宅坐落在西班牙米诺卡岛北岸的山坡上,其建造技术和材料与岛上农田周围的大部分古老石灰岩墙壁相同,自然,叠置石层式的立面和栅栏,很好地帮助了建筑与景观互融,而立面墙壁上完全来自别墅地基现场挖掘的石头,更是进一步加强它们之间的共生关系。
NOMO STUDIO:Stone House is located on a hillside facing the north coast of Minorca, Spain. This new dwelling is built with the same technique and material as the ancient limestone walls enclosing most of the farmlands on the island. Its sequence of superimposed stone layers (facade and fences) blend architecture and landscape into each other. This symbiosis is further strengthened by the fact that the facade’s stone was fully collected from the onsite excavation for the villa’s foundation.
客户的诉求包括六间卧室、一个客厅、餐厅、厨房、车库及其它辅助空间,我们通过将所有的这些空间进行物理和视觉连接,布局组织成了一个大型的双层住宅结构。
The client’s program consisted of six bedrooms, living room, dining room, kitchen, garage and auxiliar rooms. All of them were organized around a magnificent double height space that connects both physically and visually the two floors.
住宅上层的大玻璃窗,让这个空间成为了整个房子的一个非常明亮的采光井空间,否则由于其深度可能使住宅核心部分缺少采光,因此,为了把它从狭窄的黑暗走廊中释放出来,激活其中心部分,我们将别墅所有的布局流线都围绕着这个而空间设置。
Thanks to its large upper floor glazing, this space becomes a very bright light-shaft for the whole house which otherwise could have lacked light in its core due to its depth. Thus all the villa’s circulation spirals around this void liberating it from narrow dark corridors and activating its heart.
人们可以在二楼的这个约100平方米的宽敞有顶门廊处,欣赏最壮观的米诺卡悬崖景观或享受日落。这种室内/室外空间作为厨房、餐厅和客厅的延伸,可以作为社交聚会的场所,也可以作为一个大的通用空间,根据日常需要,连接不同的日间区域,灵活使用,或作为住宅和自然之间的一个过渡空间。
From its generous 100 sqm covered porch, one can contemplate the most imposing cliffs of Minorca or enjoy its sunsets. This indoor/outdoor space functions as an extension of kitchen, dining and living room, and is therefore, where most social gatherings take place. It may be also understood as a grand generic space which allows for flexible settings, binds and interconnects the different day areas and acts as a threshold between house and nature.
房间的双层玻璃外墙完全可以自由开合,这样一来,它就是一个真正意义上的隔热缓冲区:春秋时节,它是一个舒适的花园,炎热的夏季,它是一个阴凉的门廊空间,而在冬天,它又将是一个完美的热空气隔热系统。这个花园中的巨大的石灰岩平台上有一个灰色的石头覆盖的游泳池,平台周围还种植了许多野生橄榄树和当地植被。
Thanks to this room’s openable double glazed facade it acts as a true thermal buffer becoming a cosy wintergarden in the mild season, a fresh shaded porch in the hot summers and the perfect hot-air insulating system in the winter. In the garden, wild olive trees and local vegetation surround a large limestone platform with a grey stone-coated swimming pool.
在客户明确表达了希望留下当地传统建筑特色,而不落入纯粹复制的俗套的意愿后,我们在建筑立面组成上重新诠释了米诺卡人的传统习俗,即在窗户边缘使用白色石膏,从而创造灰白色石膏与浅色石材的几何拼接效果。薄钢框架在突出坚实的建筑立面的同时,也起到了支撑可折叠木百叶窗的作用,保护窗户免受阳光直射。为了增强这种厚/薄的对比,所有窗户都与室内对齐,将框架从外部嵌入,在石墙上营造出了孔洞的错觉。
The client’s explicit wish to take strong references from the local traditional architecture faced the challenge of not falling into pure replica. The facade’s composition responds to a reinterpretation of the Minorcan custom of framing windows and edges with white plaster, thus creating a geometric patchwork of off-white plaster and light-tone stone. Thin steel frames project beyond the solid facade to protect the windows from direct sun and support the foldable wooden shutters. In order to enhance this thick/thin contrast, all windows were aligned to the interior and its frames were embedded from the outside creating the illusion of open holes on a stone wall.
室内的色调设计与建筑立面的泥土色调相似,由沙色混凝土路面、粉刷墙壁、松木和白色木梁组成。这些天然材料创造了既温暖又通风的效果。所有内置的厨房家具和衣柜都是当地木匠定制的。楼梯与扶手灯相结合的细节,也在传统建筑和现代建筑之间形成了有趣的对比。厨房、衣柜、图书室和壁龛都由砖石建造,以简洁为主,此外,为避免将照明装置暴露在墙壁或天花板上,整个房子中还使用了间接照明设计。
Similarly to the facade’s earthy palette, the interior is a combination of continuous sand-coloured concrete pavement, whitewashed walls, pine wood carpentry and white-veiled wooden beams. These natural materials create a both warm but also airy atmosphere within the pastel range. All built-in kitchen furniture and wardrobes are custom made by a local carpenter. Details such as a solid hovering stair with integrated handrail-lighting create an interesting dialogue between traditional and contemporary architecture. Kitchen, wardrobes, libraries and niches were built in masonry keeping simplicity as a common thread. Furthermore, the use of soft indirect illumination was also designed throughout the house, avoiding placing exposed lighting fixtures on walls or beam-ceilings.
我们受前人建筑的坚固性和紧凑性的启发,再结合现代建筑系统,使这座房子在可持续性能方面达到了最高等级:其高度隔热的表皮、立面的实心玻璃比例和灵活的遮阳技术保障了屋内全年拥有宜人的温度。
Inspired on the robustness and compactness of ancestral architecture, however using modern construction systems, this house reaches the highest ranking in sustainable performance. Its highly insulated skin, its facade’s solid-glass proportion and its flexible shading techniques guarantee a pleasant temperature all year around.
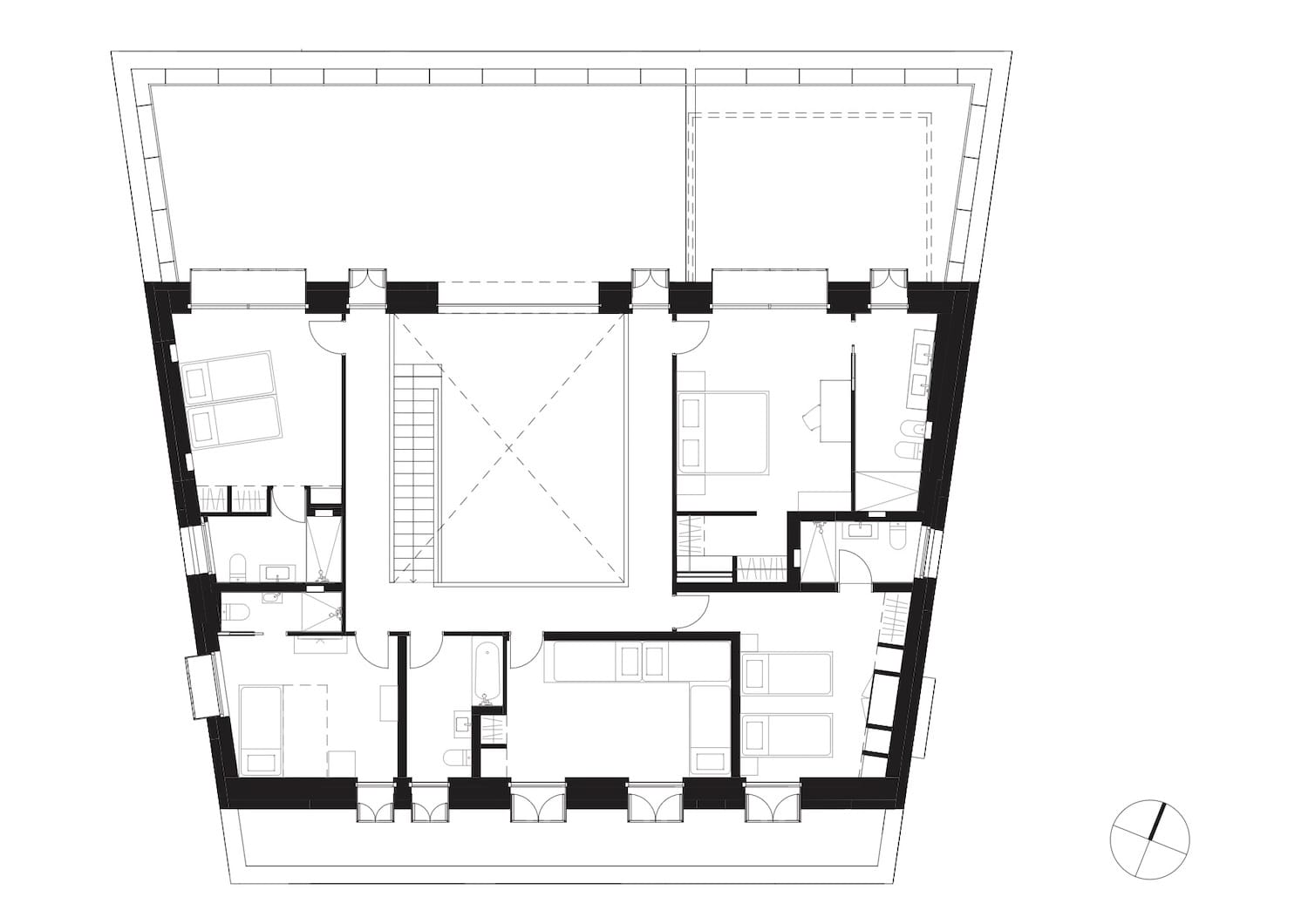
▼住宅各层平面图 Floor Plans
▼住宅立面图 Elevations
▼住宅剖面图 Sections
客户:私人 合作伙伴:Building Engineers Mus&Segui, Landscaping by Cristina Gil de Biedma & Bárbara Saavedra 面积:450平方米 项目地点:西班牙 米诺卡
合伙负责人:Alicia Casals 项目负责人:Alicia Casals 团队:Karl Johan Nyqvist, Mira Botseva, Jennifer Méndez 摄影:Joan Guillamat
Client: Private Collaborators: Building Engineers Mus&Segui, Landscaping by Cristina Gil de Biedma & Bárbara Saavedra Size: 450 m2 Location: Minorca, Spain
Partner-in-Charge: Alicia Casals Project Leader: Alicia Casals Team: Karl Johan Nyqvist, Mira Botseva, Jennifer Méndez Photography: Joan Guillamat
客服
消息
收藏
下载
最近











































