查看完整案例


收藏

下载
© VARP STUDIO
VARP工作室
架构师提供的文本描述。这个项目一开始就对许多泰国父母提出了一个非常基本的问题,当他们的孩子长大后,他们觉得自己的家庭已经准备好了:“一个家庭扩大后,如何能舒适地生活在一起?”
Text description provided by the architects. This project started off with a very basic question for many Thai parents when their children grew older and felt ready to have their own family: “how a family can live comfortably together when it becomes expanding?”.
© VARP STUDIO
VARP工作室
该网站最初挤满了一个50岁的传统泰国房屋结构,这是传给现在的主人从祖父母在15年前。这座老房子几代以来一直在扩大,直到它覆盖了大部分的地块。
The site was originally packed with a 50-year old traditional Thai house structure that was handed down to the current owner from the grandparents 15 years ago. This old house had kept expanding over generations until it covered most of the land plot.
© VARP STUDIO
VARP工作室
经过所有家庭成员的多次讨论后,该项目的简介分为两部分:(1)拆除现有传统住宅的三分之一,并对其进行改造,以适应父母的新生活方式。(2)兴建一幢新建筑物,以增加面积,使家庭中的每一个人都能愉快地分享,并以适当程度的私隐安置即将来临的新家庭。
After a number of discussions among all family members, the brief of this project was then divided into two parts: (1) tearing down one third of the existing traditional house and renovating it to suit new lifestyle functions for the parents, (2) erecting a new building to increase the area amount for the fact that everyone in the family can joyfully share and to accommodate the upcoming new families with a proper degree of privacy.
© VARP STUDIO
VARP工作室
然而,新房子的地块条件却相当奇特,首先,地块在街道下面约2米处。它的形状就像一条长长的锥形条形,长条沿运河延伸,而在短边则暴露在街道上。但由于一些技术问题,这栋房子的上层不得不远离街道一侧,导致房屋的占地面积减少。尽管如此,建筑师总结了所有的条件,并将它们转化为清晰的设计策略:(1)房子的顶部有一个基座和一个形式,因为街景和地块景观之间有很大的视觉差异,这说明它可以在视觉上暴露在街道上。(2)底座应该作为一个高架加以开发。为了增加可用面积,上面的形式必须由小的形式组合而成,这样就不会对周围环境有太大的支配作用。(3)住宅的垂直循环必须是螺旋楼梯,这样才能保证空间安全,并在房子的中心作为雕塑作品来表现。(鼓掌)
However, the plot’s conditions for the new house are quite peculiar. First of all, the plot is about 2 meters below the street level. Its shape is like a long tapered strip, which on the long side runs along a canal and on the short side is exposed to the street. But somehow with some technical problems the upper floors of the house has to set far back from the street side causing the footprint of the house to have less area to manage. Nonetheless, the architect has summed all conditions and turned them into clear design strategies: (1) The house is divided to have a base and a form on top in order to suggest a visual exposure to the street due to a big visual difference between the street view and the land plot view. (2) The base should be exploited as an elevated ground in order to increase the usable area, whereas the upper form has to be composed as a combination of small forms, so it will not appear too dominating to the surroundings. And (3) the vertical circulation of the house has to be the spiral stairs in order to safe space and performs as a sculptural piece at the center of the house.
© VARP STUDIO
VARP工作室
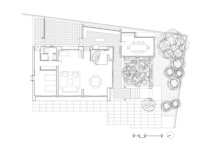
Ground Floor Plan
© VARP STUDIO
VARP工作室
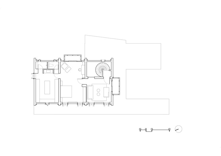
1st Floor Plan
一楼图则
在功能方面,该住宅按楼层排列如下:一楼设有一间客房和一个大的连接空间,供多个共用设施、一个起居室和一个就餐区,与厨房、多用途露台直接相连,还有前面的口袋花园。二楼的目的是为新家庭提供一个新的地方,让他们可以从山顶上欣赏花园。它被布置成一个厨房,可以为室外露台服务。它还有一个容纳一个家庭的住宿单元。它包括一个大卧室。一个步入式壁橱和一个套房浴室。最后,三楼是为另一家庭提供住宿单位的二楼的重复,但它有一个额外的私人客厅。
In the functional respect, the house is arranged by floor as follows. The first floor is set to have a guest bedroom and a big connecting space for several shared facilities, a living area and a dining area, directly connected to a kitchen, a multi-purpose terrace, and the front pocket garden. The second floor is somehow intended to perform as a new ground for the new families where they can enjoy the garden from the top view. It is arranged to have the stair hall as a pantry, which can serve the outdoor terrace. And it has an accommodation unit for one family. It comprises a big bedroom, a walk-in closet, and an en-suite bathroom. And lastly, the third floor is a repeat of the second floor for the accommodation unit for another family, except it has an extra private living room.
© VARP STUDIO
VARP工作室
Architects INchan atelier
Location Bangkok, Thailand
Architect in Charge Intanon Chantip
Area 380.0 m2
Project Year 2017
Photographs VARP STUDIO
Category Houses
Manufacturers Loading...
客服
消息
收藏
下载
最近




















































