查看完整案例


收藏

下载
Cortesía de Espiral
Cortesía de Espiration
架构师提供的文本描述。该项目包括在El Arrayán峡谷智利圣地亚哥山区的一个大斜坡上设计两栋140平方米的增量式、地中海式和相同的房屋。
Text description provided by the architects. The project consisted in designing two incremental, Mediterranean and identical houses of 140m2 on a big slope inside the mountains of Santiago de Chile, in the El Arrayán ravine.
Cortesía de Espiral
Cortesía de Espiration
这两栋房子是为一个家庭设计的,由一位叔叔和他的侄子组成,但该项目的计划是,在任何房屋都可以出售或出租的情况下,有可能接纳家庭以外的其他居民。
These two houses are designed for a family, compose by an uncle and his nephew, but the project was planned to leave open the possibility to receive other inhabitants outside the family in the case that any house could be sold or rent.
另一方面,这个地方的南面和阵列峡谷都有很大的视野,而在北面,在地点的顶端,通过了La Poza通道,那里的所有者想要在视觉上保护自己,以求安全。
On the other hand the place has a great view to the south, to the ravine of the Arrayán, while to the north, at the top of the site, passes the channel La Poza, where the owners wants to protect themselves visually for safety.
Cortesía de Espiral
Cortesía de Espiration
最初,这个程序是由客户定义的:两间卧室,一间起居室,另一间集成到厨房,以及主卧室内主浴室附近的一间大更衣室。
Initially the program was defined by the clients: two bedrooms, one living room and another one integrated to the kitchen and a large dressing room near the main bathroom inside the master bedroom.
在这种情况下,设计被认为是一种通用但适应性强的模型,从内部空间设计,确保了未来修改和调整的可能性。在构思了住宅内的宜居空间之后,我们发展了住宅的表现形式,作为对内部公共空间和外部公共空间的补充。这个项目被认为是一个生活将在公共空间中发展的地方,在那里,所有的围护,在两个层次上,聚集在一个巨大的中庭周围的一个巨大的中庭周围,两个高度通过一个大窗户和一个向峡谷投射的露台连接到外部。
Whit this, the design was thought as a generic but adaptable model, designed from the inner spaces, ensuring the possibility of future modifications and adaptations. After conceiving the habitable space inside the dwell we develop the expression of the house as a complement to the inner common spaces and the exterior public spaces. The project was thought as a place where the life will develop in the common spaces, where all the enclosures, at both levels, converge towards the center of the dwelling around a great atrium in two heights connected to the exterior through a large window and a terrace projected toward the ravine.
Cortesía de Espiral
Cortesía de Espiration
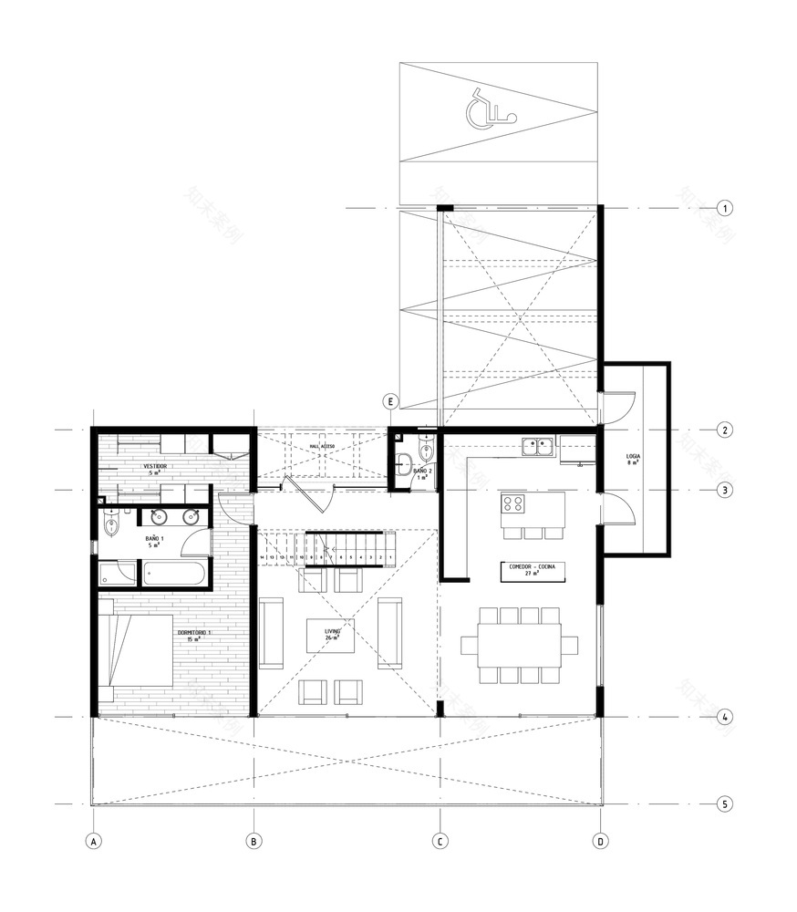
该项目定义开放,灵活,可变和相互关联的空间之间的两个层次的房子,通过不同的方式间隔的内部体积。它是一个坚实和密闭的第一级由混凝土和一个轻和温暖的第二级木材和战略窗口,以纳入辐射到大的中央中庭。这两个系统通过两个高度的中庭连接,通过梯子作为中心元素,充当内部和外部以及流通和生活空间之间的屏障。第一层向北突出其墙壁,配置停车场并容纳小山,目的是使第二层的停车结构和第一层停车位内的未来延伸成为另一个新的围护设施。每间房子的第一层都有一个门厅、客厅、厨房、门廊、客人浴室和露台,主卧室配有独立浴室和步入式壁橱。第二层有第二卧室和客厅可转换为假设的第三卧室面对客厅与另一个浴室。在流通桥上,我们在窗户上开发了一个大书架。
The project define open, flexible, mutable and interrelated spaces between the two levels of the house through different ways of spacing the internal volumetric. It is projected a solid and airtight first level by the concrete and a light and warm second level of wood and strategic windows for incorporates radiation to the large central atrium. These two systems are linked through the atrium in two heights, by the ladder as a central element that acts as a screen between interior and exterior and between circulation and living spaces. The first level projects its walls to the north, configuring the parking lots and containing the hill with the objective of propitiating future extensions over the parking structure for the second floor, and inside of the parking space in the first level for another new enclosure. Each house has in the first level an access hall, living room, kitchen, loggia, guest bathroom and a terrace, the master bedroom with an incorporated bathroom and a walk-in closet. The second level has the second bedroom and a living room convertible to a hypothetical third bedroom facing the living room with another bathroom. On the circulation bridge we develop a large bookcase on the window.
Architects Espiral
Location Lo Barnechea, Chile
Area 140.0 m2
Project year 2017
Category Houses
Manufacturers Loading...
客服
消息
收藏
下载
最近


















