查看完整案例


收藏

下载
“普通老城”和“新大商城”的两个方面-这座建筑是一座出租建筑,在名古屋的OSU有6层的钢筋混凝土建筑。虽然出租房屋往往受城市繁荣程度的影响,但我认为它可以发挥其潜力,即微观上的城市。由于在OSU有神殿和庙宇、传统商业街、杂耍剧院、日常生活、商业和娱乐,成为一个由普通人组成的城市。该网站还与一条主要街道与公路和萨凯,这是名古屋的中心城市。该网站有两个方面的“老城的普通人”和“新的大商城”。为了利用这个城市的特点,我设计了两个方面的建筑。
Two aspects of `Old city of Ordinary people` and `New big merchant City` This building is a rental building that has 6-stories RC construction in Osu, Nagoya. Although rental buildings tend to be affected by the degree of prosperity of the city, I think it can bring out its potential, which is city in microcosm. Since there are shrines and temples, traditional shopping street, vaudeville theater in Osu, daily life, commerce and entertainment are intermingled as a city of ordinary people. This site is also facing with a main street with highway and Sakae that is the central city of Nagoya. This site has two aspects of “Old city of Ordinary people” and “New big merchant City”. To take advantage of this trait of the city, I designed the architecture with two aspects.
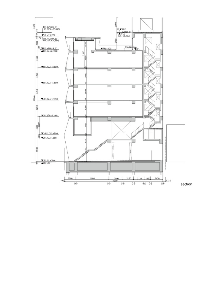
由于该建筑位于Sakae与OSU的交界处,在粗糙的混凝土结构中,各种尺度敏感性和多种类型的业务并存,面对主街的第一层和第二层为天花板高度为4.3m的大型单室商务空间,希望能为那些生机勃勃的城市的顾客提供服务。第三层-五层是典型的楼层,具有很高的弹性空间,可以通过将一间房分成三层来响应不同的行业类型。顶楼,天花板的一部分高度为5.4米,为工作室,也可分为三个房间作为典型的地板。由于所有的地板,墙壁和天花板是暴露混凝土,管道布置,空调和照明是开放的管道。变形网格的粗糙混凝土结构具有与各种内部结构共存的能力。
Various Scale Sensitivity and several types of business coexists in Rough Concrete Construction Since this architecture is located on the border between Sakae and Osu, the 1st and 2nd floor facing with the main street are for large scale one-room business space whose height of ceiling is 4.3m, hoping for customers from the lively cities. The 3rd-5th floors are typical floors with high flexibility space that can respond to various industry types by dividing one room into three. The top floor whose height of a part of ceiling is 5.4m is for atelier and it can also divided into three rooms as the typical floors. As all the floors, walls and ceilings are exposed concrete, the pipe arrangement, air conditioner and lighting are open piping. Rough Concrete Construction with deformed grid has the power that makes it possible to coexist with various kinds of interiors.
© Hiroshi Ueda
(C)上田浩史(Hiroshi Ueda)
© Hiroshi Ueda
(C)上田浩史(Hiroshi Ueda)
变形网格有两个方面的标志性外观和参照线的空间划分,变形网格正面创建的锯齿状梯田,吸引了人们的视觉。从正面看,变形的网格组织得很好。从斜角度看,锯齿状露台的深度感出现了。变形网格的外观因观点而异。变形网格具有两个方面的标志性作用,以吸引周围的人和参考线的空间分工,邀请小规模租户从OSU。我认为这座建筑将是一个灵活的建筑,不仅作为这个独特的立面,而且可以在未来转换为住宅、住宿等。
Deformed grid with two aspects of iconic façade and reference line of space division Deformed grid facade created by jagged terrace attracts people visually. Seen from the front, the deformed grid is well organized. Seen from at an oblique angle, the sense of depth of the jagged terrace appears. The look of the deformed grid varies according to viewpoints. Deformed grid has two aspects of iconic role to attract people around Sakae and reference line of space division to invite small-scale tenant from Osu. I consider this building will be a flexible architecture not only as this unique facade but can be converted to residence, accommodation and so on in the future.
© Hiroshi Ueda
(C)上田浩史(Hiroshi Ueda)
红环连接人们,我们总是专注于创造地方,在那里整个网站充满了各种各样的活动。建于1959年的前Hase-BLDG.1的屋顶上有啤酒厅,这给当时的地区和人民带来了活力和繁荣。为了满足客户的需求,这次我们设计了一个私人花园,屋顶上有一个红环形的柜台,以加深房客之间的友谊。它很高兴地见证了各个人通过设计架构相互交流的时刻。我希望像这样的半公共空间有潜力创造新的社区交流和各种活动,并激活城市。(Susumu UNO/CAN)
A red loop connects people We always focus on creation of the places where whole the site is full of various activities. The Former HASE-BLDG.1 built in 1959 had Beer Hall on its rooftop, which brought vitality and prosperity to the area and people in those days. To meet the client's demand, this time we designed a private garden with red loop shaped counter on the rooftop to deepen friendship between tenants. It is happy to witness the moment when various people communicate with each other by designing architectures. I expect semi-public space like this has potential to create new neighborhood communication and various activities, and activate the city. (Susumu UNO/CAn)
© Hiroshi Ueda
(C)上田浩史(Hiroshi Ueda)
Architects Coelacanth and Associates
Location Osu, Naka Ward, Nagoya, Aichi Prefecture 460-0011, Japan
Project Year 2016
Photographs Hiroshi Ueda
Category Apartments
客服
消息
收藏
下载
最近



















