查看完整案例


收藏

下载
这座新的葡萄酒吧坐落在原本的酿酒厂建筑中。设计师在空间中设置面对面的开口,以打开景观视野。游客可以拿一杯红酒,在玻璃围合的巨大飘窗中放松身心。所有表面装饰都被清除,露出原始的材料。精致的家具均为定制,与结构无缝交织在一起。
The new wine bar is located in the former winery premises. We are carving large openings situated opposite one another to open up the views. We are adding an all-glass, oversized bay window where one can relax with a glass in hand. We are cleaning all the surfaces, revealing their rawness. The delicate furnishings are bespoke, woven seamlessly into the structure.
▼建筑鸟瞰,位于葡萄园中,aerial view of the building in the vineyard ©BoysPlayNice
酿酒厂由Burian-Křivinka建筑设计事务所于2010年设计,但是仅有一小部分建成,与预想的效果大相径庭。新的业主希望改造这栋建筑,将其向公众开放。葡萄酒吧是此次改造工程的第一步,位于原本的仓库之中。
The winery building was designed in 2010 by the architectural studio Burian-Křivinka. However, only a fragment of the winery was built. The result, unfortunately, differs significantly from the project. The new owner wanted to reclaim the winery building and open it to the public. The first step towards revitalisation is the new wine bar in the space of the former warehouse.
▼顶视图,top view ©BoysPlayNice
空间需要更多光照,并且要与外界相连。为此,设计在立面上开了数个面对面的的巨大窗口,使得游客可以从入口看到房屋。在葡萄酒吧内,游客可以享受两种景观,分别为近处的葡萄园和远处的Nové Mlýny保护区。穿过转门便到达了室外露台,巨大的玻璃飘窗向另一侧开放,游客可以坐在这里啜饮美酒。
The space needed brightening and connecting to the exterior. We cut extensive openings located opposite one another. The viewer can thus see the house from the entrance. From the wine bar area, the viewer is offered two kinds of views – the close sight of the vineyard and the distant scene of the Nové Mlýny reservoir. A swinging door opens onto the terrace, while a large all-glass bay window faces the other side, where one can sit with a glass in hand.
▼巨大的开口,extensive opening ©BoysPlayNice
▼飘窗,bay window ©BoysPlayNice
所有室内完成面上的涂料都被刮去,使内部的混凝土裸露在外,损毁严重的区域由水泥砂浆填补。地面采用聚氨酯材料,呈现出红酒的颜色以及粗犷的纹理。游客可以把注意力集中在品酒上,不用担心红酒洒出弄脏地面等问题。
All interior surfaces have been stripped of paint and cleaned to bare concrete. Excessively damaged areas are complemented with cement screed. The floor has a polyurethane finish in a shade of red wine with a wild texture. Visitors can concentrate on tasting without worrying about spilling anything.
▼裸露的混凝土墙面和酒红色地面 exposed concrete wall and flooring in the color of red wine ©BoysPlayNice
所有家具都由钢和橡木制成,染上了不同颜色。吧台上方悬挂了一盏巨大的椭圆形吊灯,成为了酿酒厂的视觉标志之一。
All furnishings are made to measure from steel and oak wood of various stains. A gigantic ellipse-shaped chandelier hangs above the bar, forming part of the winery’s visual identity.
▼吧台空间,bar area ©BoysPlayNice
▼吧台上方悬挂椭圆形吊灯,ellipse-shaped chandelier hung above the bar counter ©BoysPlayNice
游客可以坐在与定制灯具整合在一起的宽敞长椅上。灯罩参考了醒酒瓶的形状。长椅背板后还设置了吸音板,使得室内环境更加安静舒适。对面的墙上设有葡萄酒架,由钢管和皮带巧妙构造而成。
Guests can sit on a large bench that integrates custom-made lamps. Their lampshades loosely resemble a demijohn. The bench has a panel behind its back, which improves acoustic comfort of the interior. On the opposite wall is a wine rack. The subtle construction consists of steel bars wrapped with leather straps.
▼与灯具整合的长椅,bench integrated with lamps ©BoysPlayNice
▼从长椅看向对面墙壁上的葡萄酒架,view to the wine rack on the opposite wall ©BoysPlayNice
▼灯具细部,details of the lamps ©BoysPlayNice
▼葡萄酒架,wine rack ©BoysPlayNice
▼葡萄酒架由钢管和皮带组成 wine rack composed of steel bars and leather straps ©BoysPlayNice
独立的休息区主要包含巨大的桌子和木制天花,其中整合了吸音板和灯具。墙壁上展示了从Reisten酿酒厂的葡萄园中获取的土壤样本。
The separate lounge is dominated by a large table and a circular wooden ceiling that hides acoustic panels and integrates lighting. Soil samples from specific vineyards of the Reisten winery are displayed on the walls.
▼休息区,lounge ©BoysPlayNice
▼墙壁上展示葡萄园的土壤样本,soil sample from the vineyard displayed on the wall ©BoysPlayNice
▼从露台看向休息区,view to the lounge from the terrace ©BoysPlayNice
▼卫生间,washroom ©BoysPlayNice
巨大的橡木露台是最佳的座位区,设有遮阳帆布。露台面向附近的葡萄园,人们可以在这里欣赏Děvín落日。
The best place to sit is the large oak terrace, shaded by a shade sail. The terrace opens up onto the nearby vineyard and offers a view of the sunset over Děvín.
▼露台,terrace ©BoysPlayNice
▼从露台欣赏落日,enjoy the sunset from the terrace ©BoysPlayNice
▼露台夜景,terrace in the night ©BoysPlayNice
▼总平面图,site plan ©ORA
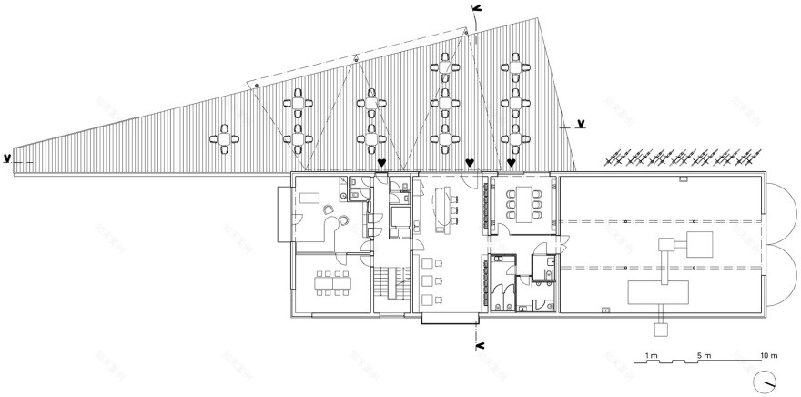
▼平面图,plan ©ORA
▼立面图,elevation ©ORA
▼剖面图,section ©ORA
▼家居细部,details of the furnishings ©ORA
▼项目更多图片
客服
消息
收藏
下载
最近




































