查看完整案例


收藏

下载
「空山九帖·秦岭」位于陕西省留坝县的秦岭南麓山间,是 STUDIO QI 建筑事务所承接的“秦岭·宿集”民宿集群中的重要节点,也是该集群中最先建成的建筑。宿集距离秦岭汉中市机场约 1 小时 40 分钟时间的车程。「空山九帖」坐落于秦岭山麓中,直面悬崖,身前身后高山连绵,临万丈崖下溪水湍流,这里犹如秦岭的断面,也就是建筑意义上“秦岭的剖面”。正如温和的京都秋日红叶引人遐想,而如热烈火焰般的「空山九帖」秋色则瞬间浸染整片山脉。建筑师意欲将建筑与场地之间建立一种微妙的轻质关系:建筑微微停留于秦岭山岭之间,面向悬崖。建筑底部微微抬起,秦岭山峦间流动的“气流”穿过建筑底端,汇入悬崖中,建筑也乘着这股气流而好似漂浮起来,似即将起飞的舱体。
▼「空山九帖·秦岭」置身于秦岭山脉——悬崖前实景 project located in the foothills of the Qinling Mountains©唐徐国
LONE-M HOTEL · QINLING is located in the foothills of the Qinling Mountains near Liuba, Shaanxi province of China. This incredible site is directly facing a large forest cliff, as if it was becoming a deliberate cross-section of Qinling. The site area for the project is 3906 square meters, and the building area is 800 square meters, consisting a cafe, 8 guest-rooms and suites, and a viewing roof platform. The architect Shanshan Qi intends to establish both a subtle but bold relationship between the building and the site: the building is lifted slightly above the articulating landscape, and adjusts its volumes carefully to views; at the same time, the architecture creates a set of orthogonal strategies reacting to the particular visual and circulatory flow on site, and sets itself parallel-ly against the direction of the facing cliff. The building itself rides on the airflow between the cliffs, like a cabin about to take off.
▼北侧正立面实景,north facade of the project©唐徐国
▼项目置身于秦岭山脉中,distanced aerial view of the project located in the mountains©唐徐国
▼顶视鸟瞰实景,view of the project from top©金伟琦
▼初夏北侧入口面实景,aerial view from the entrance side in the early Summer©金伟琦
▼秋日景观面实景,aerial view from the landscape side in the Autumn ©王宁
「空山九帖·秦岭」将人从无边界的大空间转换到包裹身体的小空间中:从山野回到睡房,建筑入户的游走体验将宏大场景逐渐调和与转化为了细微的亲人场景。置身于山峦,人就是沧海一粟;进入包裹身体的室内,人成为主角,而宏大与令人畏惧的山峦则成为窗外的风景。
▼场地关系剖面示意图,cliff section©STUDIO QI
▼场地关系轴测示意图,axonometric, relationship between the project and the mountains©STUDIO QI
▼场地立面关系分析图,elevation, relationship between the building and the terrain©STUDIO QI
从大场景到小场景的空间序列。从「空山九帖·秦岭」前蜿蜒的山路至建筑另一侧面向山峦的阳台,沿着这组空间流线是连续的、充满仪式感的行走体验。建筑前的山路置于秦岭山脉中,宏大的山脉从山路两侧倾泻而下,场景宏大而行人微小。当跟随山路行至建筑外廊,一段由混凝土浇灌的悬板框住短桥,连接着客房与外廊。悬板与短桥形成了与山径截然不同的空间体验:踏入平行于建筑主体的悬桥,人体 90 度转向,身体被悬桥与独立片墙构筑物夹持,空间维度横向收缩,景深顺势延展,构成「空山九帖」独特的户外门廊系统。悬桥走廊与客房主体再次以短桥和天井的置入相分离,从而重新构造了入户体验的空间性认知。通过短桥,脚步再次 90 度转向,经过一缕撒入天井的阳光,客人步入玄关。正式进入室内场景后,空间维度再次被收缩,当经由起居、卧室,行至阳台,秦岭山脉的断面逐渐放大,横展眼前,那种人至于浩瀚自然中的状态再次重现,又以全然的心境回归对山川的照看。「空山九帖·秦岭」的空间序列所营造的从宏大到细微再到宏大的场域转换,给予人绝对而又有身体关照的秦岭体验。
▼北侧正立面实景,external view of the project from the north side©金伟琦
▼北侧悬桥与入口实景,bridge and entrance©王宁
▼被场地微微托起的建筑,elevated building corresponding with the site©金伟琦
南侧景观面建筑实景,external view of the building from the south side©金伟琦
南侧套房景观面,suite on the south side©金伟琦
建筑与场地借助“气流”的概念建立了一种轻质的联结。建筑彷佛停留的舱体,被流动于悬崖和山体间的气流微微托起。
在「空山九帖·秦岭」的设计中,“气流”具有两层含义:
(1)“气流”指向空间流通,即建筑形体不打断场地的空气流、不打断场地空间的关联、也不打断场地空间与山脉自然基地的关联。
(2)“气流”指向视线的连续性,即建筑空间序列的设计使得人在行走时的视线如流动的气体一般,可以自由的穿越建筑、场地与山林。
▼建筑内外空间“气流”形态分析之各剖面关系,sectional analysis of the“flow”©STUDIO QI
在具体的建筑思考中,首先,建筑师通过底层架空的方式,使得场地的草甸呈现连续的景观,气流可以环绕建筑流动,而不被建筑切断;其次,客房门前的开敞天井空间,连接着周边的草甸,将建筑切分为小体量,使建筑轻盈,也减少了建筑体对场地的阻断感。
▼建筑内外空间“气流”形态分析,analysis of the“flow”in and outside the building©STUDIO QI
在连续的视觉线索设计中,视线从山路开始望向无尽的秦岭,至平行于山崖的建筑被阻挡,视线在微妙变化的路径中经由斜桥、公区、悬桥、短桥、玄关、起居、卧房终至阳台,在阳台驻足,视线线索正是成为行为的引导,将不同属性的若干层空间联结起来。
人在山路行走望见被轻轻抬高的「空山九帖」,能看见草甸延续至建筑后方,后方的景色却被建筑控制和遮掩。
进入客房,能够看见藏身于玄关一隅的秦岭框景,引导人向前探索。
移步阳台,隔岸的山林与山脉再无遮挡的显现于面前。
视野彷佛可以随着山势向上移动,至天空与山的交界处。
视野的骤变为人带来强烈的情感冲击,使人从现实时空瞬移到秦岭猿鸣遍山的古境,沉浸于秦岭静寂而广袤的山脉中。
▼建筑内外“气流”形态分析解剖示意图,analysis of the“flow”in different areas©STUDIO QI
身体的多维状态在 XYZ 轴的空间关系交织中展开。「空山九帖·秦岭」呈东西向布置,入口朝北,南侧面山,屋顶设露台。▼建筑与场地 XYZ 轴多层级序列关系,sequence of the building and the site©STUDIO QI
X 轴的空间序列:东西向设定为 X 轴,建筑沿 X 轴布局,主游走动线也依循 X 轴延展,使身体一直依附于建筑主体轴线的关系沿山体间穿梭。同时,主动线也与建筑主体分离,空间关系及体验序列必须由 90 度相交的 Y 轴构建连接,进行状态转换。屋顶平台及客房阳台序列也由 X 轴线展开,与悬崖断面平行。
Y 轴的空间序列:南北向设定为 Y 轴,即从玄关至阳台的流线方向,这是建筑的短切面,也是场景转换的集中体现。建筑在 Y 轴中实现了从外部空间到室内空间的场域转换,并在室内空间塑造了丰富的空间转换:从悬桥、片墙、短桥、门洞、玄关、卧房、阳台,视野不断切换,视线与动线交替构成了微妙转换的动态场域。
Z 轴的空间序列:Z 轴为垂直高度向的空间实践。秦岭山脉在 Z 轴呈现盘错而上的趋势,并且在悬崖与溪流的直线落差间体现的淋漓尽致。「空山九帖」设双 Z 轴体系,其一,为建筑北侧与短桥并置的垂直天井,由此分离了外走廊与客房门檐,塑造入户场景的片断性;其二,为跃层套房内的垂直天井,串联二层北侧入户与一层北侧出户直至悬崖前的纵向动线连接。
▼北侧局部立面,partial elevation of the north side©金伟琦
▼北侧悬桥与入口局部,bridge and entrance on the north side©王宁
▼北侧悬桥与入口 Y 轴实景,view of the Y axis©金伟琦
几乎没有视线阻挡的秦岭断面扑面而来,我们在这里,呼吸着森林的清流,倾听着秦岭的脉搏,饱览的是无与伦比的秦岭正观立面。
▼建筑与功能分解轴测示意图,exploded axonometric©STUDIO QI
「空山九帖·秦岭」的室内场景与身体状态和空间方位紧密关联,影响着人与空间的场域关系。
▼北侧公共区域大门实景 entrance door of the public area on the north side©唐徐国
「空山九帖·秦岭」的公区是一个可以展望群山的空间,整体氛围通透开放,设置前台、早餐与下午茶。公区位于建筑一侧的尽端,脱离开客房主体而侧身而置,好似一处渴望伸向秦岭山脉深处的构筑物。公区体块三面设玻璃窗,使人仿佛被迎面的秦岭切面环绕。由室外进入建筑的路径与进入公区的路径呈现近 150 度的折角,人们在这里经过一次并不促急的转弯,穿过悬板,进入前台空间。再回转向内进入休憩间放下行李,旅人赶路时的匆忙与浮躁感仿佛在这一刻消失,只剩被秦岭包裹着自己那已然静下来的灵魂。
▼建筑西南侧公区早餐厅,dining space on the southwest side©金伟琦
建筑师针对「空山九帖·秦岭」客房的空间序列关系进行了细腻的思考。在客房的进深方向,也就是 Y 轴中,玄关、起居室、卧房与阳台依次递进,分别引导不同的观景状态,山川的幽静和悬崖的肃穆在不断深入客房的进程中逐步展开。建筑师通过将起居室与卧房中的“坐”与“卧”两种状态在进深方向的位置进行互换,构成 A 与 B 两种典型客房户型,且形成四种不同的观景体验,可盘腿正坐于悬崖断面前,也可直面躺卧于山脉间。
▼建筑南侧户型 B 客房起居与观景阳台,guest room B and the balcony©金伟琦
▼建筑东侧户型 C 套房 Z 轴天井串联,C suite and the sky well©金伟琦
「空山九帖·秦岭」另设有两间跃层套房,称为户型 C+D。西侧尽端设转角落地玻璃窗,被景观怀抱。该户型由二层进入 Y 景深空间,并由 Z 轴向的室内天井串联向下,放眼望去,一层起居已沿展于草甸中,而二层楼板浮于空气中。
在「空山九帖·秦岭」的客房体系中,卫生间与主体生活区域由 X 轴向平行并置,内部功能由 Y 轴向依次排列。方形浴缸位于景观最前端,与空旷的阳台相连,勾勒出两种躺着看风景的姿态。此时,沐浴所带来的放松感觉成为观景体验的一部分,而被葱葱郁郁的山林环绕的沐浴也构成了独特的居住体验,给人提供了近似露天沐浴的野生质感。几乎没有视线阻挡的秦岭断面扑面而来,我们在这里,呼吸着森林的清流,倾听着秦岭的脉搏,饱览的是无与伦比的秦岭正观立面。
▼建筑东侧 C 套房 Y 轴串联,upper floor of the C suite©金伟琦
▼建筑东侧户型 C 套房 Y、Z 轴串联,combination of the Y and Z axises in C suite ©金伟琦
户型 C 套房观景阳台,balcony of the C suite©唐徐国
▼秦岭深处沉浸于日落中的建筑,building in the dusk©唐徐国
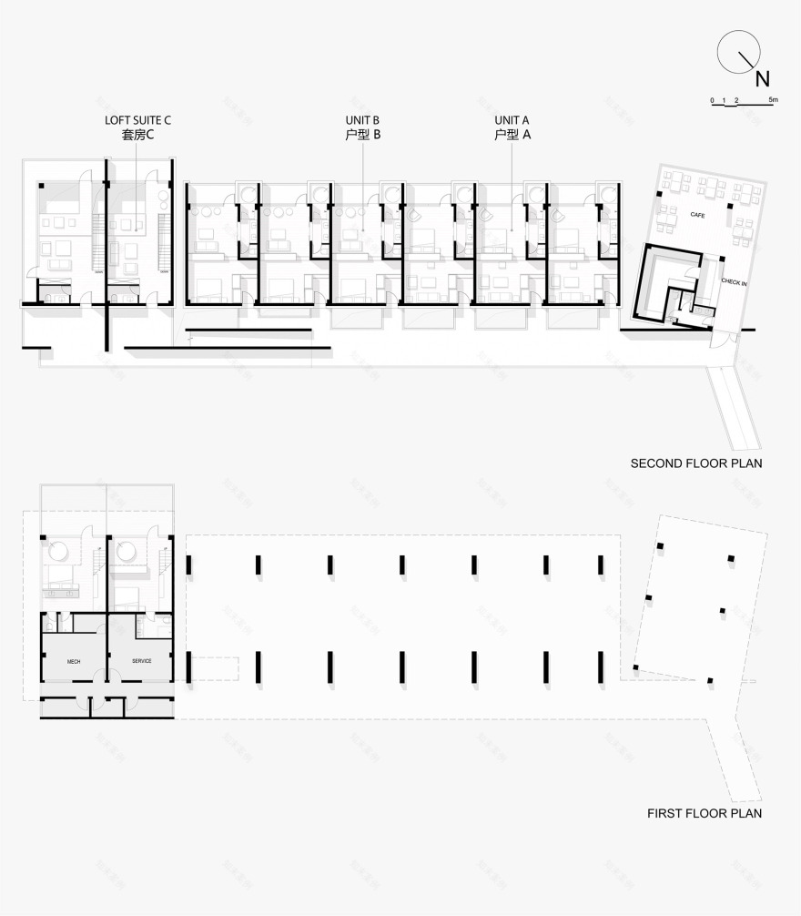
▼建筑一层与二层平面示意图,plans©STUDIO QI
▼建筑南北侧立面示意图,elevations ©STUDIO QI
▼项目更多图片
客服
消息
收藏
下载
最近








































