查看完整案例


收藏

下载
© Hiroshi Ueda
(C)上田浩史(Hiroshi Ueda)
© Hiroshi Ueda
(C)上田浩史(Hiroshi Ueda)
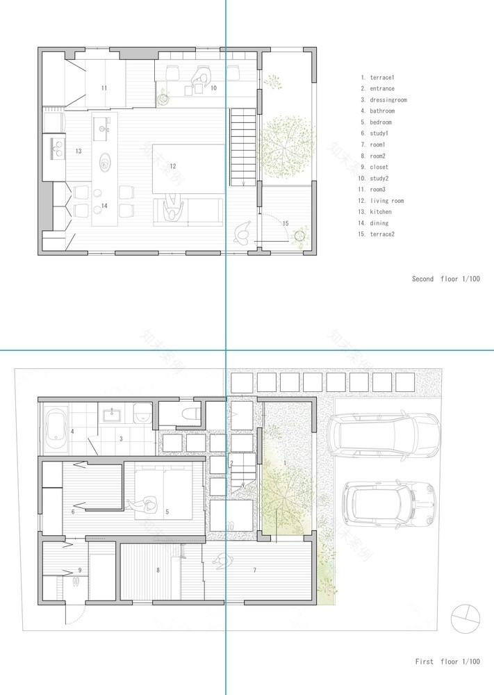
该住宅以一间7m×7m的整体空间为目标,底层设有卧室、客房、洗浴室、二楼的LDK、自习室等,其周边环境为3Ways。基本上,房子的设计是一个整体的房间,是7m×7m,同时考虑使每个空间尽可能小。
The house aim the space such as one integral room which is a 7m×7m+X.There are Bedroom and guest room, wash room and bath room in the ground floor , also LDK and study room on second floor because of referencing around site environment surrounded 3ways. Basically the house is designed like one integral room which is 7m×7m while considering to make each space as small as possible.
© Hiroshi Ueda
(C)上田浩史(Hiroshi Ueda)
此外,院子的空间设置为道路与外部连接,作为内墙的延伸。因此,我们比物理范围空间更能感受到额外的空间。此外,通过设置这个墙,它可以顺利地连接到外部区域,以确保隐私。在二楼,可以在不受周围环境影响的情况下,从北到南的顶部照明。
In addition that, the yard space set to road which connect to outside as extension of interior wall. Therefore we can feel the extra space more than physical extent space. Furthermore by setting this wall, it can connect to outside of area smoothly as ensure the privacy. On the second floor, it could be possible to get lighting inside without affection by around site environment from the top light which exists north to south.
在庭院方面,我们可以感受到南侧闪电从LDK到学习室的整体设置,从北到南院子。同时,通过将自习室设在北侧,可以使北面的阳光持续照射,从而成为舒适的自习室。在这所房子里,它可以在室内尽可能多地感受微风,每天在自然阳光下生活。
Regarding yard, we can feel south side lightning from LDK to study room integrally by setting yard on north to south. And also it could be comfortable study room owing to constant sunlight of north direction by locating study room to north side. In this house It’ s able to live as feeling gentle breeze and daily under the natural sunlight as much as possible in interior room.
Architects UID Architects
Location Hiroshima, Japan
Category Houses
Architect in Charge Keisuke Maeda
Area 57.0 m2
Project Year 2012
Photographs Hiroshi Ueda
客服
消息
收藏
下载
最近
















