查看完整案例


收藏

下载
随着电动化、智能化、网联化时代的到来,汽车的技术、功能,以及与人的关系都在发生改变,汽车消费升级,也突破了传统4S店的展销手段,走向全新的共享体验模式。
蔚来作为新能源汽车行业的引领者,优先把「车以外的生活方式」耕深进品牌,以车为出发点,用日常化的运作共同构筑用户社区。
NIO Life主要在做的事是通过一辆车来丰富和提升你的生活方式,有一个蔚来所倡导的生活方式和审美标准,这种由我们定义的生活方式和审美标准反过来会定义人群,而人群选择品牌,让人和人之间相处起来更快乐。
——秦力洪 蔚来联合创始人、总裁
HELLO, WUHAN!
在这千年之城,中西各式建筑相存相依,如一副画卷展开,彰显了武汉市的包容与活力。我们解读城市与蔚来基因中的种种,以构建新的生活方式与共享体验为出发点,链接品牌与用户,实现空间概念设计。
生活方式对当下的消费人群来说并不是个陌生的词汇,它有时候像是口号,但在蔚来看来,它是确确实实具备一种实践性。
不管是NIO APP还是NIO House,都是因链接人与人之间的情感而存在,为了建造真实的生活方式而做出的努力。
01 / 未来生活方式的探索之旅
NIO House的设计遵循蔚来的用户运营理念,室内追求合理、灵动的变化模式,通过设计打破人与人之间的边界隔阂。我们相信这是未来所提倡的生活方式,无边界、无负担,温暖直抵内心。
02 / 车以外的生活方式
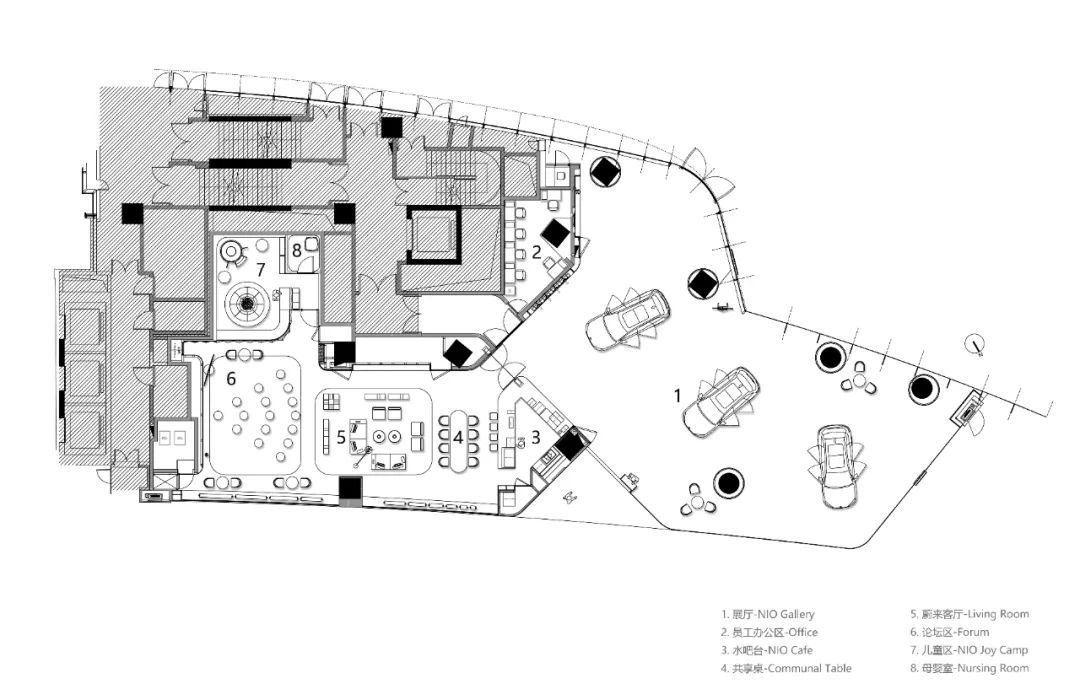
蔚来在每个城市的NIO House均包含Living Room、Café、Joy Camp、Forum等功能空间,这些鲜活的生活场景,形成一个融合社区,为用户营造超越预期的愉悦体验。
Blue Sky Coming
蔚来的蓝,是海洋的蓝,是自由的蓝。
橱窗设计以 NIO MODEL BOTTLE 为灵感,瓶身1:18的完美比例,由不同色阶层次模拟蔚来之光,美好浪漫的场景是空间内外的视觉焦点所在。
03 / 生活灵感在蔚来
简约色彩创造纯净的氛围,转角可视化处理让室内外无界,全透视切面设计富有未来感的轮廓,使空间富有动态且增加用户的好奇心,吸引新用户探索其中。
室内规避出现明显的指示标志,且并不存在所谓的行径动线,这也是为了给用户打造一种放松愉悦的探索方式。从品牌的角度出发,更大程度体现城市年轻与多元,以更温和的、更国际化的视野感染用户。
Café区域以V型转角吧台打破沉结构,一旁的Communal Table还原社交场景,办公或是商务洽谈,用户可自主调整所需模式。这里可以被称为理想的共享空间,足够令人放松地享受其中,就像来到朋友家一般惬意自在。
人物访谈、知识讲座、音乐会等等年轻人所热爱的生活方式,在这里都可以一一实现。
在Joy Camp,孩子们可随心探索未来与享受此刻,家具选用无棱角、全包围的柔软面料,保护孩子们的安全与舒适。设计关切着成长的细节,让整体空间简约而温馨。
项目全名:恒隆蔚来中心
空间概念设计:元禾大千
设计时间:2021.05
完工时间:2021.09
客服
消息
收藏
下载
最近
































