查看完整案例


收藏

下载
© Alexander Severin
亚历山大·塞韦林(Alexander Severin)
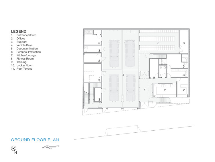
架构师提供的文本描述。这两层楼高12,400平方英尺的现代设计容纳了纽约消防局(FDNY)的救护人员和车辆,并占据了纽约大都会大道上靠近迅速发展的威廉斯堡布鲁克林街区附近的一个显眼的地点。该站是FDNY计划的一部分,其目的是通过增加车站的数量,从而减少救护车前往有需要的人的距离和时间,从而改善整个城市对医疗紧急情况的反应时间。车站的要求导致该设施分为四部分.
Text description provided by the architects. The two-story, 12,400-square-foot contemporary design accommodates the Fire Department of New York (FDNY) ambulance crews and vehicles and occupies a prominent site on Metropolitan Avenue near Bedford Street in the rapidly developing Williamsburg, Brooklyn neighbourhood. The station is part of FDNY’s plan to improve response time to medical emergencies throughout the city by increasing the number of stations and thereby reducing the distance and time ambulances travel to those in need. The station’s requirements led to a four-part division of the facility.
© Alexander Severin
亚历山大·塞韦林(Alexander Severin)
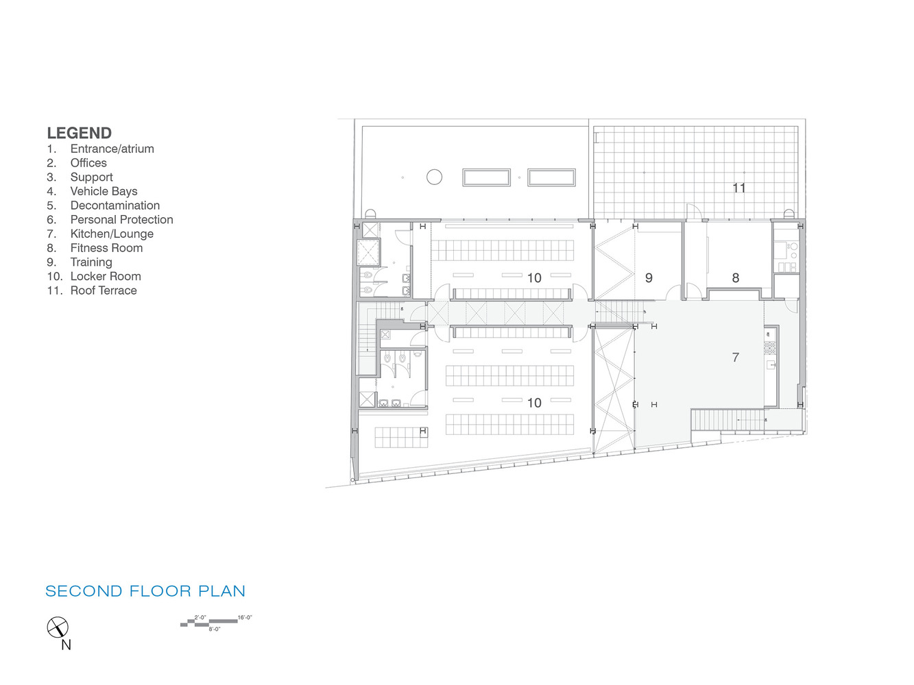
由于容纳车辆的空间要求比车站其他地方的最高高度高,车站的一边比另一边高,这种变化有助于组织其功能。在一楼东是四辆车的空间,一个车辆保障区和个人防护设备的储存,而向西是中尉的办公室和其他行政空间。在二楼,东侧为维持车站三班制的54名妇女和97名男子提供更衣室和浴室。西侧有健身设施、训练室和700平方英尺的厨房和休息区。
Since the space for housing vehicles calls for a higher ceiling height than in the rest of station, one side of the station is taller than the other and that change helps organize its functions. On the ground floor to the east is space for four vehicles, a vehicle support zone and personal protective equipment storage, while to the West are the lieutenant’s office and other administrative space. On the second floor, the east side supports locker rooms and bathrooms for the 54 women and 97 men who maintain the station’s three shifts. On the west side are a fitness facility, training room, and 700-square-foot combined kitchen and lounge area.
Ground Floor Plan
一楼不同的天花板高度重复在二楼和屋顶线。建筑师用天窗来标记它,天窗从前面延伸到建筑物的后面,将阳光带到二楼,并通过地板上的一个开口一直延伸到地面。双层玻璃封闭式入口也标志着功能的划分,并充满了自然光。在外部,卷起的fdny红色车门在车辆一侧引入明亮的颜色,否则,主要是一个凉爽的玻璃外墙。
The first floor’s different ceiling heights repeats at the second floor and the roof line. The architects mark it with a skylight that extends from the front to the back of the building bringing daylight to the second floor and through an opening in the floor to the ground level. The double height glass-enclosed entry also marks the division between functions and is filled with natural light. On the exterior, roll-up FDNY red doors on the vehicle side introduce bright colour for what is otherwise a primarily cool, glass façade.
© Alexander Severin
亚历山大·塞韦林(Alexander Severin)
透明的出口楼梯提供了一个对角线雕塑的缝隙,中间夹着两片平行于街道外墙的穿孔铝,连接着二楼的入口。90英尺长,二层半透明的玻璃墙,带有蜂窝图案的玻璃插入,似乎漂浮在一楼之上,也是建筑物强烈身份的一部分。傍晚时分,新建的绿点EMS站在威廉斯堡社区有着独特的存在。
Providing a diagonal sculptural break is the transparent exit stair, with perforated aluminium sandwiched between two sheets of glass that runs parallel along the street façade, connecting the entrance to the second floor. The 90-foot-long, second-story translucent glass wall, with a honeycomb pattern glass insert, appears to float above the ground floor and is part of the building’s strong identity. Aglow in the evening, the new Greenpoint EMS Station is a distinct presence in the Williamsburg community.
© Alexander Severin
亚历山大·塞韦林(Alexander Severin)
Section Elevation
剖面高程
© Alexander Severin
亚历山大·塞韦林(Alexander Severin)
Architects Michielli + Wyetzner Architects
Location Brooklyn, NY, United States
Project Team Frank Michielli, Michael Wyetzner, Rebecca Arcaro, Jason Pogorzala, Kotting Luo
Area 12500.0 ft2
Project Year 2013
Photographs Alexander Severin
Category Emergency Services Facility
Manufacturers Loading...
客服
消息
收藏
下载
最近

















