查看完整案例


收藏

下载
Sarah Wigglesworth Architects重新装修了20世纪早期的工业建筑,为一家慈善机构创建工作室,支持艺术家在伦敦寻找廉价的工作空间(幻灯片)。
SarahWigglesworth建筑事务所对艺术慈善空间的破旧结构进行了彻底的改造,该机构经营着18座艺术家工作室,为伦敦各地的700名艺术家提供工作空间。
位于伦敦东部的哈克尼社区,黛博拉大厦在20世纪80年代被改造成工作室,然后在2010被空间收购。
它已逐渐退化到破旧的状态,这就需要彻底的翻修。
该项目是该慈善机构与萨拉·维格斯沃思建筑师(Sarah Wigglesworth Architors)合作的最新项目,后者之前的项目包括英格兰北部的一所学校,以及一座拥有宝石般的皮肤的伦敦自行车储藏设施。
该项目的一个关键目标是保持一个工作空间经常被改建为住宅的区域的创造性活力。
为了改善建筑物的外观和内部状况,同时又坚持严格的预算,翻修的费用仅为每平方米363英镑。
该工作室解释道:“这座前工业建筑的轻巧翻新为艺术家提供了2305平方米的实惠厂房空间,并在面对日益增长的士绅化和平淡的新开发项目时,保留了东伦敦的一些丰富性格和特征。”
最显著的改变是在建筑物的外部,在那里损坏和腐烂的砖块是护套在一个新的绝缘皮肤金属型材覆层。
该小组声称,更新后的外观处理“给黛博拉豪斯一个新的形象,采取灵感,而不是复制,现有的建筑和战后的环境。”
在瓦楞纸金属表面的开口仔细定位暴露了原来的砖块的部分,包括在正门周围。
新的大玻璃窗采用镀锌钢包围中断脊覆层,并采取行动漏斗自然光进入工作室。网格状的窗口排列与原始立面的简单几何形状相呼应。
德博拉大厦在装修前处于破旧状态。
一个锯齿形屋顶,曾经在建筑物的顶部,但已陷入失修状态,被移除,为扩建提供空间,为更多的工作室。
简单的体积是从主要的海拔和覆盖纤维水泥板,区别于建筑物的其他部分,同时参照现有砖的色调。
建筑师们用一种新的金属型材包覆的绝缘皮来保护受损和腐烂的砖块。
增加了一个刚玉屋顶,以减少雨水流失,并提供野生动物栖息地。天窗点缀在这个平面上,在下面的空间中引入额外的日光。
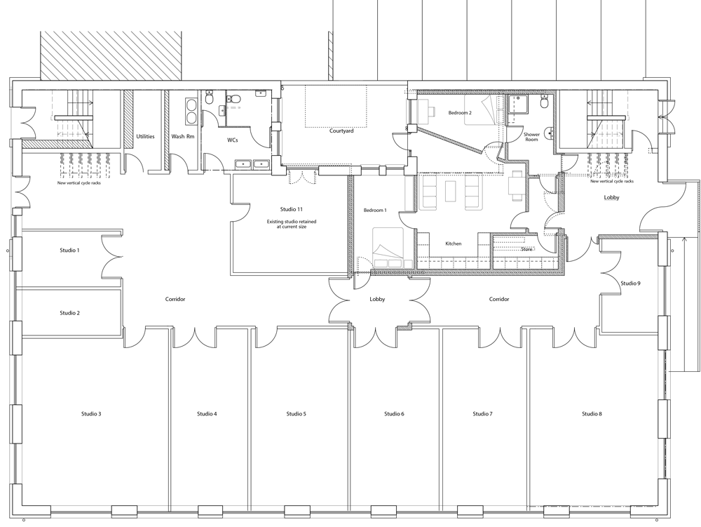
底层平面图-点击获取更大的图像
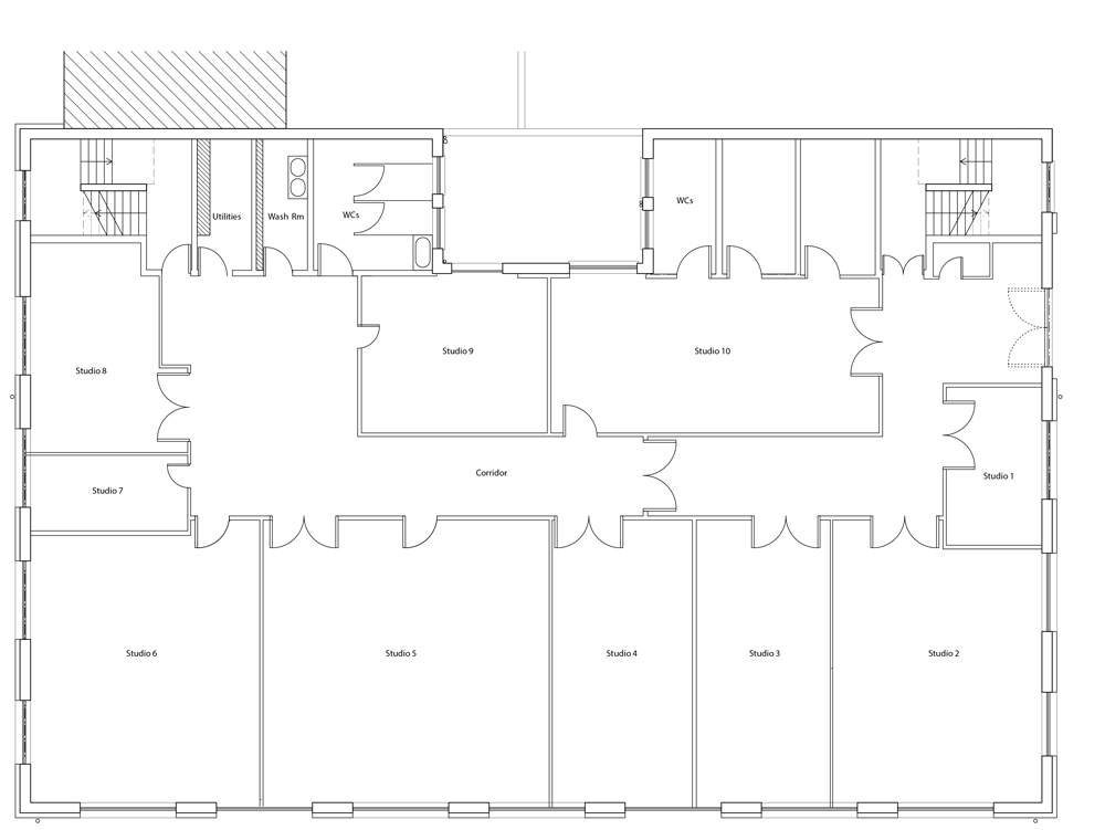
一楼平面图-点击以获取更大的图像
二楼平面图-点击以获取更大的图像
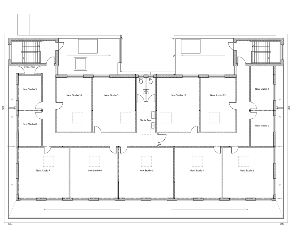
第三楼层平面图-点击更大的图像
横截面-点击以获得更大的图像
长段-点击获取更大的图像
客服
消息
收藏
下载
最近


















