查看完整案例


收藏

下载
霍莉谷仓是一座新的五卧室房子,建在诺福克街一个破旧谷仓的遗址上。新谷仓长27x6米,大小和体积与“旧”谷仓相似,但新结构可容纳两层楼。
这座建筑的细节是一个简单而光滑的封套,以给天际线留下清晰的轮廓。隐藏的排水沟使弯曲的屋檐融化在屋顶上。屋顶和墙壁上的天然木材木板,旨在与当地风车的传统建筑、船屋和Broad船的建造产生共鸣。
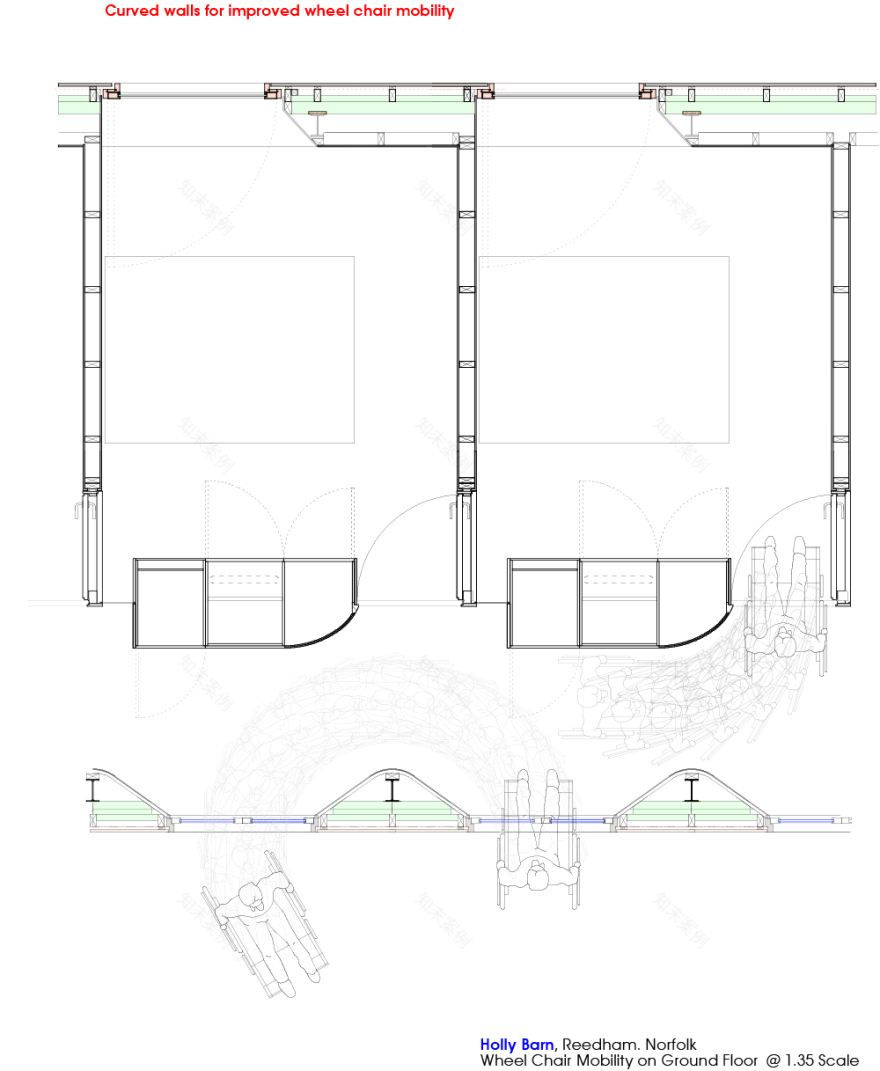
这所房子的内部规划经过精心设计,使坐轮椅的客人完全可以自由活动。宽阔的通道、门口和平台电梯使两层楼都能到达。有许多弯曲的墙壁和角落,这不仅给人带来乐趣,但重要的是,使轮式移动容易得多。扶手和“专业家具”已经整合在一起,并在可能的情况下被详细地纳入到各自的背景中。
底层是房子的家庭区域:四间卧室,一间游戏室和两间浴室。卧室被设计成小的“修道院”单元,每个单元都有不同的彩色衣柜。卧室的门保持在打开的位置(白天),并已仔细详细地消失在墙内的“口袋”,以使门的表面与石膏表面齐平。这意味着房间和走廊在白天变成一个空间。
卧室是从朝南的走廊进入的,墙上有一道波浪状的墙。墙的起伏提供了许多好处,它们在打开时显示出支撑着法国门,它们包含流动的空间,允许人们沿着路线舒适地通过,进入景观,最重要的是,它们允许方便轮椅的移动。强烈的自然阳光将衣柜的柔和色彩反射到波光粼粼的墙壁上。
在北立面上,窗户通常是小的,在这一层的墙上有小的穿刺孔。
与底层相比,一楼是一个非常开放,大,慷慨的体积。它有一个高的弯曲天花板,与屋顶的螺距,和长的全景窗两侧的墙壁。顶层被认为是一个单一的空间。在内部,一个干净的谷仓一样的体积已经被创造,与强大的所有包围光滑弯曲天花板表达,享受,并看到从一端到另一端。
一楼隔墙在屋檐高度及以上为玻璃隔音,使屋面的体积和视觉体验不受干扰。低矮的屋檐让人想起艺术
一层橡木地板沿着一楼南侧的主循环路线运行。沿着这条路走,感觉就像在船上散步一样。浴室的吊舱位于谷仓的东端,就像这个巨大的空间中的一个物体。在它的后面,三面的景色,东边的日出,是主卧室。
木材是主要的外部材料,墙壁被交替的宽、窄的落叶松板覆盖。全釉东方,西部山墙是由深百叶窗板。滑动的窗户和门是用Iroko木材制造的。屋顶的弯曲山脊上覆盖着一个立式的接缝覆盖层,它的颜色与风化的木材板非常接近。
霍莉·巴恩获得了著名的“年度最佳家庭奖”(RIBA Manser Medal)和其他众多奖项。
Firm Knox Bhavan Architects LLP
Type Residential › Private House
STATUS Built
YEAR 2006
keywords:architecture, architecture news, interiors, interior design, portfolio, spec, brands, marketplace, products Holly Barn
关键词:建筑,建筑新闻,室内设计,组合,规格,品牌,市场,产品霍莉谷仓
客服
消息
收藏
下载
最近




















