查看完整案例


收藏

下载
© Marcelo Donadussi
马塞洛·多纳杜西
架构师提供的文本描述。扩大海滨小镇香格里拉,RS,CASA 22的建筑参考资料,带来了几何学和透明度的结合的鲜亮的新鲜感,这是一种现代主义的建筑,它是以一个充满挑战的设计,以一个只支持两个立方体的300平方米的建筑来建造的。
Text description provided by the architects. Broadening the architectural references of the small seaside town of Shangri-la, RS, CASA22 brings the bright freshness of the union between geometry and transparency, built up from a Modernism that defies perspective, with blocks that distribute a 300sqm building in a challenging design that supports all volumes in only two cubes.
© Marcelo Donadussi
马塞洛·多纳杜西
一楼展示了一个单一的白色立方体,完全透明,为社交领域提供了互动空间和多功能性,并对一座巨大的顶层街区提供了亲切的支持,它类似于纯粹的混凝土,给楼上的卧室带来了隐私。在背面,石墙有助于支持体积和提供新鲜的工作。
The first floor presents a single white cube, completely translucent, providing interactive space and versatility to the social areas and giving gracious support to a massive top floor block that resembles pure concrete and brings privacy to the bedrooms upstairs. At the back of the back, a stone wall helps support the volume and offers freshness to the work.
为了确保这一结构,建筑师选择与倒置梁工作,押注于观察者的角度,创造轻盈和完美的配合主要卷,同时保持其不同的功能。
To ensure that structure, the architect chose to work with inverted beams, betting on the observer's perspective and creating lightness and perfect fitting with the main volumes, while preserving their different functions.
© Marcelo Donadussi
马塞洛·多纳杜西
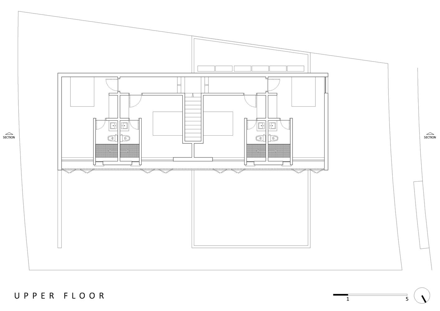
除了广阔的花园面积外,CASA 22还有两个起居区和两个单独的就餐区,一楼有完全一体化的选择,顶层有四间宽敞的套房。令人叹为观止的细节是顶层的纵向插槽和面向东方的百叶窗的墙面,给设计带来了轻盈,也为私人卧室的自然照明和优雅做出了贡献。
In addition to the extensive garden area, CASA22 has two living areas and two separate dining areas with a full integration option on the first floor and four spacious suites on the top floor. Stunning details are the longitudinal slot at the top floor block and the imense wall of louvers installed facing East, giving lightness to the design and contributing to the natural lighting and elegance of the private bedroom areas.
Ground Floor Plan
室内设计的明星是12座月桂木餐桌和美食家厨房,作为客厅的延伸,赋予了它崇高的魅力。
The stars of the interior design are the 12 sits laurel wood dining table and the gourmet kitchen installed as an extension of the living room, giving it a lofty charm.
© Marcelo Donadussi
马塞洛·多纳杜西
CASA 22属于一个大家庭,有7名成年人和3名儿童,目前不到3岁。因此,第一项要求是提供一个多用途的空间,以容纳单身成年人、周末朋友、怀孕夫妇和过度活跃的儿童以及爱好园艺、装饰和烹饪等爱好的老年人的各种活动。
CASA22 belongs to a large family with seven adults and three children, currently less than three year old. Therefor, first requirement was a versatile space to accomodate a variety of activities of single adults with friends over for the weekend, pregnant couples and overactive children and the elderly with hobbies like gardening, decor and cuisine.
© Marcelo Donadussi
马塞洛·多纳杜西
Architects Hola Arquitetura
Location Xangri-Lá, Brazil
Category Houses
Author Cristiano Hoffmann
Co-Author Mauricio Miranda
Area 300.0 sqm
Project Year 2014
Photographs Marcelo Donadussi
客服
消息
收藏
下载
最近






















