查看完整案例


收藏

下载
爱荷华州立大学的毕业设计学生已经建立了避难所的概念方案,为在阿富汗作战的美国士兵提供住所,并帮助他们获得安全感(幻灯片)。
学生赵永贤设想了一个通风的公寓和社交区域,有一个多面的天篷。
这些计划是由李·卡格利(LeeCagley)领导的一个名为“危险之路”的新工作室的一部分制作的。卡格利是该校室内设计系的教授和主席。
卡格利要求学生们在不久的将来为驻扎在阿富汗的士兵设想作战前哨或警察。提议的年份是2022。
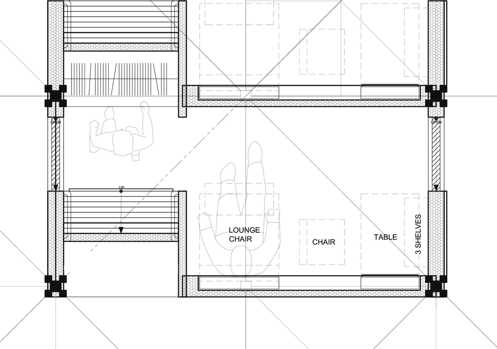
YongyeonCho设计的阁楼式卧室将采用木质装饰、柔软的调色板和高架床
卡格利在该校的网站上说:“自从看了一部关于创伤后应激障碍(PTSD)的电视节目以来,我一直在研究这个问题。”
“从伊拉克和阿富汗返回的士兵雄辩地讲述了这样一个事实:他们永远无法放松;前哨帐篷从来没有真正安全过。”
赵永贤设计了一个睡觉的地方,上面盖着高高的天篷。
卡格利补充说:“他们谈论的从根本上说是一个室内设计问题--战斗前哨的环境并没有在情感上支持军队,这让我感到震惊。”
战地前哨建筑匆忙,通常是由立即可用的材料组成的。有时士兵们会占用一座废弃的建筑,而不是建造一个新警察。
赵永贤还设计了三角形天窗,引入自然光。
学生们被要求设计能提供更大的身体和情感安慰的庇护所。
这些建筑需要包括住宿、餐饮、洗衣和医疗设施,整个建筑群需要容纳大约120名士兵。美国军事连通常由80至250名士兵组成。
张振如学生构想了一系列由减震钢筋混凝土制成的六角形结构。
卡格利说:“我们定居的地点是在阿富汗的德拉拉姆附近,在几条主干道和一条河床的交界处,从山区到最北面。”
学生的计划共有七项,在形式、布局和材料方面差异很大。
张振如的建筑群将包含一个地下禅宗中心,由六角形天窗照明。
学生甄汝张构思了一系列六角结构的减震钢筋混凝土。复合体将包含一个地下禅宗中心,有祈祷和冥想的空间。
卡格利说:“他的COP解决方案是最不容易携带的,但仍然很简单,而且依靠高度的弹道阻力,它在实际上和心理上都是最‘安全’的。”
地下禅宗中心将有一个祈祷和冥想的小礼拜堂。
学生赵永贤设想了一个通风的建筑,有一个宽敞的,多面的天篷。三角形的天窗可以带来自然的光,同时也能看到星空。
睡觉的地方将被高高的头顶上的大檐盖所覆盖。卧室将没有天花板,创造一个开放和通风的环境。阁楼风格的卧室还将以木材装饰、柔和的调色板和高架床为特色。
甄汝张的设计也提出了包括图书馆
卡格利说:“他的内部空间是统一在一个两层的单独住宅系列中,这些住宅便于携带,但有着小型公寓的永久感觉。”
学生乔希·基特设计了一座屋顶类似山区地形的建筑群。半透明的墙板将由氧化铝制成,并提供“一种开放感,同时能够很容易地抵挡来自0.50口径子弹的直接打击”。
学生约翰·坎波设计了一个复杂的屋顶,类似于山区地形
建筑物将围绕着一个长长的中央庭院组织起来,里面有运动和休息室设施。室内设计特色现代装饰,睡觉单位将包括墨菲床风格的床,折叠桌和小衣橱。
为了帮助了解他们的设计理念,学生们采访了大学预备役军官训练队(ROTC)的成员,这是一个联邦计划,训练大学生成为美国军官。
约翰·卡辛斯的室内设计以现代装饰为特色,睡觉的单元包括折叠桌和小壁橱。
他们还参观了附近的陆军基地Dodge营地,在那里他们研究了一个用于训练的战斗前哨。
这些学生还与退休的空军土木工程技师约瑟夫·帕斯昆蒂诺(JosephPasquantino)一起工作,他在服役期间帮助设计和建立了冲突地区的帐篷城市。
约翰·基特为他的COP提案设计了铝制墙板。
帕斯昆蒂诺告诉学校说:“任何被派遣的人都知道没有隐私,也没有逃避这份工作的机会。”“虽然军方努力提供休息和放松,但几天的时间真的没有帮助。”
这所学校希望获得美国国防部的资助,用于设计和建造几个全尺寸的原型。原型将于2017春季在道奇营建造。
赵永贤的场地规划
赵永贤的生活计划
赵永贤睡眠计划
赵永贤
张振润图
图为乔希·基特
客服
消息
收藏
下载
最近




















