查看完整案例


收藏

下载
简介:项目名称:海纳川 施宅 / 华丽的自然 Nature of beauty 设计师 :陈连武 项目地点:新北市 主要材料:木皮板、茶镜、艺术涂料、大理石 面积:375.5米平方 / 113.7坪 摄影师:游宏祥
项目名称:海纳川 施宅 / 华丽的自然 Nature of beauty
主要材料:木皮板、茶镜、艺术涂料、大理石
面积:375.5米平方 / 113.7坪
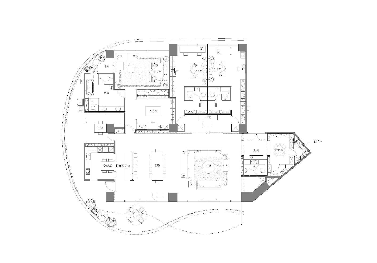
设计说明 Design Concept
从基地外的山河景观及弯曲的建筑形式来寻求与室内设计元素的连结:
本案坐落在淡水出海口的河畔,远眺观音山峦,近看红树林保育景观,加上特有弧状造型的建筑形体,给予室内设计很好的发想与启始,本案试图将室内空间与户外景致产生连结与呼应,开放式的公共空间配置,使两大落地窗的自然景观与天色一览无遗。
采用竹子在形态上特有的柔韧弯曲以及节理错落,作为本案天花板面与墙面的造型发展:
室内如竹子般弯曲延展的天花板造型与室外弧形建筑外观相互呼应,而竹子特有的节理变化亦成为本案墙面沟缝造型与门柜分割线条的隐喻与象征,此外,天花板中的竹节线条也将冷气设备维修口隐于其中。
作为一个款待宾客的度假大宅,试图在休闲的调性中表现出华丽的风范:
有别于ㄧ般休闲调性中所强调的平光质朴材质,本案采用抛光与打磨等细致手工工法,使原本粗糙表面材料呈现亮滑光泽质地,在竹节的造型中增添不同的奢华感受。各异其趣的家具与饰品,以统一的暖色调在明显的中轴配置下完成整合,带出具有随性雅痞风格的正式待客空间。
海纳川 施宅 / 华丽的自然 Nature of beauty;陈连武
客服
消息
收藏
下载
最近















