查看完整案例


收藏

下载
© Raphaël Chipault
(C)Rapha l Chipault
架构师提供的文本描述。在标志着地标的梅森教育公园(Maison d‘Education de la L’Honneur)的中心,与现在已填好的前运河保持一致的是,该项目的形式是将刺刀嫁接在山墙上,等待一座未完工的建筑。这种组合使每一翼都有可能与现场有一个特定的关系。从公园的角度看,东翼标志着建筑的存在,而西侧则转向外面的世界。
Text description provided by the architects. In the heart of the landmarked park of the Maison d’Education de la Légion d’Honneur, aligned with the former canal now filled in, the project takes the form of a bayonet grafted onto the gable awaiting an unfinished building. This composition makes it possible for each wing to have a particular relation with the site. The East wing signals the presence of the building in the perspective of the park while the West wing is turned toward the world outside.
© Raphaël Chipault
(C)Rapha l Chipault
© Raphaël Chipault
(C)Rapha l Chipault
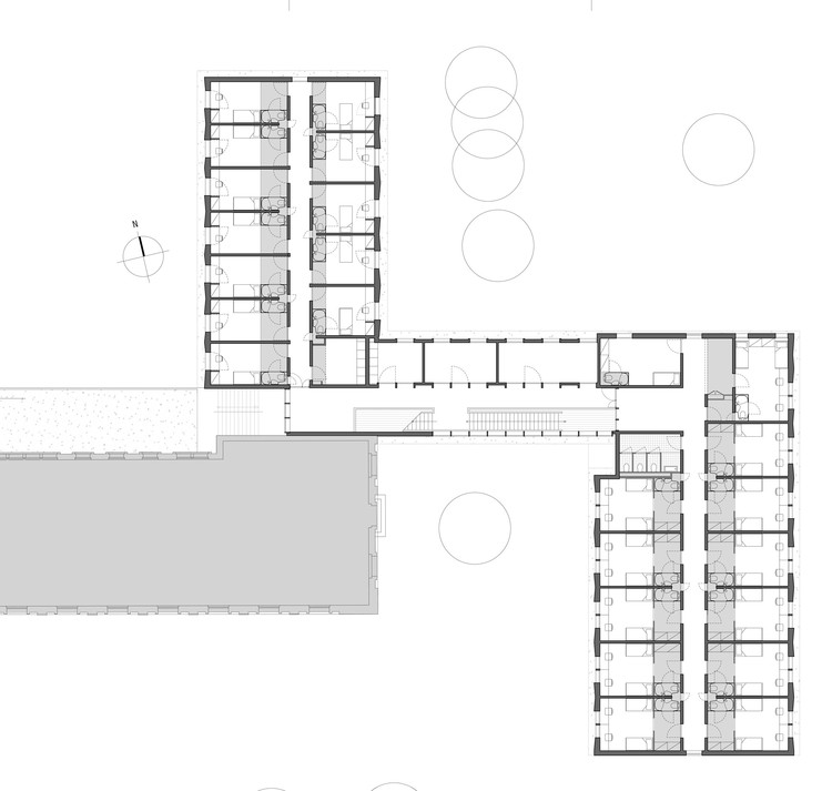
圣丹尼教堂位于圣丹尼斯的中心,是教堂大教堂的直接邻居,建于前修道院的遗址上的圣德尼教区(Maison d‘Education de la Lérea d’Honneur)。在此受保护的设置中,分配给操作的土地位于Cour Bayard上。它的景观构成的灌木丛与传统的处理公园的其他地方有很大的不同。有一座建于20世纪50年代的建筑,背靠着这座城市,站在很远的地方。然而,这中间是Croult河的南边,这条河现在已经被覆盖了,在夏季的几个月里,公园的公共入口也被淹没了。在这种情况下,网站布局显示了它组织成一个整体的不同的景观序列。作为一个建筑长廊,在公园的一个观景台,中央画廊包含垂直流通和共享服务。它通向机翼,每个房间都有独特的景色和东风或西风的方向。在前面的是教育中心,从一楼延伸,就像一种先进的哨所,在前运河的角度。
The Maison d’Education de la Légion d’Honneur, founded on the site of the former abbey is located at the center of Saint-Denis, direct neighbor of the cathedral basilica. In this protected setting, the land allocated to the operation is located on the Cour Bayard. Its landscape compose of undergrowth differs significantly from classic treatment of the rest of the park. There is a building dating from the 1950's with its back to the city and standing at a distance. However, this in-between is the southern edge of the Croult, a river now covered over and the public entrance to the park in the summer months. In this context, the site layout serves to reveal the different landscaped sequences that it organizes into a whole. Conceived as an architectural promenade in a belvedere over the park, the central gallery contains vertical circulations and shared services. It leads to the wings where each room enjoys a unique view and an easterly or westerly orientation. At the front end is the educational center extending from the ground floor like a sort of advanced post in the perspective of the former canal.
© Raphaël Chipault
(C)Rapha l Chipault
© Raphaël Chipault
(C)Rapha l Chipault
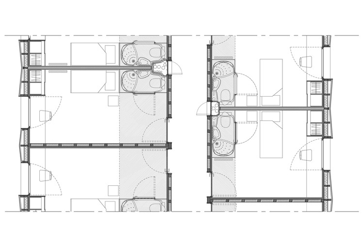
不寻求与罗伯特·德柯特、雅克·加布里埃尔、查尔斯·博尼姆和查尔斯·德沃伊之间的建筑不朽的建筑竞争,这里的木材的使用给整个建筑增添了一些温暖。通过提出由交替的空隙和固体组成的规则的韵韵,FaherAdes的组成重新解释了经典的代码。开口的尺寸与医务室建筑的尺寸相呼应,其设计与围墙另一侧的罗兰·西蒙特(RolandSimounet)所实施的尺寸相匹配。在任何标签程序之外,该项目被设想为在低碳工艺过程的框架内的实验。
Not seeking a rivalry with the monumental architecture of the buildings by Robert de Cotte, Jacques Gabriel, Charles Bonhomme and Charles De Wailly, here the use of wood adds a bit of warmth to the whole. The composition of the façades reinterprets classic codes by proposing a regular rhyme comprised of alternating voids and solids. The dimension of the openings echoes those of the infirmary building and their design is matched with those implemented by Roland Simounet on the other side of the enclosing wall. Outside any labeling program, the project is conceived as an experiment within the framework of low carbon process of construction.
© Raphaël Chipault
(C)Rapha l Chipault
© Raphaël Chipault
(C)Rapha l Chipault
Architects Belus & Hénocq Architectes
Location Saint-Denis, France
Category Dorms
Client Ordre national de la Légion d’honneur
Area 2065.0 m2
Project Year 2015
Photographs Raphaël Chipault
Manufacturers Loading...
客服
消息
收藏
下载
最近

























