查看完整案例


收藏

下载
© Jack Hobhouse
杰克·霍伯斯
由于该幅位于自然保育区边缘并被物业包围的土地的敏感性质,规划过程被拖长,规划署坚持采用斜屋盖(以配合先前批出的申请),以及有关俯瞰的各种条件。虽然最初表现为限制约束,但通过在设计过程中向上推这些参数,该方案显示自己是一个复杂的,有特征的空间序列。
The planning process was protracted due to the sensitive nature of the site on the edge of a conservation area and being surrounded by properties. The planning department insisted on the pitched roof envelope (to match a previously granted application) and various conditions with regards to overlooking. While initially presented themselves as limiting constraints, by pushing up against these parameters during the design process the scheme presents itself as a complexly wrought, characterful sequence of spaces.
Ground Floor Plan
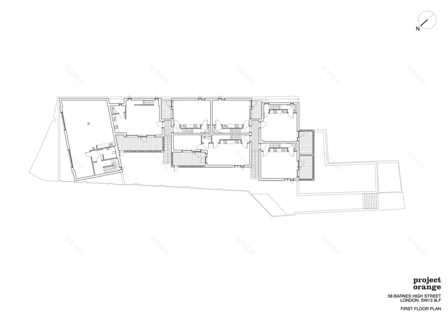
主要的设计理念是有一个连接场地长度的通道庭院,允许底层进入商业单位公共区域供居民使用。两块街区之间的外部楼梯提供了从庭院到上述住宅单元的通道,强调了该方案的“车间”特性。复式公寓的布置带有居住空间。下面的地板、卧室和浴室都塞进了倾斜的天花板上一层。
The main design concept is the notion of an access courtyard running the length of the site allowing ground floor access to the commercial units communal areas for residents use. Two external stairs tucked between the blocks provide access from the courtyard to the residential units above emphasising the ‘workshop’ character of the scheme. The duplex apartments are arranged with the living space on the lower floor and bedroom and bathroom tucked into the sloped ceiling upper floor.
© Jack Hobhouse
杰克·霍伯斯
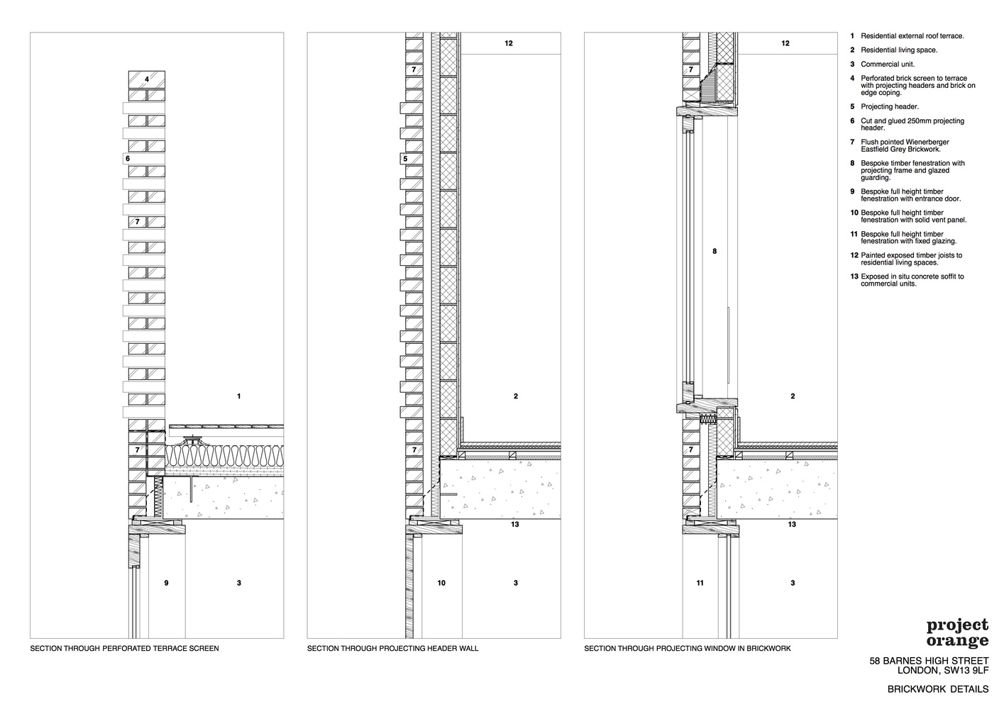
该方案的大部分是灰砖,有平底灰泥缝,与当地库存砖相呼应,反映了当地的工业历史。详细说明-冲灰缝、凹槽板-是现代和定制的木材开窗,外部漆成深绿色,提供了一个视觉上的对立面。这种传统感也体现在底层商业单元的大窗口大会、金属格栅栏杆上,并延续到商业单位暴露了混凝土防腐剂、抛光混凝土地板和油漆砖墙的内部。住宅单元的材料调色板包括浅灰墙,细木工在主要的生活空间中用明亮的白色和暴露的油漆木栅挑选出来。这突出了奢华的闪光;大理石表面在厨房和浴室与道格拉斯冷杉地板始终。
The majority of the scheme is grey brick with flush mortar joints which is sympathetic to the local stock brick referencing the site’s industrial past. The detailing – flush mortar joints, recessed bargeboards – is contemporary and bespoke timber fenestration, painted dark green externally, provides a visual counterpoint. This sense of heritage is also apparent in the large window assemblies to the commercial units on the ground floor, metal grating balustrades, and continues with the interiors where the commercial units have exposed concrete soffits, polished concrete floors and painted brickwork walls. The material palette for the residential units includes pale grey walls, joinery picked out in bright white and exposed painted timber joists in the main living spaces. This accentuates the flashes of luxury; marble surfaces in the kitchens and bathrooms with douglas fir flooring throughout.
© Jack Hobhouse
杰克·霍伯斯
Construction
由于用地极为有限,发展工程所需的所有物料均须由人手运送,因此设计了一种混凝土板及柱,供地面及一楼之用,住宅上层为砖,并有木料龙骨及木料钉砌,并在可能的情况下,故意将这些材料外露,使这种综合结构更能增加计划的特色。
Due to extremely limited site access, all materials for the development had to be carried in by hand. This led to designing a concrete slab and columns for the ground and first floors with the residential upper floors being brick and blockwork with timber joists and studwork. Deliberately the materials are exposed where possible allowing this composite construction to add to the character of the scheme.
Long Section
长剖面
Sustainability
该项目纳入了可持续的设计特点,包括一个绿色的平顶、与倾斜屋顶齐平的光伏电池、公寓内的机械通风热回收装置和一个集中的气体加热系统。
Sustainable design features were integrated into the project including a green flat roof, photovoltaic cells flush with the pitched roofs, mechanical ventilation heat recovery units in the flats and a centralised gas heating system.
© Jack Hobhouse
杰克·霍伯斯
该客户是总部位于伦敦西南部的房地产开发商马斯顿地产(Marston Properties),在物业管理方面经验丰富,他们热衷于保留所有单元供出租。他们相信,应该制定一项计划,为当地地区提供一些新的东西,同时成为城市结构的一部分,并成为他们投资组合的旗舰项目。
The client, southwest London-based property developers Marston Properties, are experienced in property management and were keen to retain all the units for rental. They believed in developing a scheme which would provide something new for the local area whilst becoming part of the urban fabric and be a flagship project for their portfolio.
© Jack Hobhouse
杰克·霍伯斯
© Jack Hobhouse
杰克·霍伯斯
Information
5套单人床复式公寓面积在57平方米至66平方米之间,两床公寓内部面积分别为80平方米和85平方米。商业单位的大小在37平方米到93平方米之间,为企业提供了多种租赁选择。场地面积800平方米。
The 5 one-bed duplex apartments are between 57sqm and 66sqm with the two-bed apartments 80sqm and 85sqm internal areas. The commercial units are sized between 37sqm and 93sqm offering a variety of rental options for businesses. The site area is 800sqm.
© Jack Hobhouse
杰克·霍伯斯
Architects Project Orange
Location United Kingdom, Barnes High St, London SW13, UK
Category Housing
Area 800.0 m2
Project Year 2016
Photographs Jack Hobhouse
Manufacturers Loading...
客服
消息
收藏
下载
最近


















