查看完整案例


收藏

下载
Courtesy of TA.R.I Architects
由TA.R.提供。我是建筑师
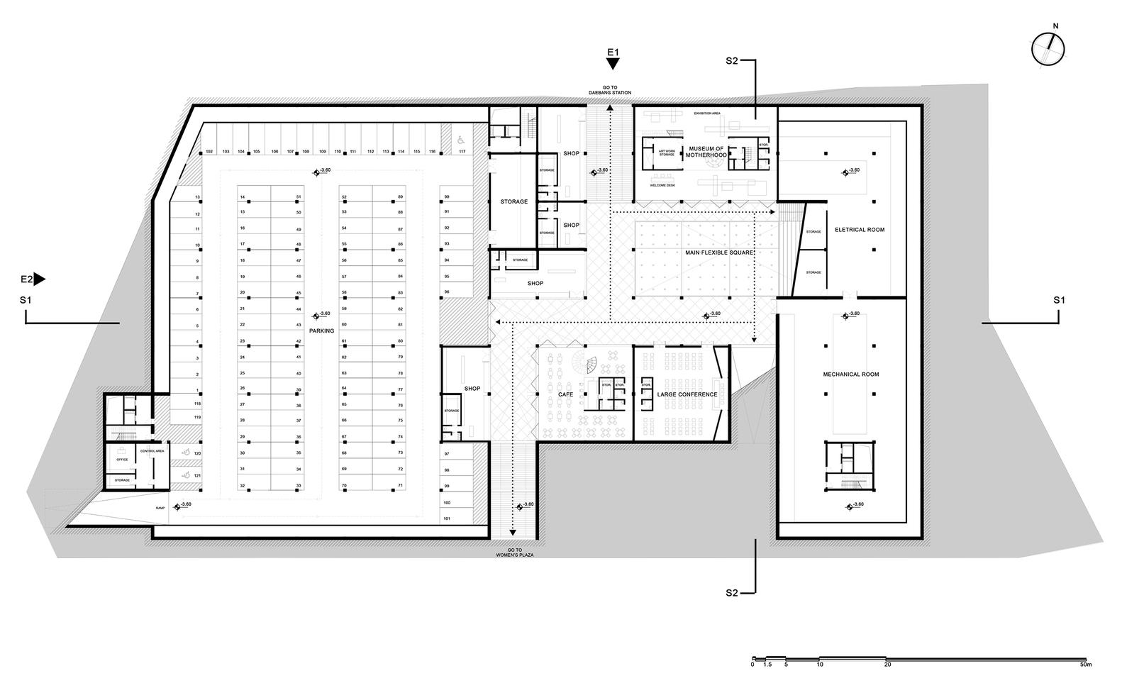
这一设计的结果是仔细分析了首尔的织物聚落,以及该地区与城市环境之间正在进行的对话。这位建筑师在一份新闻稿中说,它将成为这座城市的一部分,而不是一个单独的看台,在公共空间里可以实现社会化,增强关系网络,欢迎弱势的小社会群体。
The design results from a careful analysis of Seoul fabric settlement, and of the ongoing dialogue between the area and the urban context. It would become a piece of the city, not a single stand building, where socialization would be possible in the public spaces, enhancing relational network, and welcoming the vulnerable minor social groups said the architect in a press release.
Courtesy of TA.R.I Architects
由TA.R.提供。我是建筑师
Courtesy of TA.R.I Architects
由TA.R.提供。我是建筑师
Courtesy of TA.R.I Architects
由TA.R.提供。我是建筑师
该设计寻求被视为“一个新的城市和社会意识的起点”,一种充满激情、情感和创造力的方式。
The design seeks to be seen as “the starting point of a new urban and social consciousness,” and a way to fill the community with passion, emotion, and creativity.
Courtesy of TA.R.I Architects
由TA.R.提供。我是建筑师
建筑师TA.R.建筑师位置韩国汉城项目组,克劳迪娅·里恰迪建筑面积20900.0平方米2016年项目年
Architects TA.R.I Architects Location Seoul, South Korea Project Team Marco Tanzilli, Claudia Ricciardi Area 20900.0 sqm Project Year 2016
我是建筑师。
News via TA.R.I Architects.
客服
消息
收藏
下载
最近













