查看完整案例


收藏

下载
建筑师:Robert M.Gurney地点:美国马里兰州格伦回声:2015年照片提供:Hoachlander Davis摄影描述:
Mohican Hills是马里兰州格伦回声的一个小社区,离华盛顿特区很近。这一社区拥有一个异乎寻常的高比例的当代和中叶现代房屋相对于华盛顿特区郊区的大多数社区。这个社区毗邻波托马克河。许多地块地形陡峭,有着相同的河流景观。
这所新房子,在莫西干山,就在这样一个地段。这座房子坐落在山坡上的山脊上,面向远处的河流景观。沿着山脊排列并对现有空地开放的空间的线性组合,提供了一个大草坪和最小的场地侵入,并保存了绝大多数成熟的树木。
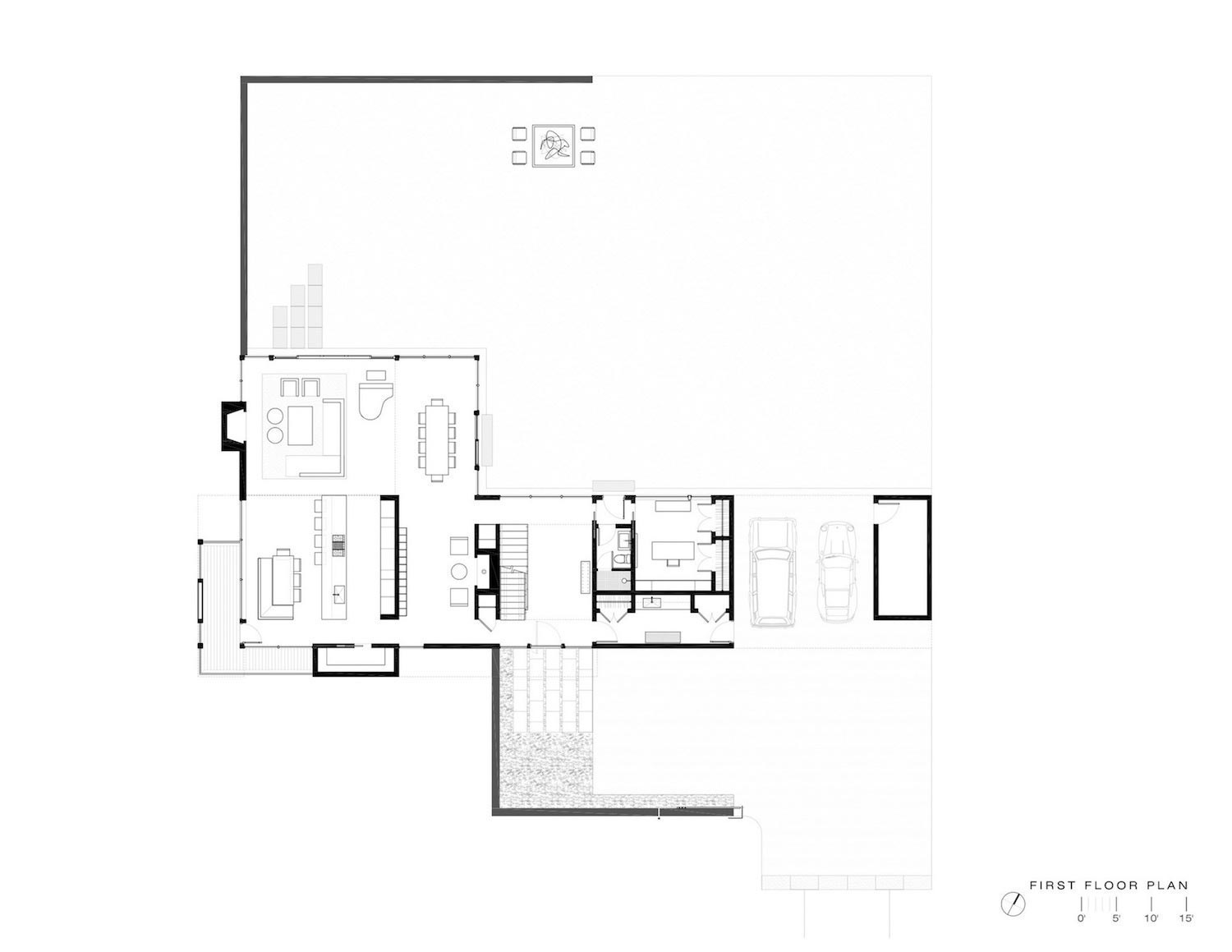
房子是围绕一个两层的生活空间组织的一个开放的平面图,它集成了一个高天花板的空间与毗邻双高度空间亲密的空间。一楼的小办公室与居住空间隔开,可以换乘第五间卧室。一个三层的进入量将主卧室区域与附属卧室分隔开来。
广袤的玻璃向远处的河流提供了树木茂密的景色,并使房子充满了光明。一个组合相交的空间,确保光渗透的所有时间的一天和所有的时间一年。
这所房子在整个主地板上使用了一个混凝土板,提供被动太阳能援助。混凝土被染成暗色,目的是增加潜在的太阳能增益和储存。扩展的能源之星玻璃提供充足的采光,而太阳能敏感的阴影调节热量的增加。
采用节能设备,高效暖通空调设备,墙壁和天花板基础设施,最大隔热和通风建筑围护结构,以减少化石燃料消耗的预期。大的可操作的窗户和门位于提供自然通风和直接进入户外。
热改性木壁板是一种替代外来或昂贵的硬木。这种木材是经过森林管理和处理的,无毒耐用.
谢谢你阅读这篇文章!
keywords:Glen Echo Maryland Robert M. Gurney USA
关键词:格伦回声马里兰罗伯特M Gurne美国
客服
消息
收藏
下载
最近
































