查看完整案例


收藏

下载
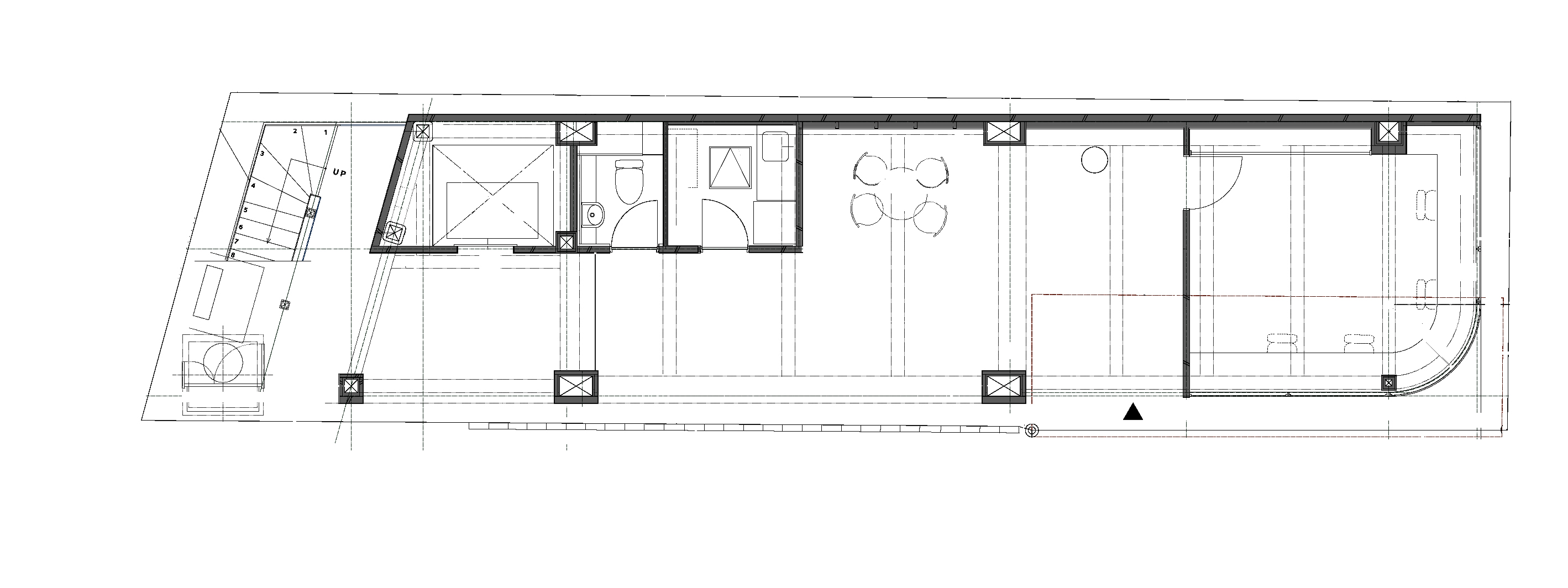
位于东京市中心的KBP大楼设有专门从事活动制作的办公室。这座建筑耸立在一座寺庙和树丛后面,白色的会议室紧跟在红色的写字楼后面。灯光、镜框和玻璃图案的组合给建筑以视觉深度,而这在现实中是非常狭窄的。
Firm Ciel Rouge Creation
Type Commercial › Office
STATUS Built
YEAR 2007
SIZE 0 sqft - 1000 sqft
BUDGET $500K - 1M
关键词:建筑,建筑新闻,室内设计,组合,规格,品牌,市场,产品KBP办公白色
客服
消息
收藏
下载
最近









