查看完整案例


收藏

下载
建筑师提供的文字说明。这不是秘密。伊斯坦布尔城市大都市的混凝土结构。在过去的十年里,伊斯坦布尔一直是一个不断扩大的建筑工地。这个所谓的“混凝土丛林中”的兴起描述了一个快速变化的时间。然而,在这些时代,我们的核心工作室理念仍然是一样的。Erginn体系结构长期以来在它的中心拥有艺术与公用事业之间的平衡。"练习。MermerlerPlaza是这样一个目标的证明。
Text description provided by the architects. It is no secret. Concrete structures sprawl Istanbul’s urban metropolis. For the past decade Istanbul has been an ever expanding construction site. The rise of this so called “concrete jungle” depicts a time of rapid change. Yet during these times, our core studio philosophy has remained the same. Ergün Architecture has long posited a balance between art and utility at the very centre of its’ practice. Mermerler Plaza is a testament to such an objective.
© Cemal Emden
Cemal Emden
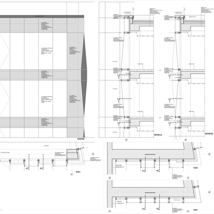
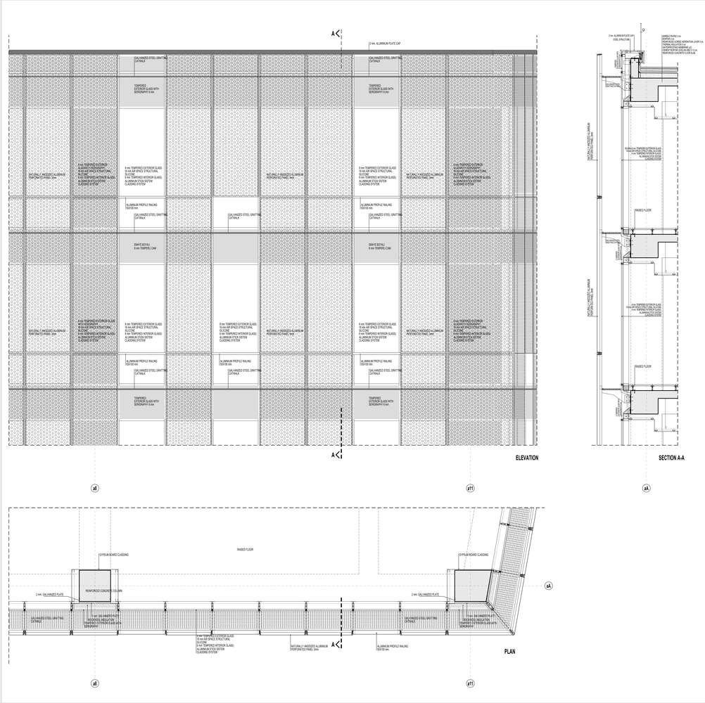
这对父子二人的建筑位于伊斯坦布尔的Kozyatağı区.高高的波浪状的玻璃墙提供了一个有趣的对比,它的较短的铝包络的对应。为了保护从太阳向南的外观,该设计采用了由穿孔铝片制成的随机晒黑防晒剂。
This parent-child building duo is located in the Kozyatağı district of Istanbul. The tall wavy glass walls provide a playful contrast to its shorter aluminium enveloped counterpart. In order to preserve the southward looking façade from the sun, the design incorporates randomised tan colored sun blockers made from perforated aluminium sheets.
© Cemal Emden
Cemal Emden
背面法石是由浅灰色的预铸石制成的,它提供了对比但平衡的外观来对付它的邻近的法方。
The back façade is made of light grey pre-cast stone which provides a contrasting but balanced look against its neighbouring façades.
© Cemal Emden
Cemal Emden
© Cemal Emden
Cemal Emden
独立的楼层阳台被设计成一个绿色的空间,可以展示各种植物和鲜花,但更重要的是为员工提供一个令人愉快、开放的社交空间。
The individual floor balconies were designed as a green space that could showcase a variety of plants and flowers, but more importantly provide a pleasant, open-air socialising space for employees.
© Cemal Emden
Cemal Emden
LEED黄金认证建筑位于一条主要的高速公路(称为E-5)和几条重要的公路之间,这些公路连接着城市所有路段的总统府。Mermerler广场不仅提供办公大楼,而且其功能扩展到广大公众。
The LEED Gold certified buildings sit between a major highway (called E-5) and several important roads that connect Istanbulites from all stretches of the city. Mermerler Plaza not only stands to provide office buildings, but its’ function extends to the public at large.
宽敞的两层建筑为行人提供了方便的公共通道.过境的行人现在可以步行从高速公路连接到多条主要道路。这个公共接入点对于在Kozyatağı建立一个互联的交通系统至关重要。因此,该双功能广场强制规定了一个精心设计的夜间照明方案,以确保公共安全。(鼓掌)
The spacious, two-building structure provides a convenient public passage for pedestrians. Pedestrians in transit can now connect from the highway to a number of main roads by foot. This public access point was essential to creating an interconnected transit system in Kozyatağı. Accordingly, the dual functioning plaza mandated a well contrived night-time lighting scheme that ensures public safety.
© Cemal Emden
Cemal Emden
梅默勒广场晚上很美。夜晚的灯光给人一种白天的感觉.蓝色的波浪是由冷的隐藏的灯光集中在三角形的形状。穿孔的网状墙被墙上的清洗机照明,产生一种迷人的柔和的温暖的辉光,包裹在两座建筑的外墙周围。
Mermerler Plaza is beautiful at night. The night-time lighting gives a day-time feeling. Blue waves are emphasised by cool hidden lights that pool in triangled shapes. Perforated mesh walls are illuminated with wall washer lighting producing a captivating soft warm glow that wraps around both buildings façades.
© Cemal Emden
Cemal Emden
室内建筑以现代几何设计著称,经常模仿建筑外部的相同图案。内饰主要由三角形的波浪组成,这些波浪是由暗灯和铝制穿孔板强调的,用来遮挡入口处的天花板。大理石地板和玻璃墙之间的对比,使建筑物能够呼吸,而不会变成一个孔。一个棱角滑下走廊,进入洗手间,照明装置,会议室,从前门厅回来,提醒我们,建筑内部就像波浪包围的外部一样流动。
The interior architecture boasts modern geometrical designs, often mimicking the same motifs from the building’s exterior. The interior finishes as such consist primarily of triangle shaped waves that are emphasised by hidden lights and aluminium perforated sheets used to drape the entrance ceiling. Contrast between the marble flooring and the glass walls enable the building to breathe without becoming a bore. An angularity ricochets down hallways, into restrooms, lighting fixtures, meeting rooms, and right back out the front foyer reminding us that the buildings interior run just as fluid at it’s wave encrusted exterior.
© Cemal Emden
Cemal Emden
Architects Ergün Architecture
Location İçerenköy, Kozyatağı, Topçu İbrahim Sk., 34752 Ataşehir/İstanbul, Turkey
Category Office Buildings
Area 32000.0 sqm
Project Year 2015
Photographs Cemal Emden
Manufacturers Loading...
客服
消息
收藏
下载
最近







































