查看完整案例


收藏

下载
© Iwan Baan
(三)iwanBaan
架构师提供的文本描述。一个世界贸易中心是一个大胆的图标,它点缀着倒塌的塔楼留下的天际线空隙。毗邻的世界贸易中心纪念馆讲述的是过去和记忆,而一个世界贸易中心则谈到未来和希望,因为它以一种多面的形式向上上升。取决于观众的视角和角度,一个世界贸易中心的形状似乎从一个柏拉图式的固体让人联想起原来的双子塔,变成了一个方尖碑,让人想起了华盛顿纪念碑。
Text description provided by the architects. One World Trade Center is a bold icon lling the skyline void left by the fallen towers. While the adjacent World Trade Center Memorial speaks of the past and of remembrance, One World Trade Center speaks about the future and hope as it rises upward in a faceted form. Depending on the viewer’s perspective and angle of light, One World Trade Center appears to shape-shift from a platonic solid reminiscent of the original twin towers to an obelisk recalling the Washington Monument.
© Iwan Baan
(三)iwanBaan
一个世界贸易中心无缝地进入世贸中心遗址的西北角,位于哈德逊河在曼哈顿开发了几个世纪的土地上。该遗址位于河东几个街区,位于金融区的中心,最终将容纳超过1000万平方英尺的商业开发项目,包括Ve大厦、表演艺术中心、500,000平方英尺的零售中心、交通枢纽,以及国家9·11纪念中心。
One World Trade Center ts seamlessly into the northwest corner of the World Trade Center site, on land claimed from the Hudson River over centuries of development in Manhattan. The site, several blocks east of the river and in the heart of the nancial district, will ultimately house more than ten million square feet of commercial development in ve towers, a performing arts center, 500,000 square feet of retail, a transportation hub, and, at its center, the National September 11 Memorial & Museum.
Courtesy of James Ewing
詹姆斯·尤因
© Iwan Baan
(三)iwanBaan
总体规划修复了富尔顿街和格林威治街,这些街道曾被世贸大厦广场和世界贸易中心7号大楼所封锁,为这一地区注入了新的活力。新的7世界贸易中心于2006年开放,重新开放了格林威治街,减轻了商业负担,并向每年约有100万游客参观纪念馆和博物馆发出了无障碍信息。2013年,第二座位于格林威治街的世贸中心(4 World Trade Center)落成,标志着朝着完成螺旋式发展总体规划迈出了重要一步,每座新塔楼都会越来越高,最高的是标志性的1776英尺(约合1776米)世界贸易中心(One World Trade Center)。
The master plan restores Fulton and Greenwich Streets, formerly blocked by the World Trade Tower plaza and the original 7 World Trade Center building, breathing new vitality into the area. The new 7 World Trade Center, which opened in 2006, reopens Greenwich Street, easing the ow of commerce and sending a message of accessibility to the approximately ve million annual visitors to the memorial and museum. The 2013 opening of 4 World Trade Center, the second tower to rise on Greenwich Street, signaled an important step towards completing the spiraling master plan, wherein each new tower stands progressively taller, culminating in the symbolic 1,776-foot One World Trade Center.
Courtesy of James Ewing
詹姆斯·尤因
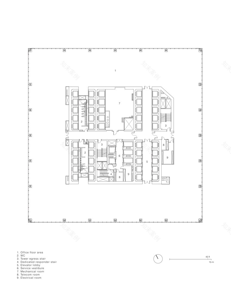
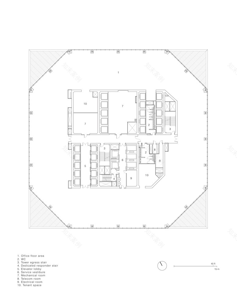
这座塔是从一个平台上升起的,其方形平面约为204英尺乘204英尺,与原塔楼的脚印相同。领奖台高186英尺,覆盖着三层低铁质玻璃和水平的、浮雕的不锈钢板条。超过4,000玻璃ns,每个约13英尺乘2英尺,是按不同的角度沿垂直轴定位,形成一个规则的模式之上的平台的高度。这种模式既适应了平台墙后面的机械水平的通风,又与一层有效的涂层结合,折射和透射光,形成一个动态的、闪闪发光的表面。讲台上的钢筋混凝土墙是一个伪装得很好的安全屏障。
The tower rises from a podium whose square plan measures approximately 204 feet by 204 feet, the same footprints as the original towers. The podium is 186 feet tall and is clad in triple-laminated, low-iron glass ns and horizontal, embossed stainless steel slats. The more than 4,000 glass ns, each measuring approximately 13 feet by two feet, are xed and positioned at varying angles along the vertical axis to form a regular pattern over the height of the podium. This pattern both accommodates ventilation for the mechanical levels behind the podium wall and, in combination with a re ective coating, refracts and transmits light to create a dynamic, shimmering surface. The podium’s heavily reinforced concrete walls serve as a well-disguised security barrier.
Courtesy of James Ewing
詹姆斯·尤因
Courtesy of James Ewing
詹姆斯·尤因
Courtesy of James Ewing
詹姆斯·尤因
在讲台上方,塔的正方形边缘被倒角,将广场转变为八个高等腰三角形。在它的中间,塔形成一个平面图的等边八角形,最后是一个不锈钢护栏,其平面是150英尺乘150平方英尺,从底座旋转45度。由此产生的水晶形态捕捉到了折射光的不断演化的显示:随着光线和天气条件的变化,以及观众在塔周围移动,表面在全天发生变化。对塔角的设计也进行了仔细的思考。由浮雕不锈钢制成,八边回忆起原来双子塔的有效角。
Above the podium, the tower’s square edges are chamfered back, transforming the square into eight tall isosceles triangles. At its middle, the tower forms an equilateral octagon in plan and then culminates in a stainless steel parapet whose plan is a 150-foot by 150-foot square, rotated 45 degrees from the base. The resulting crystalline form captures an ever- evolving display of refracted light: the surfaces change throughout the day as light and weather conditions shift and as the viewer moves around the tower. Careful thought was also given to the design of the tower’s corners. Made of embossed stainless steel, the eight edges recall the re ective corners of the original twin towers.
Courtesy of James Ewing
詹姆斯·尤因
一个世界贸易中心的特点是一个混合结构,由一个高强度混凝土核心包围一个周边弯矩钢框架。钢框架与核心的大体积混凝土剪力墙配合使用,增加了结构的刚度和冗余度。螺栓和焊接在一起,以获得最大的连接强度,钢成员是由两个马尼托维奇吊车,这是有史以来使用的纽约市最大的位置。塔的锥形,空气动力学形式减少暴露在风荷载,同时减少了需要的结构钢的数量。这座塔升到天空四分之一英里处,用玻璃遮住了它的力量。
One World Trade Center features a hybrid structure comprised of a high-strength concrete core surrounded by a perimeter moment frame of steel. Paired with the massive concrete shear walls of the core, the steel frame adds rigidity and structural redundancy. Both bolted and welded together for maximum connection strength, the steel members were hoisted into place by two Manitowoc cranes – the largest ever used in New York City. The tower’s tapered, aerodynamic form reduces exposure to wind loads while simultaneously reducing the amount of structural steel needed. Rising a quarter mile into the sky, the tower is brute strength veiled in glass.
Courtesy of James Ewing
詹姆斯·尤因
Courtesy of James Ewing
詹姆斯·尤因
SOM在纽约建成的一个世界贸易中心的图片
Images of SOM's Completed One World Trade Center in New York
Architects SOM
Location 1 World Trade Center, New York, NY 10006, United States
Category Office Buildings
Design Partner David M. Childs
Area 3500000.0 ft2
Project Year 2015
Photographs Iwan Baan
Manufacturers Loading...
客服
消息
收藏
下载
最近














































