查看完整案例


收藏

下载
© Leonas Garbacauskas
(Leonas Garbacauskas)
架构师提供的文本描述。莱尼娅-一个办公室和陈列室的独家质量和室内装饰材料。
Text description provided by the architects. LINEA – an office and the showroom for exclusive quality and interior decoration materials.
© Leonas Garbacauskas
(Leonas Garbacauskas)
这座建筑位于历史悠久的兹韦雷纳斯区,这是以前的避暑胜地,最近也是维尔纽斯老城的一部分。丰富的老木屋和天然植被,被认为是保存最具历史意义的小规模的城市家园之一。这已成为主要挑战
The building is located in the historic district Zverynas, the former summer resort and recently part of an old town of Vilnius. Rich with old wooden houses and natural vegetation it is considered one of the most preserved historic small scale homesteads of the city. This is what has become the main challenge – to face the strict architectural and urban protection requirements, by the same time to create a contemporary, memorable, open and inviting object for the public use.
© Leonas Garbacauskas
(Leonas Garbacauskas)
建筑物的结构响应于周围的小城市规模。该组合物由相互交叉的两个较小体积组成。稍微不规则的体积反映了打印的形状以及产生自然移动的感觉。这就是邻近建筑-混乱的、不规则的、旧的木制和砖结构。为了集成到Zero的小型城市建筑规模中,该体积是复杂的,而且轮廓解释了山墙宅邸的类型。狭窄的立面朝向主街。
The structure of the building responds to the surrounding small urban scale. The composition consists of two smaller volumes that cross and overpass each other. Slightly irregular volumes reflect the shape of the plot as well as create the sense of a natural move. This is what comes from the neighboring buildings - chaotic, irregular, old wooden and brick structures. With an intention to integrate into the small urban building scale of Zverynas the volume is complex as well as the silhouette interprets the gable homestead house typology. The narrow facades are orientated towards the main street.
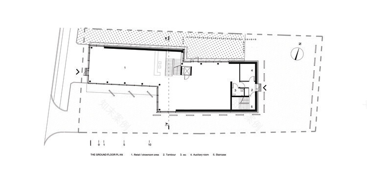
Floor Plan
美学表达的主要理念是受城市环境和公司名称“Lineia”(Lat)的启发。-其中一个意思是“这一行”)。卷的构成是受小而多变的邻接性的启发,而外在的表现和实质则反映了公司本身的活动和诠释。陶瓷板是一种单独的矩形陶瓷元件,用于正面的修整。百叶窗和单独的体积陶瓷条纹在玻璃窗前创造优雅,轻盈和开放的感觉。动态外观线图形是通过不透明的表面与各种单一陶瓷条交错。除了美学功能外,水平百叶窗还能保护房屋免受过热。阴影图形成为内部不可或缺的一部分。目的是达到一种完整的感觉-因此,陶瓷墙整理也不断覆盖屋顶斜坡。塑料屋顶脊的细节强调了连续性和完整性的概念卷。
The main idea for the aesthetic expression was inspired by the urban environment and the company's name “Linea”(Lat. - one of the meanings is"the line"). The composition of the volumes is inspired by he small, variable character of adjacency, whereas the external expression and materiality reflects the activities and interpretation of the company itself. Ceramic plates are individual rectangular ceramic elements are used for the facade finishing. Blinds as well as separate volumetric ceramic stripes in front of the glass windows create gracefulness, lightness and the sense of openness. The dynamic facade line graphics is perceived by opaque surfaces interlacing with a variety of single ceramic strips. In addition to the aesthetic function the horizontal blinds protect the premises from overheating. The shadow graphics become an integral part of the interior. The goal was to achieve a sense of integrity - therefore, the ceramic wall finishing also continuously covers the roof slopes. The plastic roof ridge detail underlines the idea of continuity and integrity of the volumes.
© Leonas Garbacauskas
(Leonas Garbacauskas)
紧凑型建筑结构由三层组成。第一层和第二层作为展览空间。三楼是办公室的遮蔽处。楼梯和电梯确保进入二楼的商业空间。
The compact building structure consists of the three floors. The first and the second floors serve as the exposition space. The third floor shelters the office space. The stairs as well as elevator ensures the accessibility to the commercial spaces on the second floor.
对室内设计的一个想法是最大限度地取消过度装饰。保持开放,浮动的室内空间是一个明确的销售理念-展示和代表室内和整理材料。暴露的混凝土表面,表观管道系统和显示的闪电成为次要的背景元素。(室内设计与室内设计工作室一起提出-“柏拉图”)。
An idea for the interior was a maximum withdrawal of excess decorating. Leaving open, floating interior spaces was with a clear idea for sales - to exhibit and represent the interior and finishing materials. Exposed concrete surfaces, apparent duct systems and exhibited lightning become secondary background elements. (Interior design proposed together with the interior design studio - "Plazma").
© Leonas Garbacauskas
(Leonas Garbacauskas)
这片土地上铺满了瓦砾,铺满了开放式的混凝土衬垫。它成为一个舒适的方式,排水和收集雨水。作为与宅基地环境的界面,提出的是草坪和绿色植物。强调建筑的开放性、便捷性和公共性。
The plot is paved with openwork concrete pads filled with rubble. It becomes a comfortable way to drain the surfaces and collect the rain water. As an interface with the homestead surroundings proposed is the lawn and the greenery. Emphasized is the openness, easy accessibility and the public nature of the building.
© Leonas Garbacauskas
(Leonas Garbacauskas)
Architects Arches
Location Vilnius, Lithuania
Category Showroom
Area 660.38 sqm
Project Year 2015
Photographs Leonas Garbacauskas
Manufacturers Loading...
客服
消息
收藏
下载
最近
















