查看完整案例


收藏

下载
© Antonio Visceglia
c.Antonio Visceglia
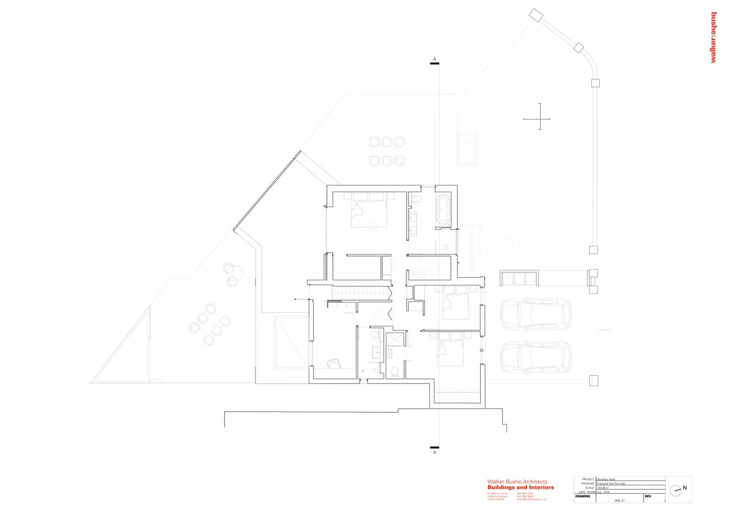
建筑师提供的文字说明。在伦敦北部的Bronesbury,一个毗邻的场地取得了一个新的延伸,该房屋最初是在地面楼层稳定的。这使得原始卷的加倍和转换成为两个居住者的令人叹为观止的当代家。
Text description provided by the architects. Acquisition of an adjoining site made possible a new extension to an existing Victorian period house in Brondesbury, North London, which had stabling at ground floor level originally. This enabled a doubling of the original volume and transformation into a stunning contemporary home for the two occupants.
© Antonio Visceglia
c.Antonio Visceglia
这座建筑占据了一个角落的地块,对现有的房子和露台街道起到了“书签”的作用。单斜板岩屋顶与现有的砖房是由一个深灰色渲染的面板分开,这也使新组合的建筑物的两个部分的新入口脱离。一个木条屏幕到前面的玻璃提供额外的隐私。威尔士板岩屋顶完成后,沿着侧面立面,创造了一个统一和谨慎的正面街道。
The building occupies a corner plot and acts a ‘bookend’ to the existing house and terraced street. The mono-pitched slate roof is separated from the existing brick house by a dark grey rendered panel which also demarks the new entrance to both parts of the newly combined buildings. A timber slatted screen to the front glazing provides extra privacy. The Welsh slate roof finish is taken down the side elevation creating a unified and discreet facade to the street.
© Antonio Visceglia
c.Antonio Visceglia
新的翼提供宽敞的开放式计划,居住/就餐和厨房在一楼,通过全高度的玻璃滑动门,以石灰石铺砌的梯田地区的后方。宽木板橡木地板与地板的地板取暖始终使清洁的内部有一个统一的平静外观。
The new wing provides spacious open plan living/dining and kitchen on ground floor opening out through full height glazed sliding doors to a limestone paved terraced area at the rear. Wide board Oak flooring with underfloor heating throughout gives the clean interior a unified calm appearance.
© Antonio Visceglia
c.Antonio Visceglia
就餐区位于前花园和后花园的视野中。在现有房屋的边界内有一个书房/健身房和公用室,完成底层的住宿。一块坚固的屋顶灯从上面照亮了厨房。
The dining area is located to take advantage of views to both the front and rear gardens. A study/gym and utility room within the boundary of the existing house complete the accommodation at ground floor level. A substantial roof-light over the stone clad island unit lights the kitchen from above.
© Antonio Visceglia
c.Antonio Visceglia
客厅的特色是一个真正的木火支撑在一个线性石灰石架子,这也隐藏了一个LED洗碗机灯具。
The living room features a real wood fire supported on a linear Limestone shelf which also conceals an LED wall-washer luminaire.
© Antonio Visceglia
c.Antonio Visceglia
垂直硬木板条形成一个戏剧性的屏幕,从主楼梯到第一层,通向一楼,一个主卧室,有一间套房、潮湿的房间和更衣室,通向高大的南面露台。
Vertical hardwood slats form a dramatic screen to the main stair to first floor leading up to the first floor a master bedroom with an en-suite wet-room and dressing room which opens out on to the large elevated south facing terrace.
© Antonio Visceglia
c.Antonio Visceglia
三角形后花园的顶端有一个木材覆盖车间/工作室,屋顶覆盖着绿色的刚玉。
The triangular shaped rear garden has at its apex a timber-clad workshop/studio with a green Sedum roof covering.
© Antonio Visceglia
c.Antonio Visceglia
Architects Walker Bushe Architects
Location London, United Kingdom
Category Renovation
Main Contractor Apace Construction
Area 263.0 sqm
Project Year 2016
Photographs Antonio Visceglia
Manufacturers Loading...
客服
消息
收藏
下载
最近





















