查看完整案例


收藏

下载
© Maris Mezulis Studio
Maris Mezulis Studio
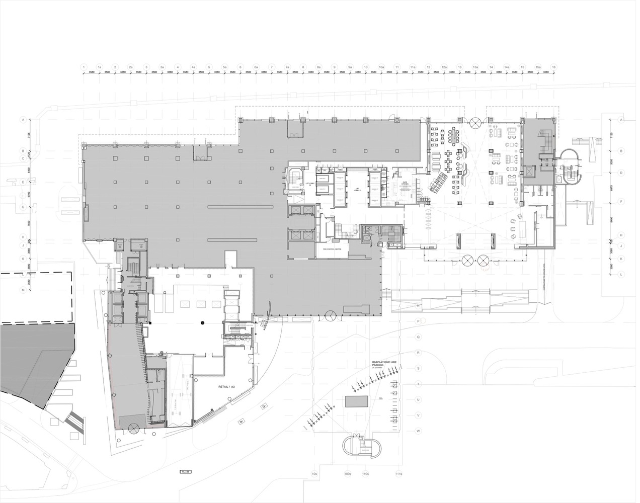
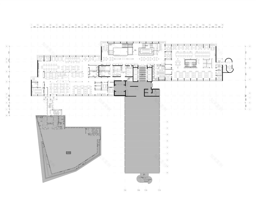
架构师提供的文本描述。在开始进行建筑设计之前,BDG对奥美和MEC进行了一次战略审查,通过我们的评估、审计和调整程序,这包括对相关未来工作的审查;参照类似组织的基准;分析当前的工作场所和入围建筑物;绘制移动模式,建立空间等级。
Text description provided by the architects. Prior to embarking on the architectural design, BDG undertook a strategic review of Ogilvy and MEC, through our Assess, Audit and Align process, this included a review of relevant future working; benchmarking against similar organisations; analysing the current workplaces and shortlisted buildings; mapping movement patterns, establishing a hierarchy of spaces.
© Gareth Gardner
加雷斯·加德纳
所有这些分析都被汇编成了一个未来的工作模式,基于一种更有权力的工作文化,即在一个具有协作性工作和共同的空间文化的动态环境中工作。
All of the above analysis was compiled into a future working model, based on a more empowered culture of working in a dynamic environment with collaborative working and a common spatial culture.
© Maris Mezulis Studio
Maris Mezulis Studio
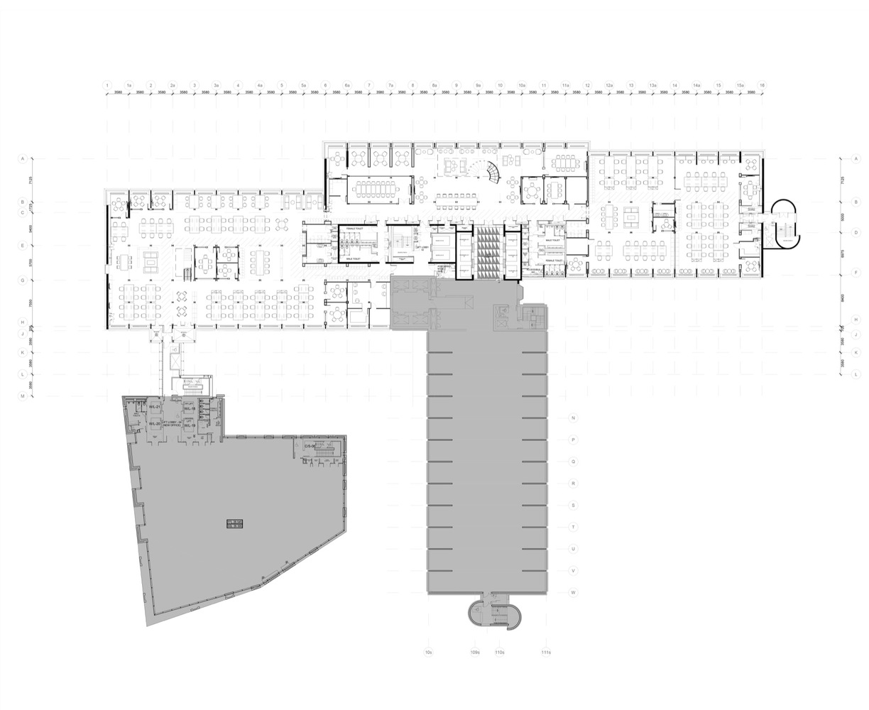
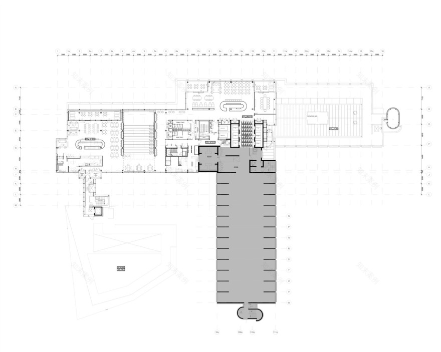
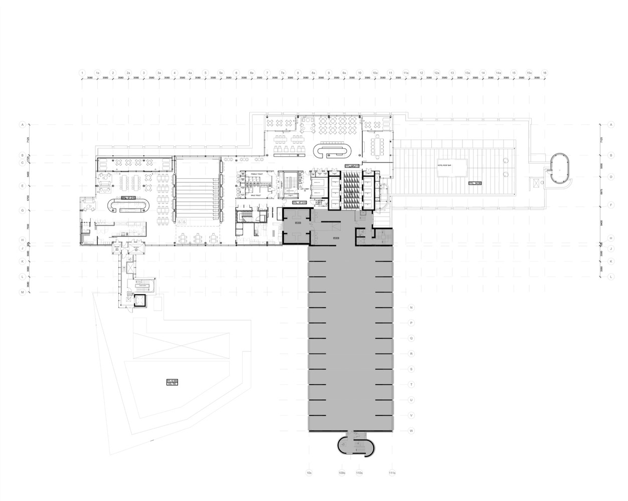
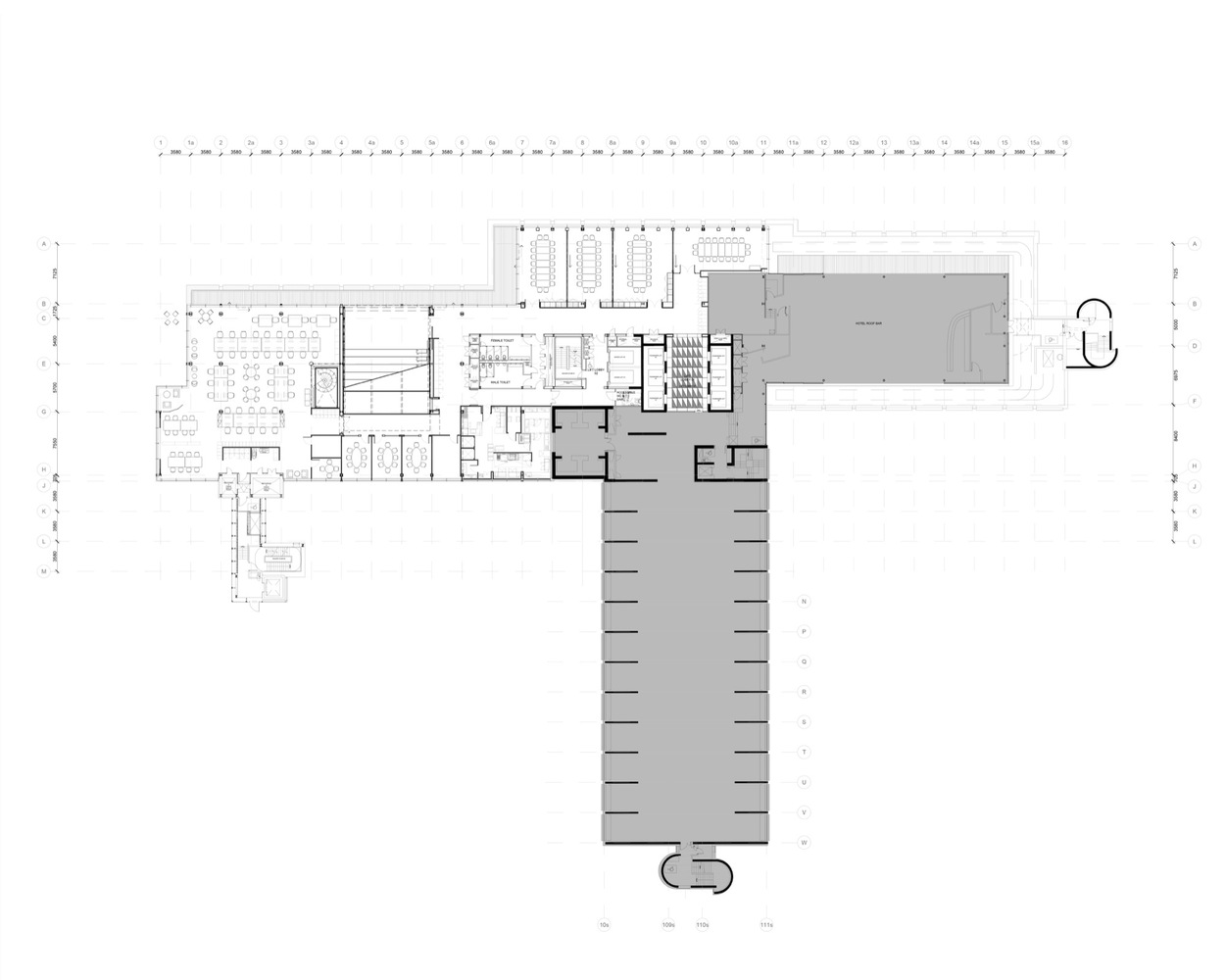
选定的大楼,海洋集装箱,已经进行了一次重大的整修,以提供一个新的办公室和酒店大楼,与奥美和MEC的办公室租户。他们50%的空间来自壳牌核心,以使设计团队能够以更高的成本效益和建筑方式影响空间。
The chosen building, Sea Containers, has undergone a major refurbishment to provide a new office and hotel building, with Ogilvy and MEC the office tenants. 50% of their space has been taken from Shell + Core to enable the design team to influence the space in a more cost effective and architectural manner.
该团队创造了最先进的、灵活的工作空间-大胆地推进了商业室内建筑的边界。
The team has created state of the art flexible workspace - boldly pushing the boundaries of commercial interior architecture.
© Maris Mezulis Studio
Maris Mezulis Studio
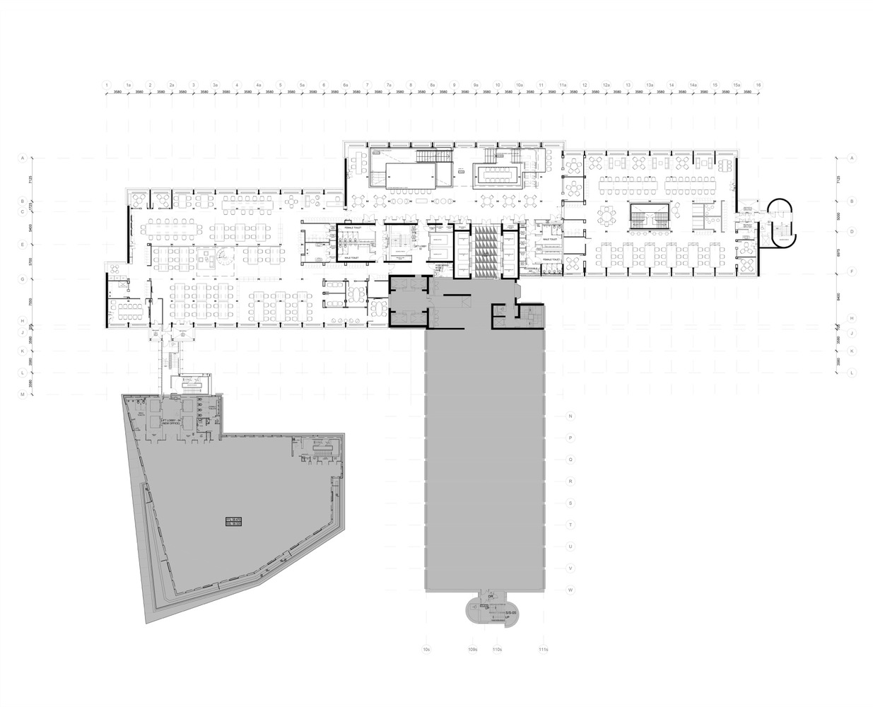
该项目对商业环境的各个方面提出疑问,将目光放高,并借鉴南岸沿线其他地标建筑的例子。
The project questions all aspects of what commercial environments can offer by setting its sights high and drawing on examples from other landmark buildings along the Southbank.
© Maris Mezulis Studio
Maris Mezulis Studio
这座海运集装箱大楼为用户提供了一个文化刺激的环境,就像海沃德画廊(Hayward)一样,它拥有国家剧院的质量,并提供餐饮服务,以与奥克斯塔相媲美。
The Sea Containers building offers its users an environment as culturally stimulating as the Hayward Gallery with the quality of the National Theatre and a catering offer to rival the Oxo tower.
© Maris Mezulis Studio
Maris Mezulis Studio
Architects BDG architecture + design, Matheson Whiteley
Location 18 Upper Ground, London SE1, United Kingdom
Category Office Buildings
Client Ogilvy Group UK, MEC, WPP
Project Year 2015
Photographs Gareth Gardner, Maris Mezulis Studio
Manufacturers Loading...
客服
消息
收藏
下载
最近













































