查看完整案例


收藏

下载
项目HA是位于比利时鲁汶的一家私人住宅。
在2015年完成,它是由Blanco Architecten设计的。
画廊中的视图
我们推荐这些项目-Rob Mols建筑师和工作室k室内和景观建筑师齐聚一堂,共同设计一个位于比利时鲁汶的半独立住宅,由JamesD.LaRue建筑师设计。
画廊中的视图
画廊中的视图
画廊中的视图
画廊中的视图
画廊中的视图
画廊中的视图
画廊中的视图
画廊中的视图
画廊中的视图
画廊中的视图
画廊中的视图
画廊中的视图
画廊中的视图
画廊中的视图
画廊中的视图
画廊中的视图
画廊中的视图
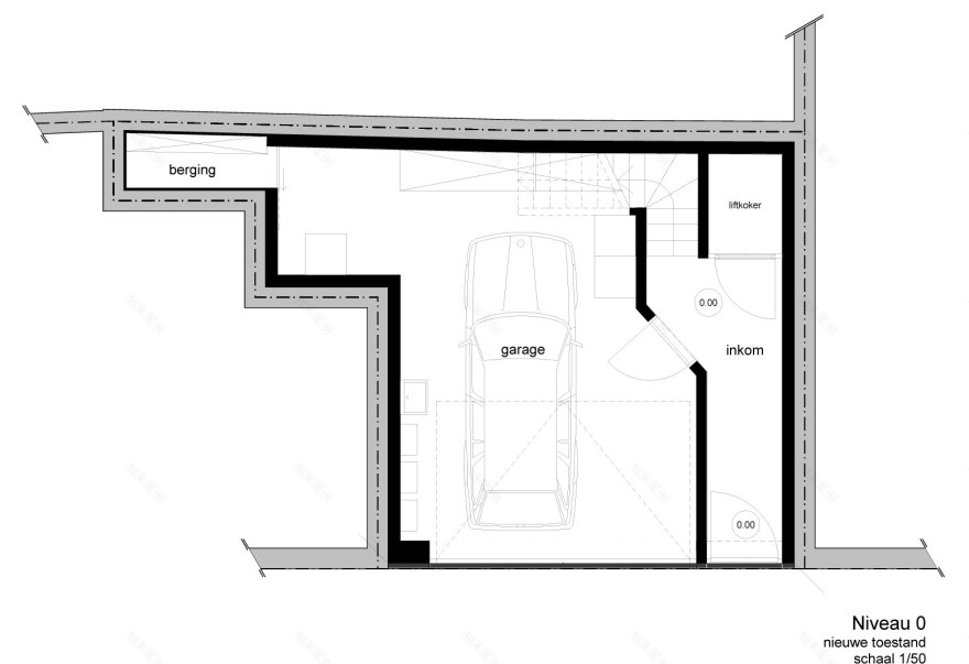
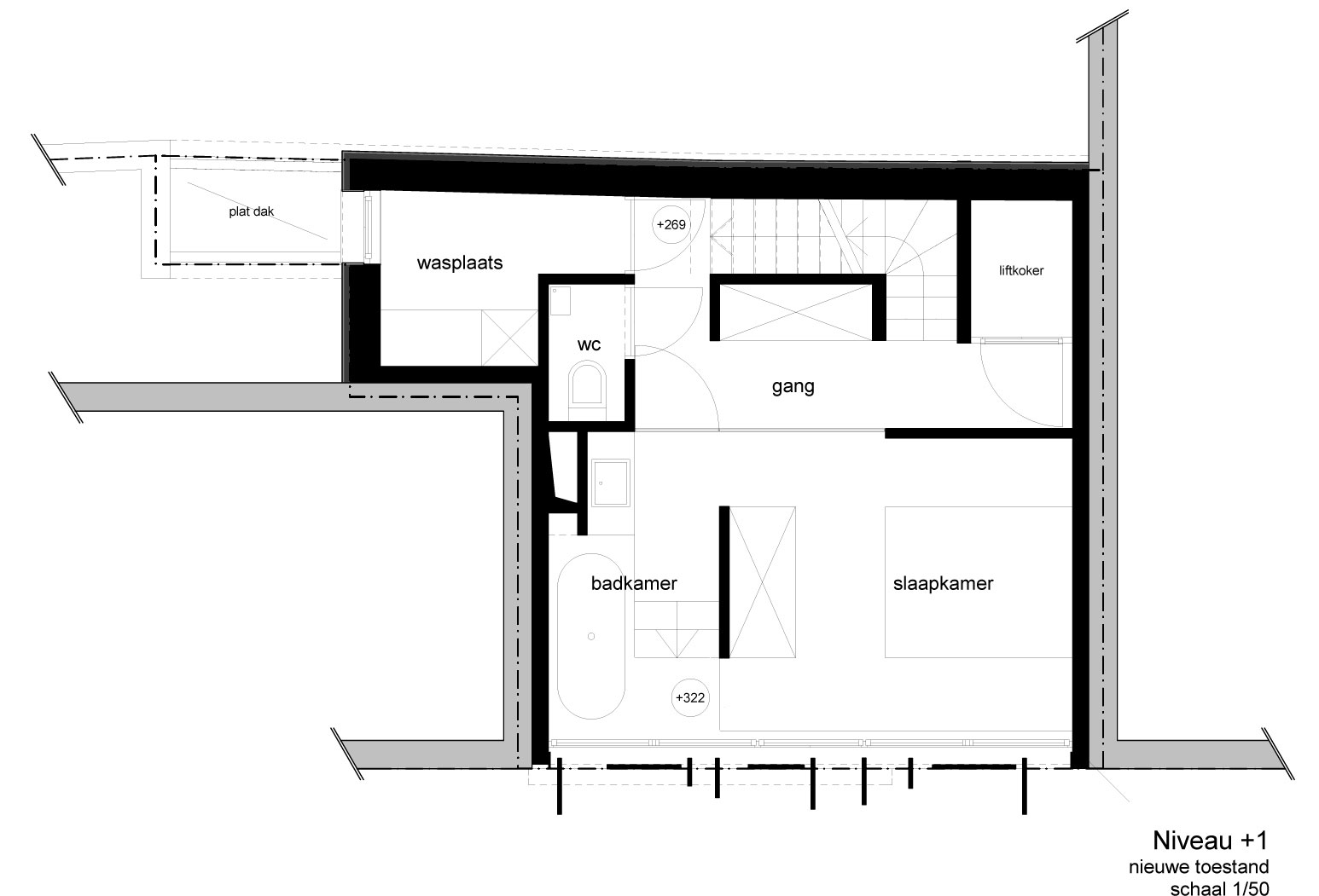
Blanco建筑公司的项目HA:
“市中心的一处建筑用地,占地40平方米(517平方英尺),只有一个完整的立面,既能创造光线,又能看到风景。一个巨大的,但非常令人兴奋的挑战,设计一个现代城镇房屋,可以容纳-乍一看-一个正常的住宅项目,包括一个车库和电梯。每平方米的地板和墙面都必须得到最大限度的利用。
在一楼——车库和入口——一间卧室,隐蔽在狭窄的街道上。
此外,房主明确希望拆除她破旧的旧房子,代之以她可以终生居住的现代住宅,这符合她生活的节奏。
“创造性地利用空间。按照生命的节奏。“这个小镇房子的DNA。“
画廊中的视图
画廊中的视图
图片来源:Kristel Merckx
keywords:Bathroom Belgium Blanco Architecten Bookshelf Contemporary Interior Design Decorative Accessory Dining Room Exposed Ceiling Beams Floor Plans Glass Walls Kitchen Leuven Lighting Living Room Rug Skylights Staircase Submitted Wall Decor Wood Floors
关键词:浴室比利时布兰科建筑书架当代室内设计装饰辅助餐厅暴露天花板吊顶楼板玻璃幕墙厨房Luvun照明客厅客厅地毯天窗楼梯提交墙装饰木地板
客服
消息
收藏
下载
最近






















