查看完整案例


收藏

下载
洛奇是位于意大利布雷西亚的私人住宅。
2015年完工,由FLUSSOCREATIVO设计工作室设计。
画廊中的视图
我们推荐这些项目-意大利罗马一对年轻夫妇的当代公寓-工作室口香糖在米兰为一对有两个孩子的年轻夫妇创建了一个家
画廊中的视图
画廊中的视图
画廊中的视图
画廊中的视图
画廊中的视图
画廊中的视图
画廊中的视图
画廊中的视图
画廊中的视图
画廊中的视图
画廊中的视图
画廊中的视图
画廊中的视图
FLUSSOCREATIVO设计工作室的阁楼:
“一套传统的公寓,一对年轻的夫妇,还有一种对现代生活的强烈渴望。
买房子总是一个复杂的时刻,在那里,欲望和妥协经常发生冲突,预算和期望并不总是一致的。
在位于布雷西亚省的这套公寓里,客户发现除了传统的室内设计之外,还有一些与他们的愿望完全相符的特征,这些特征并不能很好地满足他们的需求。
这个项目诞生了,因为从一开始,就围绕着客户所追求的风格,以及他们的个性。
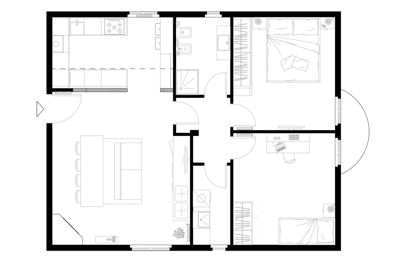
这所房子是90年代建造的一栋大楼最后一层的公寓。它有一个倾斜的天花板和一个方形的平面图,由一个大的起居室组成,位于厨房和中央屋顶峰顶之间,通向睡眠区,由两个卧室、一个浴室和一个洗衣房组成。
最初的概念是重视房子的建筑,为厨房创造一个单独的区域,但同时也是一个与其他地方有协同作用的空间。客户有一个微型世界式厨房的概念,它包含了传统的功能,但也有其他类型的次要功能,越来越多地出现在我们的日常生活中。
起居区的北侧被一个盒子状的干墙单元隔开,一边墙的内部有一个最小的设计,另一方面,它是开放的,可以放置书籍和附件。这是一个备忘录空间,涂满了黑板效果漆,中间有一张小桌子和凳子,可以在网上查阅食谱。
在内部,黑白对比放大了空间的划分,即使餐桌是连接两个区域及其功能的完美桥梁。
客厅是一个统一的空间,包括桌子、沙发和椅子,它们都集中在一个单一的、优雅的元素中。这张桌子是由天然橡木、黑色织物沙发和黑色聚合物椅子制成的,对比了整个地方的均匀灰色树脂地板和浅色墙壁。两个最小设计的天花板灯,创造了一个有趣的几何效果和他们的黑色,他们刹车明亮的白色在客厅的中心。
放置在角落里的梯形壁炉是桌子和沙发的连接元素。正面地,几乎整个墙的长度,铁和生木长凳活跃墙壁的电视。
睡眠区完成了装修工程,插入了一层天然的地板,切下了两个大的区域,而不忽视地将它们与房子的其他部分分开。
成本化的家具、个性化的颜色和灯光的定义,完成项目,为客户的投资提供价值。"
画廊中的视图
画廊中的视图
图片来源:Mattia Aquila
keywords:Brescia Contemporary Interior Design Decorative Accessory Dining Room Fireplace Floor Plans FLUSSOCREATIVO DESIGN STUDIO Italy Kitchen Lighting Living Room Remodeling Wall Decor
关键词:布雷西亚现代室内设计装饰附件餐厅壁炉地板平面设计工作室意大利厨房照明起居室重塑墙壁装饰
客服
消息
收藏
下载
最近


















