查看完整案例


收藏

下载
© Luke Hayes
(卢克·海耶斯
架构师提供的文本描述。这座房子的设计主要被家庭用作度假之家,但受到规划问题的限制,这些问题在某种程度上决定了建筑的足迹及其在工地上的位置。非常严格的尺寸限制迫使设计把窗户推到信封的外面,不允许任何会包含在面积计算中的悬垂,因此减少了实际的建筑面积。然而,在允许范围内,有一项关于列入温室的规定,一个挑战是如何成功地将其与缺乏倾斜结构的正常内涵的建筑相结合。
Text description provided by the architects. The design for the house, which is used by the family mainly as holiday home, was constrained by planning issues that to some extent dictated the built footprint and its position on the site. Very tight size restrictions forced the design to push windows to the outside of the envelope, not allowing any overhangs which would be included in an area calculation, therefore reducing the actual built area. However, within the allowable area there was provision for the inclusion of a conservatory, and one challenge was how to successfully integrate this with architecture devoid of the normal connotations of a lean-to structure.
© Luke Hayes
(卢克·海耶斯
© Luke Hayes
(卢克·海耶斯
非常简单的建筑也受到建筑经济学的推动。上层建筑由立于现场的木结构框架组成,跨度和房屋宽度由标准木桁架构件的性能限制决定。开窗是由木材表面的地板到天花板之间的缝隙产生的.
The very simple building is also driven by economics of construction. The superstructure consists of a timber frame that was erected onsite. Spans as well as the width of the house are decided by the performance restrictions of standard timber truss components. Fenestration is generated by floor-to-ceiling gaps in the timber façade.
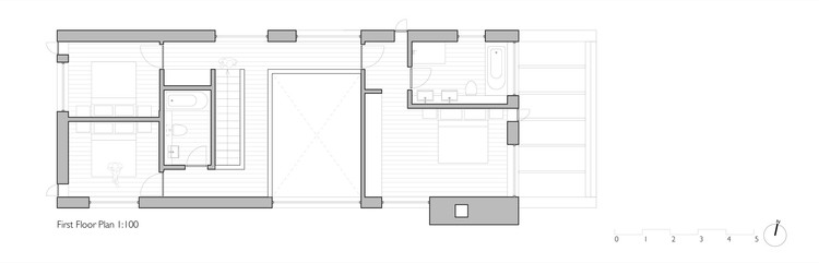
Floor Plan
Floor Plan
这座房子坐落在一个平台上,在南面和东面都有一个露台。该平台连接一个砖石嵌体,提供内部壁炉和混凝土壁炉与集成座椅。这个平台在离地面稍高的地方,允许内外梯田之间的水平连接,也可以使房子远离地面,而在冬天的几个月里,地面可能会相当潮湿。
The house sits on a platform that creates a terrace to the south and the east. This platform connects with a masonry chimneybreast that provides an internal fireplace and a concrete hearth with integrated seating. The platform, being raised slightly off the ground, allows a level connection between inside and outside terraces as well as raises the house off the ground, which in the winter months can be quite wet.
这座建筑是在落叶松的覆层中完成的,它的颜色将是银灰色的。
The building is finished in larch cladding that will weather to a silver grey colour.
© Luke Hayes
(卢克·海耶斯
产品描述:从外部露台延伸到整个底层,使内部和外部环境之间有一种更紧密联系的感觉。砖头把整个设计结合在一起;无论是在室内娱乐,从露台向花园望去,还是在房子和正式草坪之间的餐厅壁画,客户总是意识到他们与户外的关系。
Product Description. The Matclad brickslip flooring extends from the external terraces throughout the entire of the ground floor, giving a more connected feeling between the internal and external environments. The brick plinth unites the whole scheme; whether they are entertaining indoors, looking out across the terrace towards the garden, or dining al fresco between the house and the formal lawn, the clients are always aware of their relationship with the outdoors.
© Luke Hayes
(卢克·海耶斯
Architects Ström Architects
Location New Forest District, United Kingdom
Category Houses
Architect in Charge Magnus Ström
Area 194.0 sqm
Project Year 2015
Photographs Luke Hayes
Manufacturers Loading...
客服
消息
收藏
下载
最近


















