查看完整案例

收藏

下载
包裹屋是位于英格兰Reculver的一家私人住宅。
它是由OB架构公司于2015年设计的。
画廊中的视图
我们推荐这些项目-房屋场景建筑-Renovates在伦敦的私人住宅,英格兰Woodford建筑和室内设计-在英格兰南部Hams设计一个舒适的私人住宅
画廊中的视图
画廊中的视图
画廊中的视图
画廊中的视图
画廊中的视图
画廊中的视图
画廊中的视图
画廊中的视图
画廊中的视图
画廊中的视图
画廊中的视图
画廊中的视图
画廊中的视图
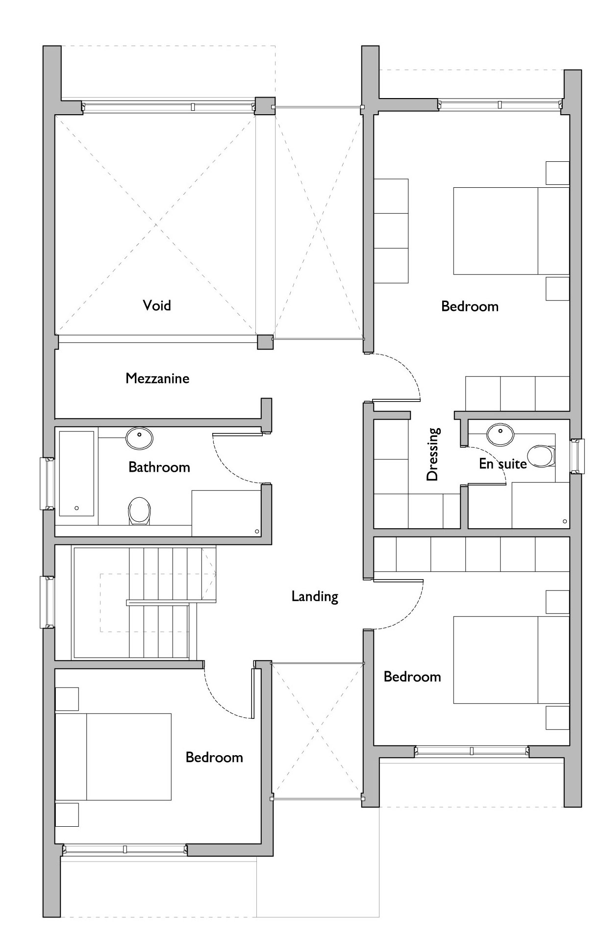
“在伦敦南部的大都会绿化带内一片朴素的狭小地块上,WrapHouse是一个现代化的200平方米(2,153英尺2),2层的家庭住宅,可以俯瞰Biggin山机场的开阔地带。
这座房子由两个长的“包裹”元素组成,它们延伸到狭窄的地方;白色的“包裹”包含了所有的起居和睡觉场所,并且在每一端都充满了雪松板和大面积的玻璃。在这些“包裹”元素之间设置了一个双层玻璃循环中庭,贯穿整个房子的长度,把所有的空间连接在一起,并在房子的前部和后部之间建立一个视觉连接。玻璃的中庭给房子带来了深深的光线,并减轻了东西向的情节,确保了生活空间一整天都充满了自然光。
一个书房和厨房位于房子前面,有餐厅,后面有一个大的双高客厅,可以俯瞰花园。
这座房子取代了一座20世纪50年代的小平房,它坐落在一排排同样不显眼的单层房屋之中。这是许多问题中的第一个问题,因为地方规划当局只允许比现有房屋增加10%的面积。经过多次谈判,我们最终获得了大约40%的增长许可,使用了一项假设的许可开发活动,展示了如何在没有规划许可的情况下扩建现有的房屋。
更换的房子还必须尊重周围平房的高度;通过操纵楼层和向下走,尽管比邻近的房产高出一层,平顶护栏的水平却位于相邻房屋的山脊线之下。“
画廊中的视图
画廊中的视图
画廊中的视图
画廊中的视图
画廊中的视图
画廊中的视图
keywords:Bedroom Contemporary House England Glass Ceiling Glass Walls Hall and Entrance Landscaping Lighting OB Architecture Reculver Skylights UK Wood Floors Wood Walls
关键词:卧室,当代住宅,英国玻璃天花板,玻璃墙壁,大厅和入口景观,照明,OB建筑,充电天窗,英国木地板,木墙
客服
消息
收藏
下载
最近






















