查看完整案例


收藏

下载
设计Koichi Futatusmata(案例-真实),Tomoki Katada(环境场所/合作伙伴)设计合作,建筑海啸建筑师建筑照明计划,Masaaki Sato(ModuleX Fukuoka)制造商装货.多规格少规格
Design Koichi Futatusmata (CASE-REAL), Tomoki Katada (ambient place/ partner) Design Cooperation, Construction Tsukasa Architect Construction Lighting Plan Masaaki Sato (ModuleX FUKUOKA) Manufacturers Loading... More Specs Less Specs
© Hiroshi Mizusaki
(C)三崎广史(Hiroshi Mizusaki)
架构师提供的文本描述。约隆岛海岸上的第二栋房子,这个岛是由高耸的珊瑚礁建造的。这座岛屿位于鹿儿岛县最南端,四周环绕着一片美丽的翠绿海洋,从这里可以看到。设计的中心思想是解决一个矛盾的任务,适当地进入视图,阳光和风,也是为了保护人民生活在严酷的射线和飓风是众所周知的。
Text description provided by the architects. A second house on the shores of Yoron Island, an island which was created from elevated coral reefs. Located on the Southernmost point in Kagoshima prefecture, this island is surrounded by a beautiful emerald green ocean which is visible from this site. The design was centered on the idea of solving a contradictory task of appropriately intaking the view, sunlight and wind, also to protect the people living from the harsh rays and hurricanes this area is known for.
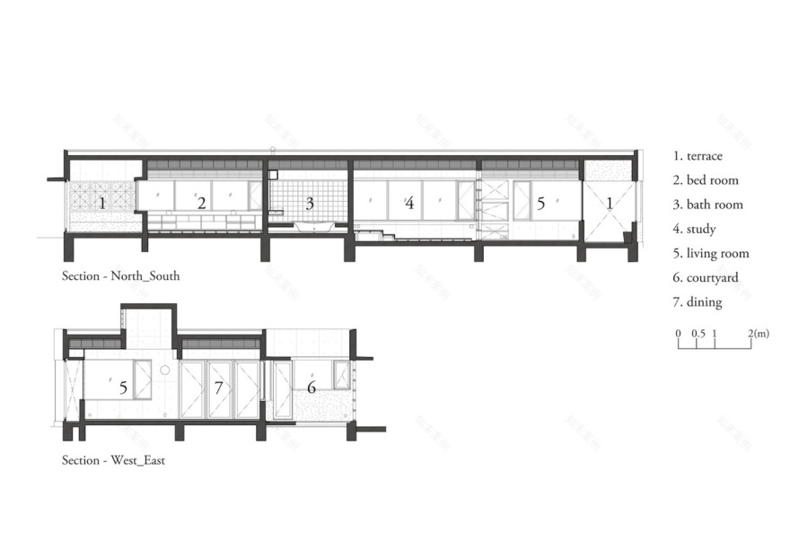
考虑到这一观点,在项目的低层建筑体积中,主床房保持在海洋一侧以满足给定的视图,而具有其他功能的房间则面向陆地一侧。这两个空间之间的大非均匀空间作为主要空间,成为季节性风向的路径,主要的居住空间作为一个舒适的内露台。
Taking the view in consideration, within the low rise architectural volumes of the project the master bed room was kept on the ocean side to fulfill the given view, and rooms with other functions in face the land side. The large un-even space between these two volumes function as the main space, which becomes the path of the seasonal winds.The main living spaces which have pent-roofs function as a comfortable inner terrace.
© Hiroshi Mizusaki
(C)三崎广史(Hiroshi Mizusaki)
© Hiroshi Mizusaki
(C)三崎广史(Hiroshi Mizusaki)
通过在帐篷屋顶的外部边缘安装网状固定装置,建立了一个缓冲区,以确保内部安全免受飓风期间飞行的物体的影响,并为全景开放和关闭创造了一个舒适的开口。网格固定装置的灵感来自一种传统的冲绳建筑材料,叫做“花块”。通过在这个基本模块的基础上创建一个夹具,我们创造了一个强大的外部形象。用锤击色调的钢筋混凝土,通过在内部使用具有鲜明特点的天然材料,我们的目标是创造一个融入当地气候的地方。
By installing mesh-like fixtures to the outer rims of the pent roof, a buffer zone was created to secure the safety of the interior from objects flying during the hurricanes as well as creating a comfortable opening for the panorama both opened and closed. The mesh fixtures were inspired by a traditional Okinawa construction material called the “Flower Block”. By creating a fixture based on this basic module, a strong exterior image was created. With hammer toned reinforced concrete, and by using natural materials with distinct characteristics in the interior we aimed to create a place that blends into the local climate.
© Hiroshi Mizusaki
(C)三崎广史(Hiroshi Mizusaki)
Architects CASE-REAL
Location Yoron, Japan
Category Houses
Area 187.2 m2
Project Year 2016
Photographs Hiroshi Mizusaki
Manufacturers Loading...
客服
消息
收藏
下载
最近































