查看完整案例


收藏

下载
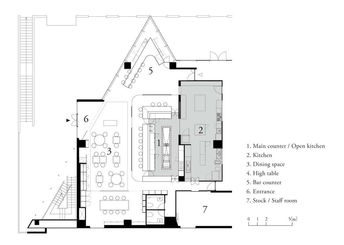
这是在福冈的博多港一个新的餐厅项目。该场地位于博多湾的客运码头商业综合体中,是一个能够饱览眼前大海景观,大约300平米的大空间。通过沟通,业主希望尽可能保持厨房开放,打造一个拉近厨师与客人之间关系的餐厅。
接到这样的任务,设计团队考虑活用现有压倒性的空间规模感的同时,也让整体成为一个无缝的空间。首先,在空间的中央制作了一个大型矮吧台和开放式厨房,通过使用现有的网格天花板,营造出连通的空间感。
在厨房的入口处设置了一个大型推拉门和窗户,以描绘延伸到厨房远端的连接感。此外,我们在店内角落7米高的挑空区内打造了高吧台的酒吧空间,为整个空间增添了休閒酒吧餐厅的感觉。用于主要材料的柳安木材经过精心加工处理,与位于中央的南洋樱实木所打造的矮吧台做紧密结合。吧台桌面和厨房的面板采平面连接,让客人在视觉上感受到烹饪料理时的临场感。
项目名称:Restaurant Sola
开业时间:2018年12月
设计公司:CASE-REAL
设计团队:二俣公一 下平康一 平原圣元
实用面积:302.2平米
日式 餐饮 酒吧 咖啡
客服
消息
收藏
下载
最近



















