查看完整案例


收藏

下载
© Takumi Ota
(小田隆美)
架构师提供的文本描述。建筑与财产之间的和谐-一个前“肯班”变成了一个家
Text description provided by the architects. The Harmony between Architecture and Belongings across Time: A Former “Kenban” Turned Into a Home
© Takumi Ota
(小田隆美)
© Takumi Ota
(小田隆美)
金崎温泉位于兵库县,是日本领先的温泉地区之一,有着1300多年的历史。离这座城市的主要街道只有一小段路,有一条小溪,这条小溪上矗立着一条从前的“狗舍”(艺妓们聚集在一起的地方)。我们建于50年前,周围是竹林,我们把这座建筑改建成了一座住宅。
Kinosaki Onsen, located in Hyogo Prefecture, is one of the leading onsen areas in Japan, with a history of over 1300 years. Just a short path in from the main street of this onsen city is a small stream, along which stands a former “kenban” (a place for geisha performers from the onsen to gather). Built 50 years ago, and surrounded by a bamboo forest, we converted/renovated this building into a residence.
© Takumi Ota
(小田隆美)
最初来自于《兵库行动》的业主回到了他的家乡,从东京回来,因为他的友好和关心的天性,朋友和熟人----来自近和远方的朋友和熟人----经常访问,进行心脏与心脏的对话,或者谈论共同的利益,如艺术。我们认为这是一个完美的反映他们的个性,在中心设计厨房,被用作讨论的主要领域。还有大量珍贵的东西(家具、艺术、服装和其他家具),我们希望这些东西环绕厨房-这是我们开始设计工作的关键。
The owner, who is originally from Hyogo Prefecture returned back to his hometown from Tokyo, and because of his friendly and caring nature, friends and acquaintances - from both near and far - often visit to have heart-to-heart conversations, or to talk about common interests, such as art. We thought it would be a perfect reflection of their personality to design the kitchen at the center, to be used as the main area for such discussions. And with a vast collection of treasured belongings (furniture, art, clothing, and other furnishings), we wanted these to surround the kitchen - this is the point from which we started our design work.
它也帮助我认识业主个人,并认为他是一个好朋友,所以我们熟悉他的收藏,这是重要的,他和他的家人。
It also helped that I know the owner personally and consider him a good friend, so we are familiar with his collection and it’s importance to him and his family.
© Takumi Ota
(小田隆美)
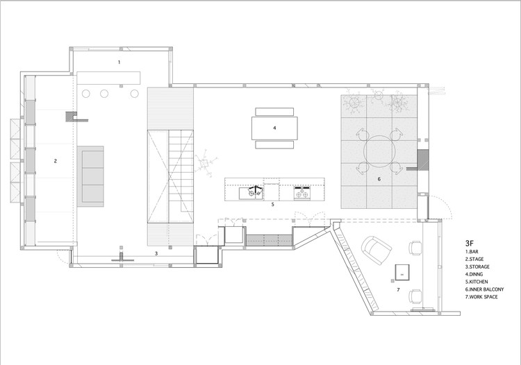
三楼的动态元素包括中心的厨房、两个就餐区、一个在以前的表演舞台上设计的略微凸起的起居室,以及一个为主人的妻子设计的工作室-她是一位漫画艺术家-所有这些都在温暖、开阔的空间里保持着平衡。一条由人字形板构成的大横梁,是现有结构的一部分,围绕着整个空间。我们在拆除天花板后才发现这个美丽的梁结构,50年来第一次暴露它是一个非常令人兴奋的细节。
The dynamic elements of the third floor include the kitchen at its center, two dining areas, a slightly raised living area designed on a former performance stage, and a studio for the owner’s wife - who is a manga artist - all in balance with one another in the warm, open space. A large beam made of chevron-shaped boards, which is part of the existing structure, surrounds this entire space. We only discovered this beautiful beam structure after deconstructing the ceiling, and to be able to expose it for the first time in 50 years was a very exciting detail to add.
© Takumi Ota
(小田隆美)
在这些朴素但重要的元素之间找到平衡-既有的结构梁和业主的个人物品-至关重要。要找到一种特权和承认两者的方式,对整个空间的所有设计细节都产生了很大影响。
Finding the balance between these modest, yet important elements - an existing structural beam and the owner’s personal belongings - was crucial. To find a way to privilege and acknowledge both, highly influenced all the design details of the entire space.
© Takumi Ota
(小田隆美)
一个例子是地板的选择-它的宽度和颜色。另一个例子是,我们避免了在任何油漆涂层中使用白色,而是选择了四种不同色调的灰色。我们的目标是强调梁结构的存在,同时给整个空间一种深度感。
One example is the choice of flooring – its width and coloring. And another example is that we avoided the use of white for any paint coating, but instead, selected four different tones of gray. The effect we were aiming for was to accentuate the existence of the beam structure, and at the same time, to give the entire space a sense of depth.
© Takumi Ota
(小田隆美)
相比之下,二楼被设计成更被动的功能,入口、浴室和卧室在其中心。入口故意位于这一层,以便给人一种对上面楼层的期待感。
In contrast, the second floor was designed to have a more passive function, with the entrance, bathroom, and bedrooms at its center. The entrance is purposely located on this floor in order to give a sense of anticipation towards the floor above.
由于这个住宅周围有竹林,我们需要考虑湿度问题。因此,对于主卧室,我们决定用北海道的硅藻土作为墙壁和天花板的装饰,因为这种材料具有天然的湿度调节特性。
Because of the bamboo forest surrounding this residence, we needed to consider the problem of humidity. Thus, for the master bedroom, we decided to use diatomite earth from Hokkaido as the finish for the walls and ceiling, as this material has natural humidity adjustment properties.
© Takumi Ota
(小田隆美)
虽然决定使用硅藻土当然是为了解决湿度问题,但还有另外一个更有意义的原因,这个项目的建筑公司是由业主的高中朋友经营的。公司最初是一个由技术熟练的泥瓦匠组成的小组,因此我们非常有兴趣将他们的技能融入我们的设计中。因此,就像主卧室的装修一样,二楼还有很多其他的区域,都有“抹灰”式的装饰(通过涂层)。例如,浴室水槽采用这种“涂层”的概念,用一层薄薄的玻璃钢树脂完成贴面,应用于一位熟练的抹灰工手中。
And whilst decision to use diatomite earth was of course to solve the humidity problem, there was an additional, more meaningful reason for this decision. The construction company for this project is operated by the owner’s high school friend. The company first started as a small team of skilled plasterers, so we were very much interested in incorporating their skills in our design. So, like the finish to the master bedroom, the second floor consists of many other areas with a “plastering” type finish (by coating). The bathroom sink, for example, adopts this concept of “coating”, by finishing the veneer with a thin layer of FRP resin, applied at the hands of a skilled plasterer.
最后,在解构之后,底层仍未被破坏,暴露了它的骨架结构。这个空间将保持在这种状态,可以自由地以任何方式设计和使用,因为主人会继续遇到新的人,并在不久的将来和很长一段时间内遇到新的东西来填补这个空间。
Finally, the ground floor is currently left untouched after deconstruction, exposing its skeleton structure. This space will remain in this state, free to be designed and used in any which way, as the owner continues to meet new people, and encounter new things with which to fill this space, in the near future and for a long time to come.
© Takumi Ota
(小田隆美)
Architects PUDDLE
Location Japan
Category Houses
Area 276.0 sqm
Project Year 2016
Photographs Takumi Ota
Manufacturers Loading...
客服
消息
收藏
下载
最近

































