查看完整案例


收藏

下载
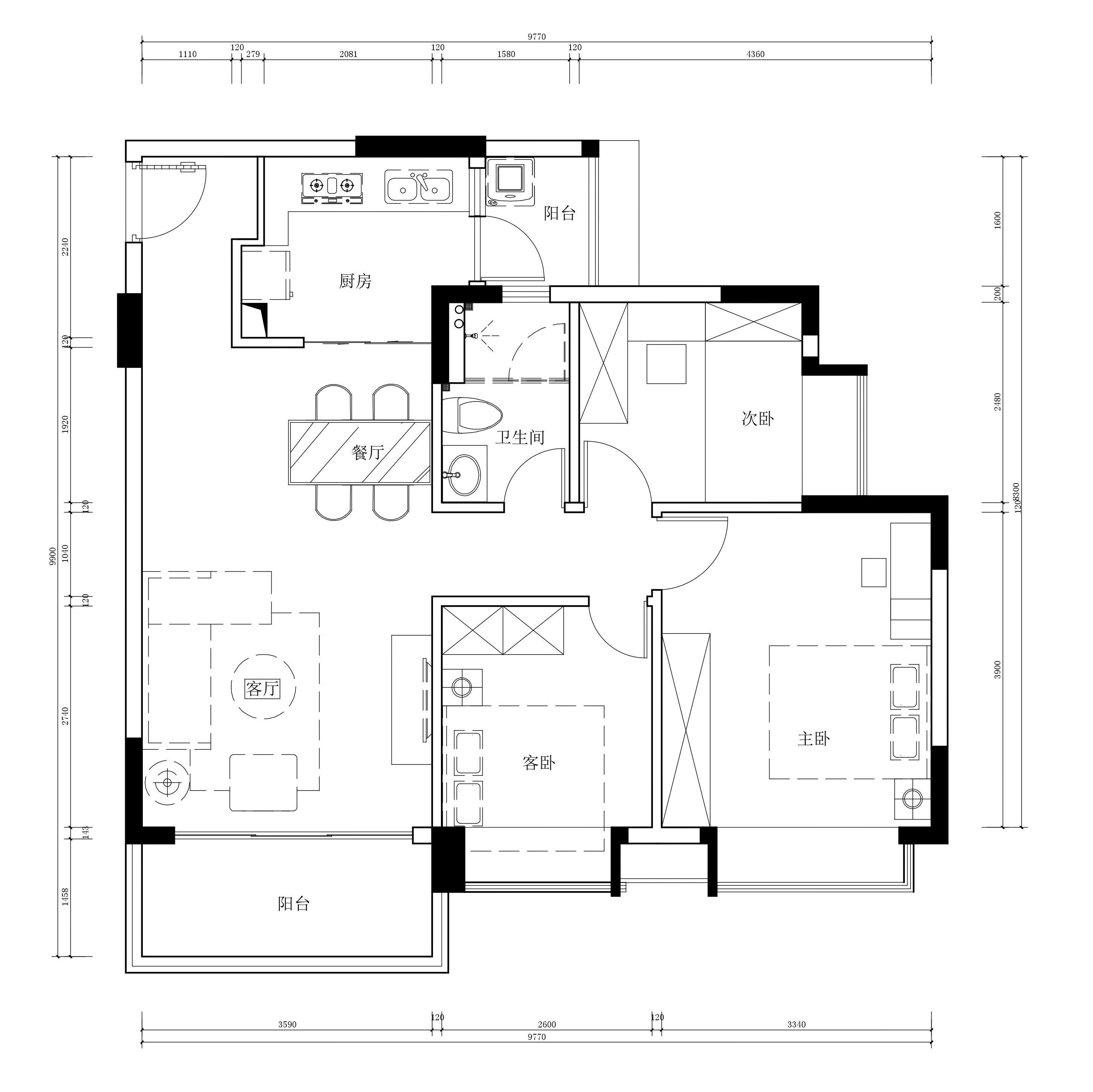
简介:该户型面积约77.58平方米,三房两厅的格局适合和父母一起居住;此户型主打新古典风格,同时还加入现代时尚风格的元素,既能满足现代人对时尚的追求,同时还可以满足父母对生活习惯和审美的要求; 用“小户型、大精彩”来形容这个户型最合适不过了。
楼 盘:安南丽苑
户 型:三房两厅
面 积:77.58㎡
业 主:时尚白领
风 格:新古典风格
施 工:百阖装饰
该户型面积约77.58平方米,三房两厅的格局适合和父母一起居住;此户型主打新古典风格,同时还加入现代时尚风格的元素,既能满足现代人对时尚的追求,同时还可以满足父母对生活习惯和审美的要求;
用“小户型、大精彩”来形容这个户型最合适不过了。
*实用三房、客厅、主卧室朝南、清风阳光满屋;
*双阳台人性化设计,科学合理便利生活;
毛坯房设计 新古典精装房设计
客服
消息
收藏
下载
最近











