查看完整案例


收藏

下载
Hashim Sarkis、Boulos Douaihy(项目协调员)、Rola Idris、Sandra Frem、Wissam Chaaya、Samir Bitar、Pablo Roquero、Cynthia Gunadi、Penn Ruderman、Christopher Johnson、Charif Tabet、Helen Briones。建筑管理多边形采购产品结构鲁道夫马塔尔机械罗杰Kazopoulo电气罗杰Njeim园艺:异国制造商装货.多规格少规格
Team Hashim Sarkis, Boulos Douaihy (Project Coordinator), Rola Idris, Sandra Frem, Wissam Chaaya, Samir Bitar, Pablo Roquero, Cynthia Gunadi, Penn Ruderman, Christopher Johnson, Charif Tabet, Helena Briones. Construction Management Polygon, sal. Structure Rudolphe Mattar Mecanical Roger Kazopoulo Electrical Roger Njeim HORTICULTURE: Exotica Manufacturers Loading... More Specs Less Specs
Courtesy of Hashim Sarkis
哈希姆·萨尔基斯(Hashim Sarkis)
架构师提供的文本描述。该项目包括黎巴嫩Aamchit海岸的四栋独栋房屋,以及现有景观和老房子的修复。
Text description provided by the architects. The project consists of four single-family houses on the coast of Aamchit, Lebanon as well as the rehabilitation of the existing landscape and old houses.
Courtesy of Hashim Sarkis
哈希姆·萨尔基斯(Hashim Sarkis)
Courtesy of Hashim Sarkis
哈希姆·萨尔基斯(Hashim Sarkis)
该遗址向西倾斜,向地中海方向倾斜,其角度允许将房屋嵌入景观中,使房屋的正面向视野和微风开放,而房屋的另一侧则受到地球的保护。每栋房屋都由双层墙组成,它保留了东面的泥土,并向北和向南倾斜。
The site slopes west towards the Mediterranean, its angle allowing for embedding the houses in the landscape in such a way that the front is open to the view and breeze whereas the other sides of the house are protected by earth. Each house consists of a double-layer wall that retains the earth from the east and slopes with the land north and south.
Courtesy of Hashim Sarkis
哈希姆·萨尔基斯(Hashim Sarkis)
Courtesy of Hashim Sarkis
哈希姆·萨尔基斯(Hashim Sarkis)
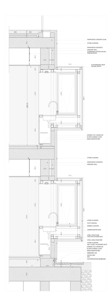
框架/挡土墙是加倍的,以创造绝缘和服务通道,以对抗土壤的湿度,并吸引冷空气进入房屋。双周墙也作为一种结构,用于房屋的所有服务,使底层开放。在夏季和冬季的极端日子里,在后部插入一个庭院,以加强交叉通风,创造一种小气候。
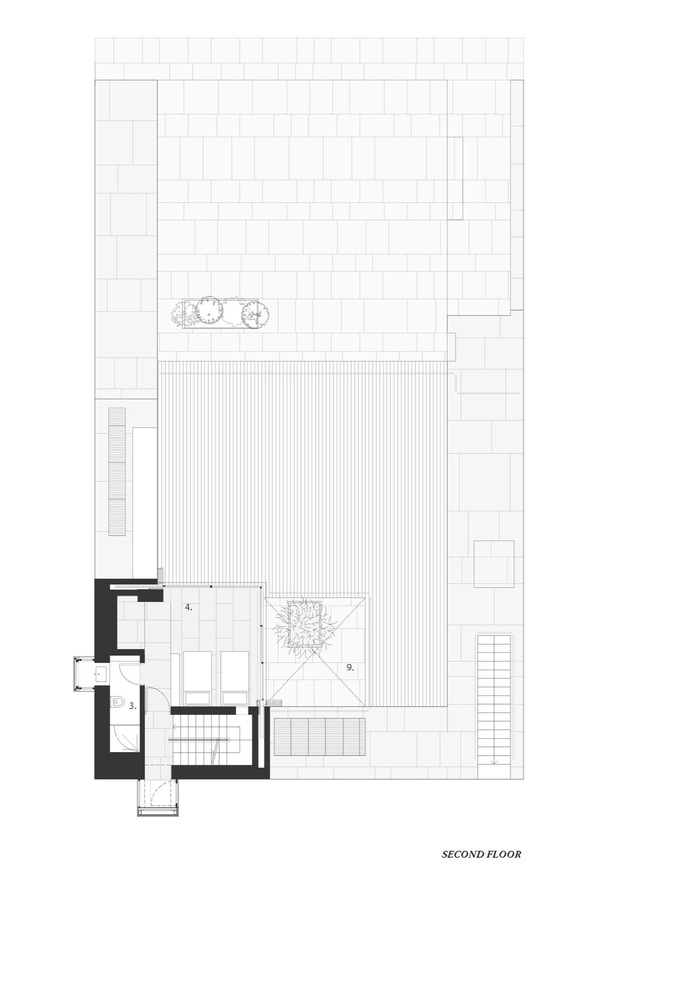
The framing/retaining wall is doubled to create insulation and service passage against the soil’s humidity and to draw in cool air into the house. The double perimeter wall also works as a structure and is used for all the services of the house, leaving the ground floor open. A courtyard is inserted in the back to enhance cross ventilation and create a microclimate in the extreme days of summer and winter.
一座建在卧室里的塔,位于院子的东南面,用来遮阳。它用作烟囱,从庭院和卧室释放热量。楼梯和浴室位于东侧和南侧,提供夏季热的热量,而西北角完全没有结构,窗户打开时卧室变成阳台。庭院和塔楼的结合产生了一种新的房屋类型,随着开发项目在其共同设施和海洋周围的发展,这种类型在场地上的使用也会有不同程度的变化。
A tower that houses the bedrooms is placed at the southeastern side of the courtyard to provide shading. It works as a chimney to release the heat from the courtyard and the bedrooms. The stair and bathrooms are located at the east and south side to provide a thermal mass against the summer heat while the northwest corner is completely clear of structure, turning the bedrooms into balconies when the windows are open. The combination of the courtyard and tower produces a new house typology that is used with degrees of variation on the site as the development grows around its common facilities and the sea.
Courtesy of Hashim Sarkis
哈希姆·萨尔基斯(Hashim Sarkis)
景观-一般的景观策略包括创造一种从“海滩”到“山”的风景画。这主要是通过地面覆盖和相关的植物和树木(蕨类植物、杂草、花卉和橄榄)来实现的。随着地面覆盖设计,场地规划恢复了旧桉树路作为新房子的人行横道。
Landscape The general landscape strategy consists of creating a xeriscape that sets a transition from the ‘beach’ to the ‘mountain’. This is mainly achieved by the ground covering and associated plants and trees (ferns, weeds, flowers and olives). Along with the ground covering design, the site plan revives the old eucalyptus road as a pedestrian spine for the new houses.
Courtesy of Hashim Sarkis
哈希姆·萨尔基斯(Hashim Sarkis)
依靠保留现场所有填土的切割和填充策略,房屋被放置在这样一种方式,即不通过提升填土上的后置房屋而彼此阻塞。强调路径网络,种植灌木,以增加接近海洋的经验。
Relying on a cut and fill strategy that preserves all the fill on site, the houses are placed in such a way as not to block each other by lifting the back houses on fill. Emphasizing the path network, shrubs are planted to enhance the experience of approaching the sea.
Courtesy of Hashim Sarkis
哈希姆·萨尔基斯(Hashim Sarkis)
Architects Hashim Sarkis
Location Lebanon
Category Houses
Area 1392.0 m2
Project Year 2016
Manufacturers Loading...
客服
消息
收藏
下载
最近
















































