查看完整案例


收藏

下载
© Koji Fujii / Nacasa & Partners Inc.
Koji Fujii/Nacasa
架构师提供的文本描述。东京广场银座位于日本最著名的商业区银座,也是一个主要的交汇处,是一座面积5万平方米的大型商业大厦。该网站位于Yurakucho和Hibiya District的连接点,可以被描述为“银座之门”。该项目被四面八方的道路所包围,是一个“一街区全面发展”项目,这在这个地区是一个罕见的例子。
Text description provided by the architects. Located in Ginza, which is the most renowned commercial district in Japan, and also facing a major junction Sukiyabashi Crossing, Tokyu Plaza Ginza is a large commercial building with a floor area of 50,000 sqm. The site sits at the connection point to Yurakucho and Hibiya disctrict, and can be described as “Gate of Ginza”. Surrounded by roads on all sides, the project is a “1 block full development” which is a rare case in this district.
© Koji Fujii / Nacasa & Partners Inc.
Koji Fujii/Nacasa
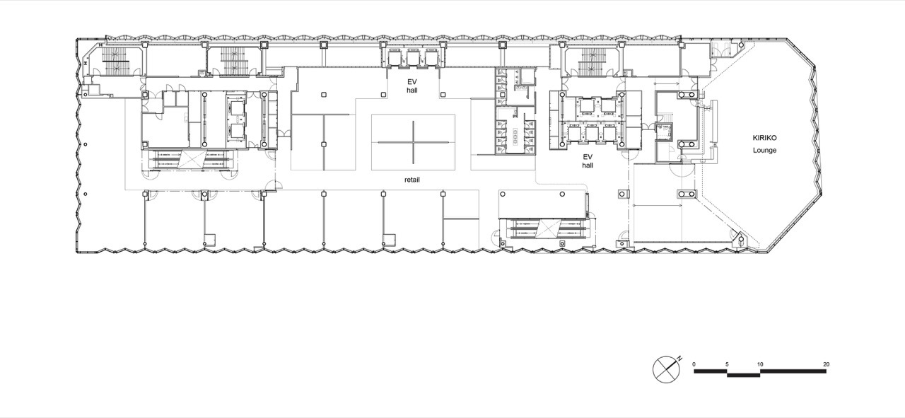
1st Floor Plan
第1层平面图
© Koji Fujii / Nacasa & Partners Inc.
Koji Fujii/Nacasa
基于“光之容器”的概念,该建筑被设计成一种玻璃“容器”,受日本传统玻璃切割工艺“江户基里科”的启发。为了实现与城市相互作用的商业建筑,外墙主要由玻璃构成。这就揭示了城市的内在活动,使城市产生了一种感觉。另一方面,三维空间的立面构图产生了来自太阳光的透射和反射的不同的光学现象。外观显示了不同的表达方式,随着时间和天气的变化。在以象征性的形式吸引人的同时,周围城市景观和气候的反射使这一建筑融入整个城市景观。东京都银座广场是银座风景线的一个和声补充。
Based on the concept “Vessel of light”, the building is designed as a glass “vessel” inspired by the Japanese traditional craft of glass cut “Edo Kiriko”. In order to realize a commercial building which interacts with the city, the façade is mainly composed of glass. This reveals the inner activities to the city, and enables an urban feeling. On the other hand, the three-dimensional façade composition results in a diverse optical phenomenon derived from transmission and reflection of sunlight. The façade shows various expressions changing by time and weather. While attracting with a symbolic form, the reflection of surrounding cityscape and climate makes this architecture merge into the entire cityscape. The Tokyu Ginza Plaza is a harmonic addition to the urbanscape of Ginza.
© Koji Fujii / Nacasa & Partners Inc.
Koji Fujii/Nacasa
立面为城市现象
Facade as urban phenomenon
这座银座大厦的立面由三维玻璃面组成,形成了一种微妙的光反射和透射现象。换句话说,立面反映了城市景观、室内商业环境以及围绕这座建筑的动态活动。通过重组这些多样的景观元素,建筑立面变成了一种城市现象。为了不暴露玻璃的框架,采用了SSG。像在江户基里科表面看到的雕刻玻璃图案,正面创造了一个巨大的三维钻石形状的图案,这是6层楼高,500毫米深。这种大规模的外观模式使建筑从周围的环境中脱颖而出。一体化玻璃总成是由低铁玻璃和热反射镀膜玻璃组成,以强调建筑形式的三维轮廓。低铁玻璃板经1mm梯度密度陶瓷点状处理。在夜间,这架飞机被集成到内部铝多层的灯具照亮。
The facade of this Tokyu Plaza Ginza Building consists of three dimensional glass planes, which creates a delicate phenomenon of light reflection and transmission. In other words, the facade variously reflects the urban scenery, the interior commercial ambience, and the dynamic activities surrounding this building. By reconstituting these diverse scenic elements, the building facade transforms itself into an urban phenomenon. SSG was adopted so as not to expose the framing of the glass. Like a carved glass pattern seen on the surface of Edo Kiriko, the facade creates a large 3D diamond shaped pattern, which is 6 stories high and 500 mm deep. This large scale pattern of the façade makes the building stand out from the surrounding context. The unitized glass assembly is comprised of both low iron glass and heat reflective coated glass, in a way that emphasizes the three-dimensional profile of the building form. The low iron glass panel is treated with a 1mm ceramic dot pattern of gradient density. At night this plane is illuminated by light fixtures integrated into the interior aluminum mullions.
© Koji Fujii / Nacasa & Partners Inc.
Koji Fujii/Nacasa
高架公共空间
Elevated Public Space
基里科酒廊是位于大楼中央的公共空间,提供了城市的宽阔景观。通过它的27米高的心房和位于Sukiyabashi过境点的重交通上方的有利位置,休息室开放到城市的商业活动。
The KIRIKO LOUNGE is a public space situated at the middle level of the building, providing a broad view of the city. By its 27 meter high atrium, and the vantage point above the heavy traffic of the Sukiyabashi Crossing, the lounge opens up to the commercial activities of the city.
© Koji Fujii / Nacasa & Partners Inc.
Koji Fujii/Nacasa
在银座的高密度和有限的空间条件下,这样一个开放和高架的空间为人们提供了一个聚集和建立联系的机会。建筑和城市环境之间的连续性促进了这座城市的吸引力。这种对城市空间的三维解释将产生一个新的机会来产生活动,而不仅仅局限在场地内,而且还涉及到城市环境。
In the high density and limited spatial conditions of Ginza, such an open and elevated space offers an opportunity for people to gather, and create connection. The continuity between the architecture and urban context promotes the attractive nature of this city. This three dimensional interpretation of urban space will generate a new chance to produce activities not limited within the site but also involving the urban context.
© Koji Fujii / Nacasa & Partners Inc.
Koji Fujii/Nacasa
Architects Nikken Sekkei
Location Ginza, Chuo, Tokyo 104-0061, Japan
Category Shopping Centers
Design Team Taro Nakamoto + Takayuki Sakamoto + Ryo Hatano + Seiji Yamada + Atsuhiko Amakasu / Nikken Sekkei
Area 50.093 m2
Project Year 2016
Photographs Koji Fujii / Nacasa & Partners Inc.
Manufacturers Loading...
客服
消息
收藏
下载
最近























