查看完整案例


收藏

下载
架构师提供的文本描述。该项目涉及修复位于曼图亚市统一城市组织中的一座500层整栋多层建筑,该公寓是其中的一部分。该项目涉及豪华住宅的主题,通过研究空间的灵性,说明其属于这一范围的条件,这些空间在研究细节和所使用材料的感官方面表现出来。这座房子的特点是在天花板和一些墙壁上的装饰可以追溯到500年代和800年代的上半叶,该项目保持了其模糊不清的标志的层次性,而没有进行语言选择。空间的分布组织保持在原来的状态,而内部空间的细分是通过引入家具的元素来进行的,家具元素部分地重新配置了结构,指定了层次结构。项目的进展是对重叠的元素进行分层,而不会消失。
Text description provided by the architects. The project involves the recovery of an entire multi-storey building of 500's located in the consolidated urban tissue of the city of Mantua, in which the apartment constitutes a portion. The project deal with the topic of a luxury home, stating its condition of belonging to this ambit through the research for a spirituality of the spaces that is expressed in the study of the details and in the sensuality of the materials that has been used. The house is characterized by its decorations in the ceilings and in some walls dating back to 500's and the first half of 800's, the project maintains its layering of signs in their ambiguity without drawing a philological selection. The distribution organization of the spaces is maintained in original condition, while the subdivision of the interior spaces happens through the introduction of elements of furniture that reconfigure in part the structure, specifying the hierarchies. The project proceeds by layering of elements that overlap without vanishing.
© Davide Galli Atelier
c.Davide Galli Atelie
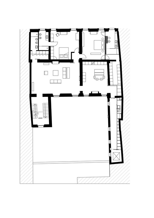
Floor Plan
© Davide Galli Atelier
c.Davide Galli Atelie
Architects Archiplanstudio
Location 46100 Mantua, Province of Mantua, Italy
Category Apartment Interiors
Architects in Charge Diego Cisi, Stefano Gorini Silvestrini
Area 230.0 m2
Project Year 2016
Photographs Davide Galli Atelier
Manufacturers Loading...
客服
消息
收藏
下载
最近
























