查看完整案例


收藏

下载
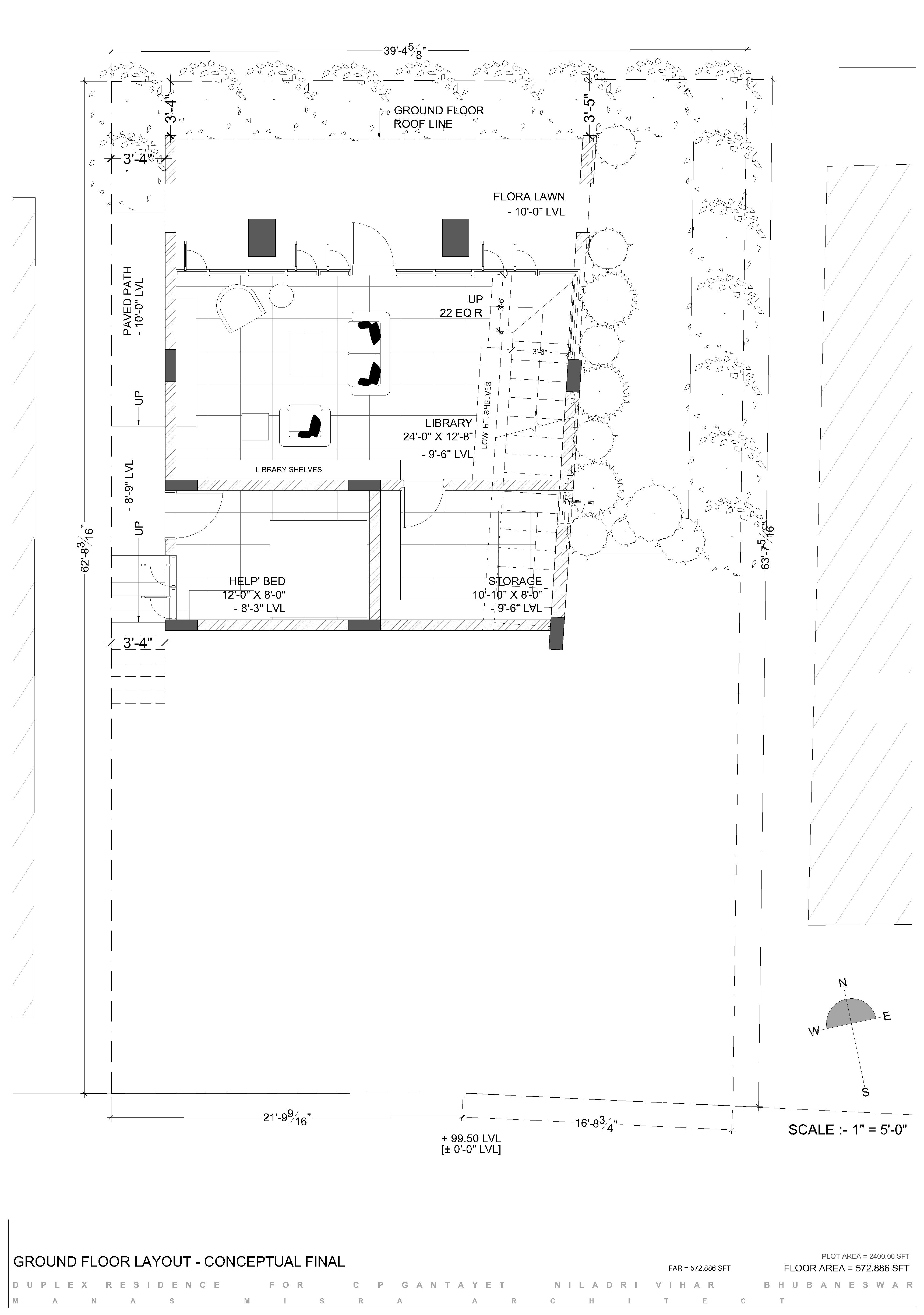
这片美丽的40乘60小块土地坐落在一座小山的眉头上,每60英尺的坡度就有近10英尺的坡度,位于住宅区和公共公园之间。
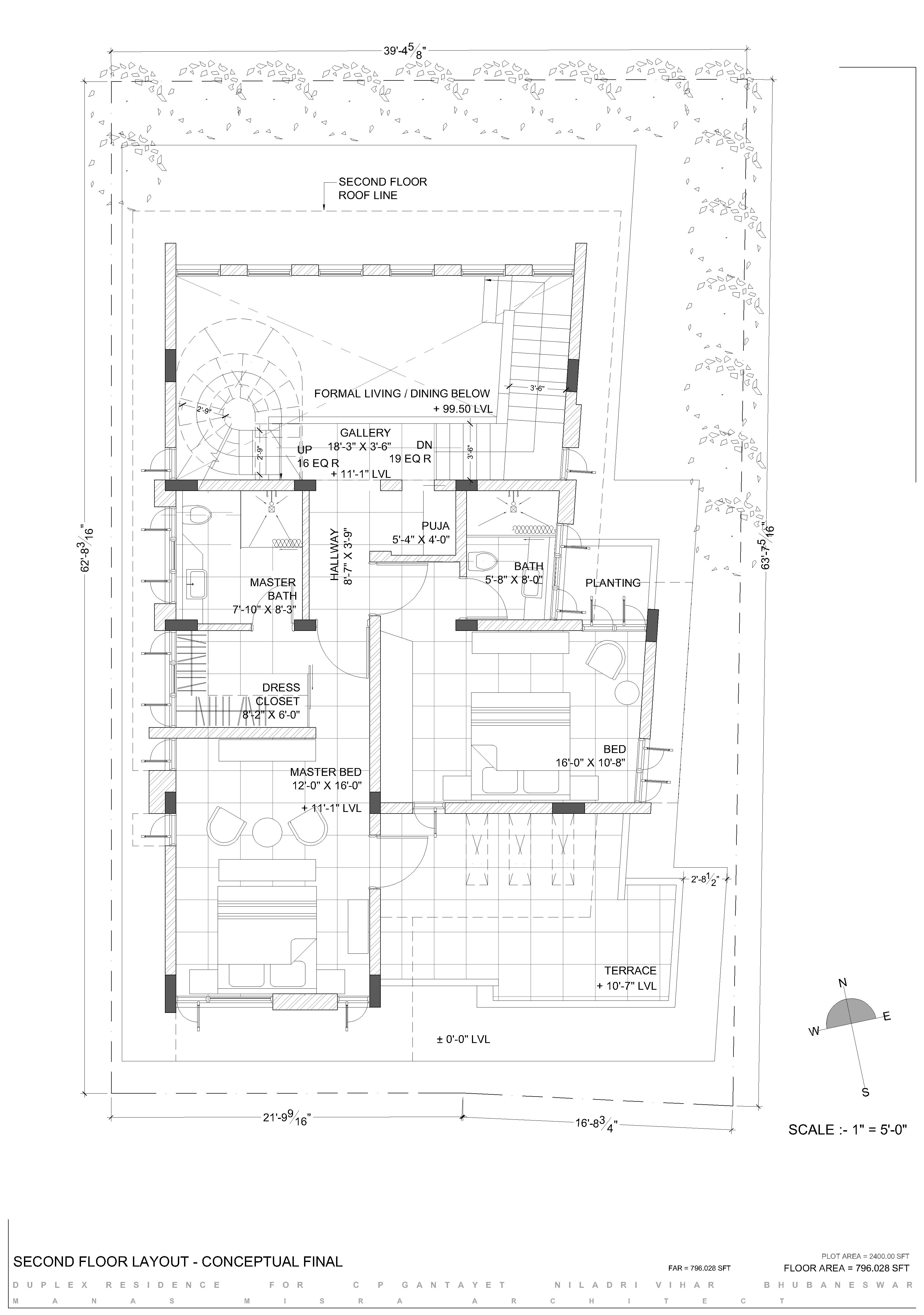
在远离繁华城市的地方,业主们兴致勃勃地建造了一栋房子,以享受周末的时光。他们在遇到米斯拉时,用一张简短的纸条写下了他们的简单要求。他们只想要一个客厅-可能和慷慨的厨房加公用设施一样大;为他们的女儿、客人和他们自己准备三间普通大小的卧室;如果可能的话,在花园周围建一间私人图书馆/Den,以满足他们对书籍和自然的热爱。然而,他们有一种特殊的愿望,那就是不要把隔开的楼层与房子的其他部分分开,而只用于楼梯。
米斯拉设计了这栋房子的三层楼,因为地块很小,大厅离地面很近,但离路面很远,把丹恩放在下面,可以俯瞰与车库直接相连的花园,让业主可以相互隐私和通过彼此进入。然而,他小心翼翼地避开了丹恩的另一层楼的感觉,让它的进门台阶自由自在,紧靠入口处,创造了一种开放和神秘的感觉,一瞥下面的花园,并在台阶上的无数小窗户的指引下,一直走到客厅的大窗户。
一位游客一踏进房子,就会立刻感受到这些楼层的体积,尽管入口的天花板高度极低,却被拉向令人惊叹的双高起居区,阳光从每一个角落涌入,空间非常明亮,给人一种壮丽和宽慰的感觉,让丹恩有了自己的隐私。直到一个人到达大厅,转过身去,才能看到楼上卧室的画廊,给人一种奇怪而宁静的感觉,觉得这所房子只有两个空间-大厅和登机口。这就是设计的精髓所在,没有一个房间能立即被看到-楼上甚至客房都没有被很好地安置在客厅的同一层,只是上面几步而已。一个人只是轻快地穿过美丽的起居区,忽略了相邻的房间,同样地,早上从卧室里走出来,我们也会被欢迎来到这个充满柔和晨光和外面壮丽景色的奇妙大厅,让这座房子感觉像是一个真正的“隐退之家”。
Firm manas misra Architect
Type Residential › Private House
STATUS Concept
SIZE 1000 sqft - 3000 sqft
BUDGET $50K - 100K
keywords:architecture, architecture news, interiors, interior design, portfolio, spec, brands, marketplace, products The 'Retreat' Home
关键词:建筑,建筑新闻,室内设计,组合,规格,品牌,市场,产品‘退位’家庭
客服
消息
收藏
下载
最近


















































