查看完整案例


收藏

下载
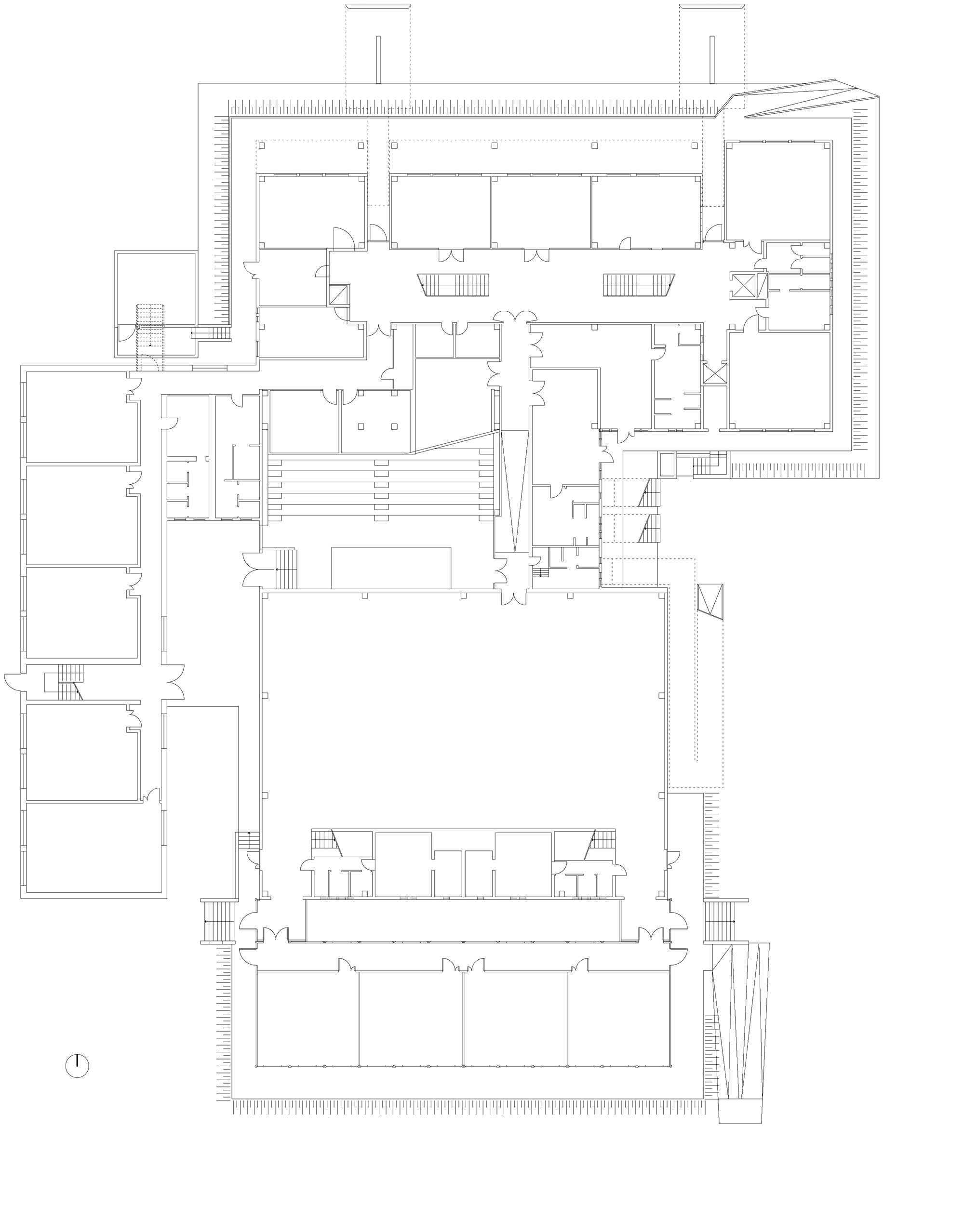
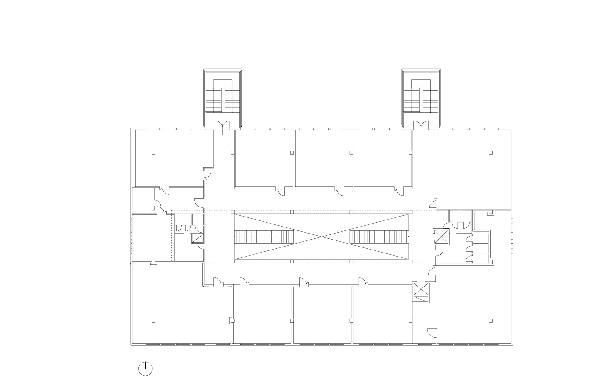
Firm TIXA
Type Educational › High School
STATUS Built
YEAR 2014
keywords:architecture, architecture news, interiors, interior design, portfolio, spec, brands, marketplace, products Adeguamento liceo Medi
关键词:建筑,建筑新闻,室内设计,组合,规格,品牌,市场,产品
客服
消息
收藏
下载
最近
































