查看完整案例


收藏

下载
架构师提供的文本描述。该建筑位于一个小斜坡上,位于一个公共公园的中心,周围环绕着几座公共建筑。新的建筑重新定位了遗址东门的形象,而在西方,看台将建筑物与新的游乐园连接起来。
Text description provided by the architects. Situated in a slight slope, the building is located in the center of a public park surrounded by several communal buildings. The image of the East entrance of the site has been requalified by the new construction whereas to the West, bleachers connect the building to the new esplanade.
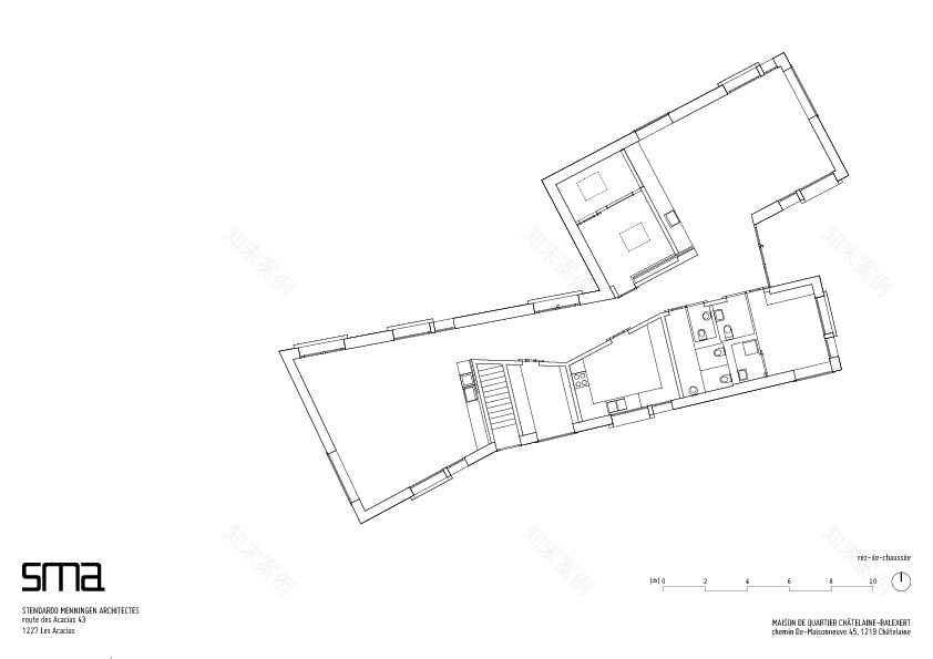
新的社区中心位于沙塔莱恩-巴尔沃特,旨在保持现有景观的逻辑连续性和保护,以及与周围建筑的协同作用。这种功能和空间的连续性,加上现有的地形,使得项目及其空间需求的最佳分布成为可能。这种策略确保了体积需求和地形形状之间的平衡,形成了直接的关系。
The new community center located in the Châtelaine-Balexert seeks to preserve a logical continuity and preservation of the existing landscape as well as construct synergies with the surrounding buildings. This functional and spatial continuity along with the existing topography allows for an optimal distribution of the project and its spatial requirements. This strategy ensures a balance between the volumetric needs and the shape of the terrain shape forming a direct relationship.
© Federal studio
联邦演播室
新社区中心的体积会扭曲和折叠,以满足场地的要求,并能自然地向美丽的周围景观开放。因此,新建筑通过保证内部流动和运动的自然光的最佳质量,增加了内部和外部的关系。空间分布扩大了,不再像传统的走廊,而是。成为一个自然互动的空间。
The volume of the new community center twists and folds to satisfy the requirements of the site and allows for a natural openness towards the beautiful surrounding landscape. The new building thus increases the relationship between the interior and exterior by guaranteeing natural light optimal quality of the internal flow and movement. The spatial distribution expands and is no longer akin to the traditional corridor but becomes a space in its own right allowing for natural interaction.
© Federal studio
联邦演播室
单层建筑便于连接和流动,同时考虑到行动不便的人的需要。为了实现这一点,底层在每个活动室的两端都有两个核心区。
The single-leveled building facilitates the connections and fluidity of the circulation, taking into consideration the needs of people with reduced mobility. To achieve this, the ground floor has two core areas on either side located at the end of each activity rooms.
© Federal studio
联邦演播室
这座建筑物的屋顶有四面。正门的前盖提供了一个保护区。可从外部进入位于地下室的技术室,保持其功能独立性。教育工作者和社区中心管理人员办公室位于入口处附近。
The roof of the building has 4 sides. The front cover of the main entrance offers a protected area. Access to the technical rooms located in the basement can be reached from the outside, retaining its functional independence. The office of the educators and community center administrators are located near the entrance.
© Federal studio
联邦演播室
新结构力求通过其铰接式体积和木质结构来反映当代公共建筑。
The new structure seeks to reflect a contemporary public building through its articulated volume as well as through its wooden structure.
产品描述。-建筑的外墙是由木头组成的。新楼郊区的旧公共建筑也是用木头建造的。因此,我们选择了一种与现有结构保持连续性的形式,但采用了当代的形式。
Product Description.- The façade of the building is composed of wood. The old public buildings on the outskirts of the new building are also made of wood. We have therefore chosen a form of continuity with the existing structure but with a contemporary expression.
© Federal studio
联邦演播室
这一战略使木结构得以在砖石工程进行时在车间执行,从而有效和及时地建造了该建筑物。
This strategy enabled to have the wooden structure executed in a workshop while the masonry work took place, resulting in efficient and timely construction of the building.
对一种具有保护作用的生落叶松进行了覆层的选择,目的是使天然木灰阴影优于人工灰。这个解决方案避免了由于不同的立面方向而造成的色调差异。
The choice of the cladding is carried on a raw larch with applied protection with the objective to have the natural wooden grey shade prevail over the artificial grey underneath. This solution avoids differences in shades due to the different orientations of the façades.
© Federal studio
联邦演播室
最后,Maison de Quartier的包层被不同厚度的板料覆盖,从而产生振动,而相邻的展馆作为夏季活动的提神棒,覆盖着相同的覆层,但厚度相同,加固是整体的方面。
Finally, the cladding of the Maison de Quartier is clad with slabs of different thicknesses so as to give a vibration while the pavilion adjacent, serving as a refreshment bar for the summer events, is covered with the same cladding but with an identical thickness, reinforcing are monolithic aspect.
客服
消息
收藏
下载
最近





























