查看完整案例


收藏

下载
建筑师提供的文字说明。新建造的娱乐中心被称为“贾斯汀·鲁滨逊(JardinRobinson”,占据了一个战略位置,由位于一侧的Rohone的树木繁茂的水岸和木脂素区的公共设施围绕,而另一个侧面是1960年代的混凝土的象征式表达。
Text description provided by the architects. The newly constructed recreational center known as the “Jardin Robinson” occupies a strategic position surrounded by the wooded water-banks of the Rhone on one side and the public facilities of the Lignon district with an emblematic expression of a 1960's concrete on the other side.
Text description provided by the architects. The newly constructed recreational center known as the “Jardin Robinson” occupies a strategic position surrounded by the wooded water-banks of the Rhone on one side and the public facilities of the Lignon district with an emblematic expression of a 1960's concrete on the other side.
© Federal Studio
联邦演播室
© Federal Studio
联邦演播室
这座建筑位于利尼翁学校和通往罗纳河岸的人行道之间的一个陡峭的斜坡上。这一职位要求在大楼正门处设计和建造一个新的出入匝道,以便于进出。
The building is located on a steep slope between the Lignon school and a pedestrian path leading to the water-banks of the Rhone. This position required the design and construction of a new access ramp located at the main entrance of the building for ease of accessibility.
The building is located on a steep slope between the Lignon school and a pedestrian path leading to the water-banks of the Rhone. This position required the design and construction of a new access ramp located at the main entrance of the building for ease of accessibility.
© Federal Studio
联邦演播室
该项目根据其背景以及附近的流动要求,提出了折叠式的数量。这座建筑的设计是为了将透明度和视觉开口与周围环境结合起来。外部植物和植被与大玻璃正面内化。为公共事业而设计的建筑,通过赋予外部和内部景观之间的关系,表现出强烈的身份认同。
The project proposed a folded volume in response to its context as well as mobility requirements in the vicinity. The building was designed to integrate transparency and visual openings with its surrounding environment. The external plants and vegetation are internalized with the large glass facades. The building designed for public utility expresses a strong identity by privileging the relationship between the exterior and interior landscape.
The project proposed a folded volume in response to its context as well as mobility requirements in the vicinity. The building was designed to integrate transparency and visual openings with its surrounding environment. The external plants and vegetation are internalized with the large glass facades. The building designed for public utility expresses a strong identity by privileging the relationship between the exterior and interior landscape.
© Federal Studio
联邦演播室
© Federal Studio
联邦演播室
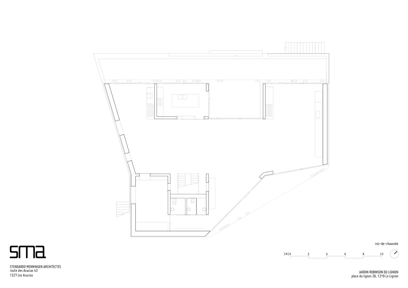
程序分发是通过使用移动分区来限定的,允许根据用户的多个活动灵活地使用。活动室的主要区域有一个厨房,可以进入灌木丛。一个由四个窗户贯穿的核心区域允许在孩子们的游乐区、阁楼、车间、入口和行政办公室之间进行视觉控制。
The program distribution is qualified by the use of mobile partitions allowing a flexibility of use according to the multiple activities of the users. The main area of the activity rooms has a kitchen with access to the loggia. A core area pierced by four windows allows visual control between the play areas of the children, the mezzanine, the workshop, the entrance and the administration office.
The program distribution is qualified by the use of mobile partitions allowing a flexibility of use according to the multiple activities of the users. The main area of the activity rooms has a kitchen with access to the loggia. A core area pierced by four windows allows visual control between the play areas of the children, the mezzanine, the workshop, the entrance and the administration office.
© Federal Studio
联邦演播室
橡树树是由倾斜的叶片组成的,它解释了构造该场地的树木的作用。屋顶可以从外面进入,有30个城市菜园和一个喷泉。它被构想为位于TreeOps中间的一个真正的会议地点。
The oak façades are composed of oblique blades reinterpreting the play of trees structuring the site. The roof, accessible from the outside, hosts thirty urban vegetable gardens and a fountain. It is conceived as a real meeting place nestled in the middle of the treetops.
The oak façades are composed of oblique blades reinterpreting the play of trees structuring the site. The roof, accessible from the outside, hosts thirty urban vegetable gardens and a fountain. It is conceived as a real meeting place nestled in the middle of the treetops.
© Federal Studio
联邦演播室
客服
消息
收藏
下载
最近























