查看完整案例


收藏

下载
© Geoffrey Warner
杰弗里·华纳
架构师提供的文本描述。索诺玛除草屋是一个小型的、极小的家庭-基于炼金术的原始杂草屋-定制,以满足客户、苹果商店设计总监和建筑师本人的特定风格和整理要求。它是由两个极简开放的盒子组成的,设置在混凝土基座上,安放在橡树的边缘上。
Text description provided by the architects. The Sonoma weeHouse is a small, ultra-minimal home—based on Alchemy’s original weeHouse®—customized to meet specific style and finishing requirements of the client, Apple’s Director of Store Design, and an architect himself. It is composed of two minimalist open-sided boxes set on concrete plinths nestled on the edge of gnarled oaks.
© Geoffrey Warner
杰弗里·华纳
© Geoffrey Warner
杰弗里·华纳
该项目被证明是说明预制效率的最佳方案.它是在明尼苏达州为旧金山的一个客户设计的,建于俄勒冈州,并将90%的成品运到加州的网站。钢配件,包括楼梯,门廊栏杆和激光切割装饰是由明尼苏达州的建筑师预制和运输完成该项目。
The project proved to be a best-case scenario for illustrating the efficiencies of prefabrication. It was designed in Minnesota for a client in San Francisco, built in Oregon, and shipped to its California site 90% complete. Steel accessories including stairs, porch railings and lasercut trim were prefabricated by the architects in Minnesota and shipped to complete the project.
© Geoffrey Warner
杰弗里·华纳
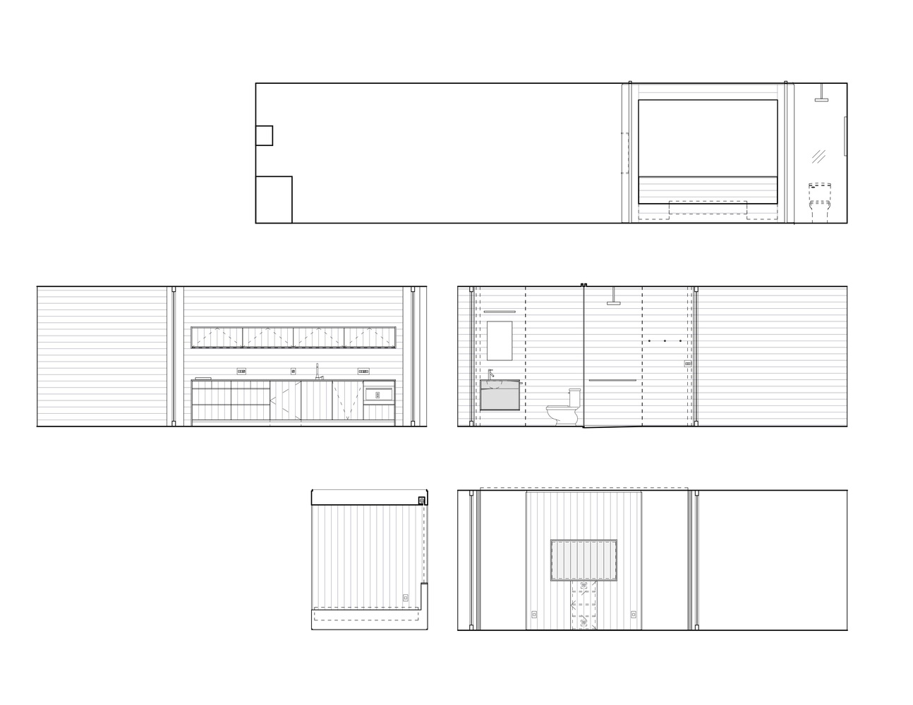
主要结构(640 SF)的特点是一个粉刷橡木床盒在中间的体积。一边是开放式厨房/餐厅/客厅,一边是卫生间和淋浴。对于航运物流,这种结构被设计为两个模块:16英尺。x 40英尺主箱和一个10英尺。x 40英尺门廊上的螺栓,悬臂进入一个充满葡萄园、公园和圣罗莎镇的戏剧性景观山谷。
The primary structure (640 SF) features a whitewashed oak bed box in the middle of the volume. An open kitchen/dining/living room is on one side, and a toilet and shower on the other. For shipping logistics, this structure was designed as two modules: the 16 ft. x 40 ft. main box, and a 10 ft. x 40 ft. bolt-on porch, which cantilevers into a dramatic landscape valley rich with vineyards, parklands, and the town of Santa Rosa.
伴随的宾馆(330 SF),也基本上是完整的,是一个基本结构的简略版本。一个巨大的白色橡木衣柜形成浴室的墙壁,同时提供足够的存储和隐私。
The accompanying guesthouse (330 SF), also shipped essentially complete, is an abridged version of the primary structure. A large whitewashed oak wardrobe forms the bathroom wall while providing adequate storage and privacy.
© Geoffrey Warner
杰弗里·华纳
两个结构都有钢架,9ft.高滑动玻璃墙,设置为定制的波纹风化钢箱,IPE内部带有油橡木橱柜。口袋门凹进橱柜,靠近钢柱。隐私屏幕被装入浴室天花板,玻璃墙分隔了厕所和淋浴设施。在主房子里,还有一个25英寸长的落下来的虫网放进天花板。
Both structures feature steel frames, 9 ft. tall sliding glass walls that are set into custom corrugated weathering steel boxes, and ipe interiors with oiled oak cabinetry. Pocket doors recessed into the cabinetry close against the steel columns. Privacy screens are pocketed into the bathroom ceilings, with glass walls separating the toilet and showering facilities. In the main house, there is also a 25’ long drop-down insect screen pocketed into the ceiling.
© Geoffrey Warner
杰弗里·华纳
产品描述。氧化耐候钢:索诺玛葡萄园的氧化风化钢包层包覆每一个索诺玛杂草房单位,将它们与季节性草本植物和成熟的沿海橡树结合在一起。一个定制的制动器在包层设计提供了垂直的纹理,并强调的对比方式,模块坐在水平带状,板形成的混凝土基座。门廊内的栏杆也使用耐候钢。混凝土基座上的所有钢都是镀锌钢。这两种钢几乎不需要维修,而且都会进入风景线。
Product Description. Oxidized weathering steel: The Sonoma weeHouse’s oxidized weathering steel cladding wraps each of the Sonoma weeHouse units, merging them with the environment of seasonal grasses and mature, gnarled coastal oaks. A custom brake in the cladding design provides a vertical texture and emphasizes the contrasting way the modules sit atop the horizontally banded, board-formed concrete plinths. Weathering steel was also used for the railings inside the porch. All steel on the concrete plinths is galvanized steel. Both steels need little to no maintenance, and will weather into the landscape.
© Geoffrey Warner
杰弗里·华纳
Architects Alchemy Architects
Location Santa Rosa, United States
Category Houses
Architect in Charge Geoffrey C. Warner, AIA
Area 970.0 ft2
Project Year 2016
Photographs Geoffrey Warner
Manufacturers Loading...
客服
消息
收藏
下载
最近





















